Private garden, balcony and parking within easy walking distance of the city centre.
High-spec modern townhouse, developed by Urban Splash
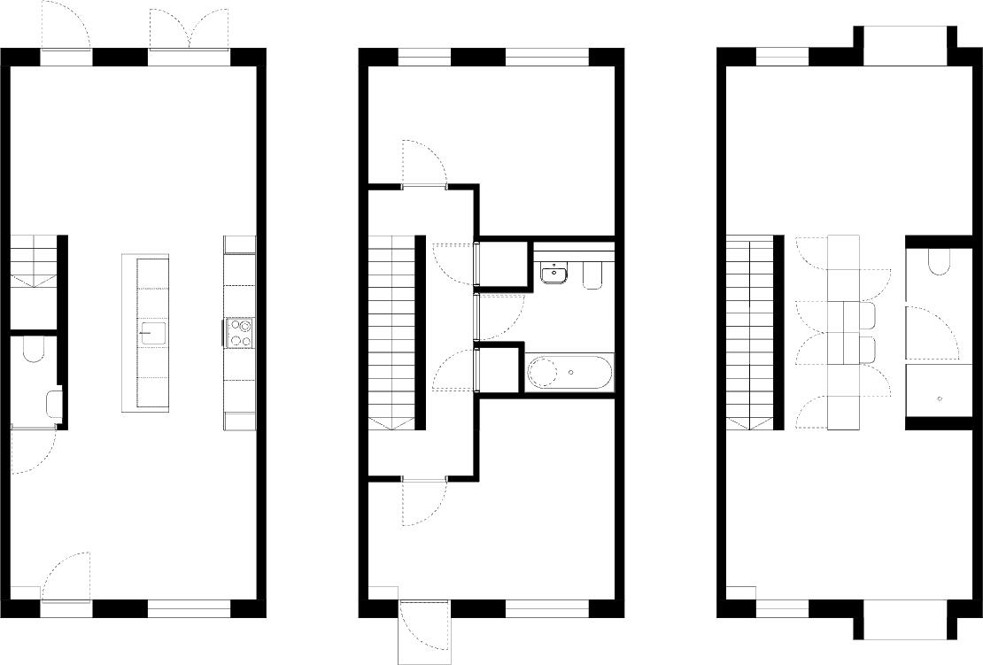
This contemporary four-bedroom townhouse on Sandywell Lane offers high-spec, family-sized accommodation across three floors in the Irwell Riverside neighbourhood. Built by Urban Splash, the home combines modern open-plan living with a private rear garden, an additional first-floor balcony and allocated off-street parking — practical extras for city living.
The ground floor provides a large, light-filled open-plan living area with a modern island kitchen and integrated appliances, ideal for everyday family life and entertaining. The first floor includes two bedrooms (one with a balcony) and the main bathroom, while the top floor houses two further bedrooms, each with en-suite facilities — useful for privacy and flexible household arrangements.
Practical positives include excellent mobile signal, fast broadband availability, very low local crime rates and a low flood risk. The property sits within walking distance of Manchester city centre and a mix of well-regarded schools, shops and leisure amenities, making it a convenient base for families who want city access with a quieter riverside setting.
Buyers should note this is a leasehold property with 241 years remaining, and the house is a multi-storey layout that may not suit those who need single-floor living. Total internal floor area is not provided in the listing, so viewers wanting exact room sizes should request measurements or a floor plan prior to offer.
3 bedroom town house for sale in Springfield Lane Salford M3 — £375,000 • 3 bed • 2 bath
4 bedroom semi-detached house for sale in Travers Street, Salford, M7 — £290,000 • 4 bed • 2 bath • 1087 ft²
3 bedroom town house for sale in Edge Lane, Manchester, Greater Manchester, M43 — £325,000 • 3 bed • 2 bath • 1249 ft²
3 bedroom terraced house for sale in Guest Street, Manchester, M4 — £510,000 • 3 bed • 2 bath • 1500 ft²
3 bedroom end of terrace house for sale in Moss Street, Salford, Greater Manchester, M7 — £310,000 • 3 bed • 1 bath • 975 ft²
3 bedroom terraced house for sale in Athol Road, Manchester, Greater Manchester, M16 — £400,000 • 3 bed • 2 bath • 1167 ft²


















































