**Standout Features:**
- **Two Bedrooms & Two Reception Rooms:** Provides ample living space for small families or first-time buyers.
- **Chain-Free Sale:** Offers a smooth purchasing process with no forward chain.
- **Low Maintenance Garden:** Features paved areas, ideal for busy lifestyles.
- **Proximity to Transport:** Less than a mile to Greenhithe Railway Station and close to Ebbsfleet International Station.
- **Local Amenities:** Near shops and Bluewater Shopping Centre for convenient shopping.
**Potential Downsides:**
- **Requires Modernization:** The property needs updates for a contemporary finish.
- **Average Postcode & Area Deprivation:** May not appeal to all buyers.
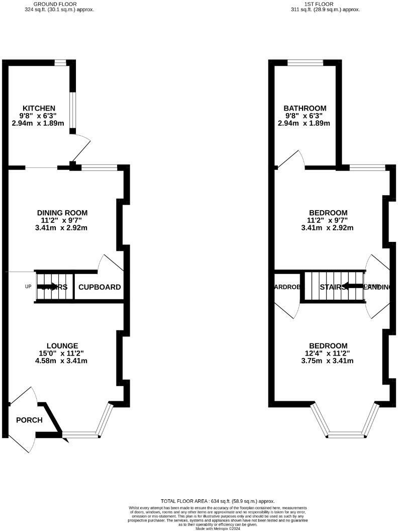
Nestled in a desirable location in Greenhithe, this charming mid-terrace house presents an excellent opportunity for first-time buyers and investors alike. With two inviting reception rooms and a cozy kitchen on the ground floor, the space flows nicely, while the upstairs hosts two comfortable bedrooms and a modern bathroom. Outside, a low-maintenance garden offers a small retreat. The home holds promise for those willing to invest in a little modernization, with its solid Edwardian structure just waiting for your personal touch.
Located just a short walk from Greenhithe Railway Station and close to Ebbsfleet International, commuting to London or beyond is made simple. Meanwhile, local shops and the renowned Bluewater Shopping Centre cater to all your shopping and leisure needs. With a guide price of £260,000, this property is attractively priced, offering a fantastic opportunity for value. Don’t miss out—book your viewing today!
2 bedroom terraced house for sale in Knockhall Road, Greenhithe, Kent, DA9 — £300,000 • 2 bed • 1 bath • 721 ft²
2 bedroom terraced house for sale in Knockhall Chase, Greenhithe, Kent, DA9 — £350,000 • 2 bed • 1 bath • 764 ft²
3 bedroom terraced house for sale in Knockhall Road, Greenhithe, Kent, DA9 — £335,000 • 3 bed • 1 bath • 1044 ft²
2 bedroom terraced house for sale in Charles Street, Greenhithe, Kent, DA9 — £300,000 • 2 bed • 1 bath • 721 ft²
2 bedroom terraced house for sale in Farlow Close, Northfleet, Gravesend, Kent, DA11 — £290,000 • 2 bed • 1 bath • 618 ft²
3 bedroom terraced house for sale in Knockhall Road, Greenhithe, Kent, DA9 — £400,000 • 3 bed • 1 bath • 1076 ft²










































