OL3 5RU - 4 bedroom barn conversion for sale in Wade Hill Lane, Dobcr…

View on Property Piper

4 bedroom barn conversion for sale in Wade Hill Lane, Dobcross, Saddleworth, OL3

Summary - HIGHER WADE HILL MEWS 2 WADE HILL LANE DOBCROSS OLDHAM OL3 5RU

4 bed 3 bath Barn Conversion

**Standout Features:**
- Fully renovated, high-standard barn conversion
- Four spacious double bedrooms with unique features
- Open-plan kitchen and dining area with modern finishes
- Serene elevated position offering stunning countryside views
- Private driveway with ample parking and two garages
- Inviting outdoor space with a well-designed patio and garden
- Chain-free and freehold tenure
- Excellent local amenities and low crime rate

Set in the breathtaking hamlet of Dobcross, this exquisite barn conversion beautifully marries traditional charm with modern design. With 4 generous double bedrooms and a master suite featuring a luxurious en-suite and dressing area, this home is perfect for families seeking both space and comfort. The heart of the home is an expansive open-plan kitchen and dining area, complete with high ceilings, quartz worktops, and cutting-edge appliances, allowing for effortless entertaining and family gatherings.

Enjoy a tranquil lifestyle on your private tree-lined driveway leading to cobblestone parking and twin garages. The property's elevated position grants you 360-degree views of the stunning Saddleworth countryside, perfect for enjoying morning sunrises or evening sunsets from the patio. With fast broadband and excellent mobile connectivity, this home meets all modern needs, making it suitable for both peaceful living and remote working. This remarkable residence not only offers luxurious living spaces but also presents the potential for further personalization. Viewing is essential—properties of this caliber are rare to find!

Property Details

Brochure Descriptions

Image Descriptions

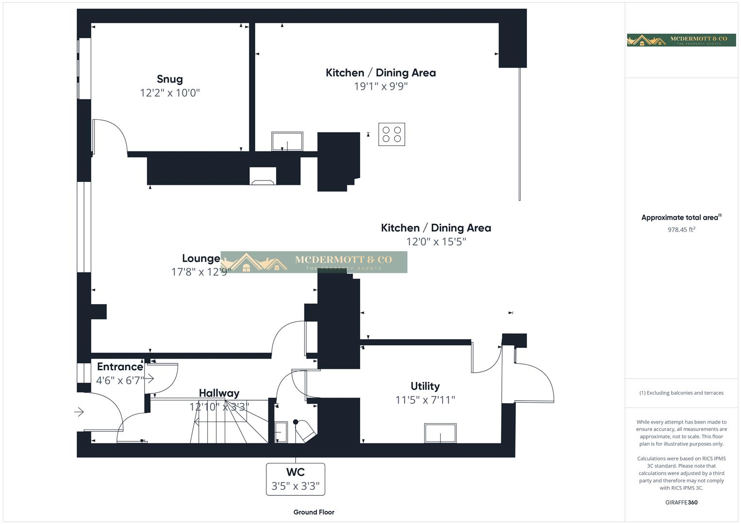
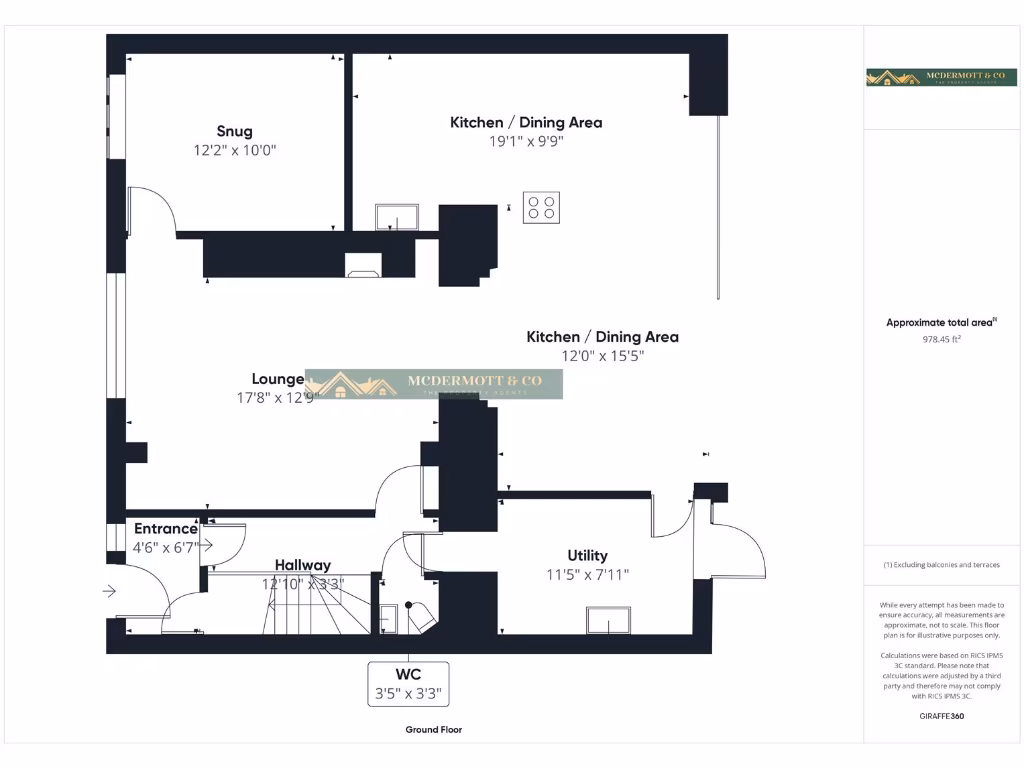
Floorplan Description

Rooms

Textual Property Features

Detected Visual Features

Nearby Schools

Nearest Bars And Restaurants

,,,,}

Nearest General Shops

,,}

Nearest Grocery shops

,,}

Nearest Supermarkets

,,}

Nearest Religious buildings

,,}

Nearest Medical buildings

,,,}

Nearest Airports

}

Nearest Leisure Facilities

,,,,}

Nearest Tourist attractions

,,}

Nearest Train stations

,,,,}

Nearest Bus stations and stops

,,,,}

Nearest Hotels

,,}

Tags

Local Market Stats

Similar Properties

Meta

High Res Images

Compatible Images

Low res Images

Thumbnails

Raw Images

High Res Floorplan Images

Compatible Floorplan Images

Low res Floorplan Images

FloorplanImages Thumbnail

Raw Floorplan Images