Period character maisonette with garden, central Oban location and renovation potential.
Period stone facade with decorative Victorian features
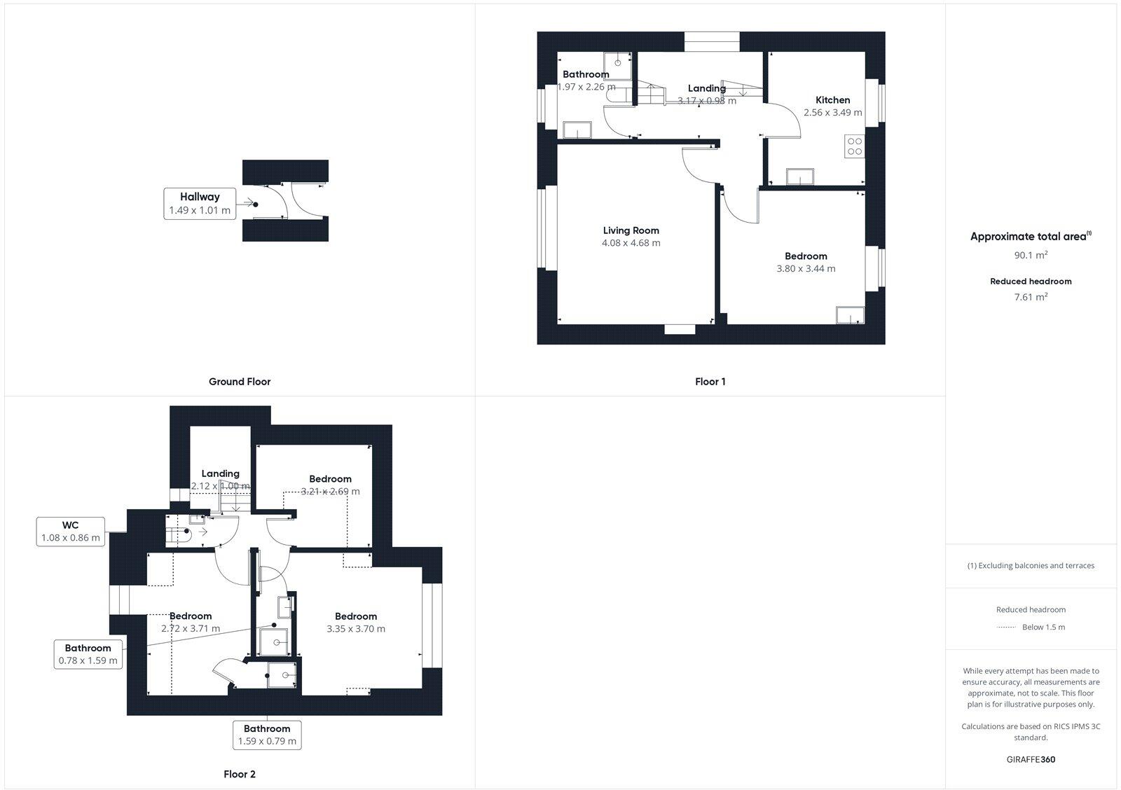
Set in the heart of Oban, this period maisonette offers strong central location, coastal character and sizeable rear garden. High ceilings, coombed second-floor rooms and original stone facade give the home distinctive period appeal and partial views toward Oban Bay from the front lounge. The property has been used for holiday lets and could suit a family seeking town-centre living or an investor targeting short‑term rentals.
The layout and fixtures are dated in places: the kitchen and some bathrooms are from earlier decades and will need modernization to meet contemporary expectations. EPC rated D59 and an unknown tenure are material points to clarify before purchase. On-street parking only; however, mobile signal is excellent and broadband speeds are average.
This is a renovation‑opportunity in a very central, amenity-rich location. The sizable rear garden and stone outbuilding add useful outdoor space and storage. Buyers should budget for updating heating, kitchen and decorative works, and confirm bedroom count and tenure details, as listing information includes inconsistent bedroom numbers.
2 bedroom apartment for sale in GF Balmoral Villa, Ardconnel Terrace, Oban, Argyll, PA34 — £169,950 • 2 bed • 1 bath • 978 ft²
4 bedroom semi-detached house for sale in 1 Pretoria Villa, Glenshellach Road, Oban, Argyll, PA34 4NQ, PA34 — £290,000 • 4 bed • 2 bath
3 bedroom maisonette for sale in 9A Argyll Street, Oban, Argyll, PA34 5SG, PA34 — £135,000 • 3 bed • 1 bath
2 bedroom flat for sale in Carna, Dunollie Road, Oban, Argyll and Bute, PA34 — £145,000 • 2 bed • 1 bath • 678 ft²
4 bedroom semi-detached house for sale in Ard-a-Bhaigh, Rockfield Road, Oban, Argyll, PA34 5DQ, PA34 — £340,000 • 4 bed • 3 bath
4 bedroom flat for sale in 4 John Street, Oban, Argyll, PA34 5NS, PA34 — £199,950 • 4 bed • 1 bath


































































