Spacious period home with parking and garden, close to local shops.
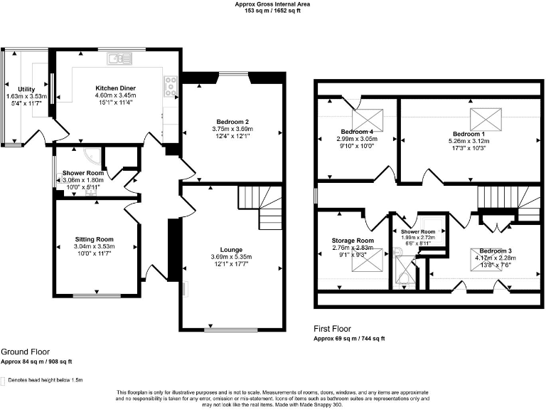
Four bedrooms plus storage room with potential conversion
A spacious four-bedroom end-terrace cottage on the edge of Pembroke, offering generous family accommodation across two floors and genuine rental or owner-occupier potential. The house has two reception rooms, a kitchen/diner, downstairs bedroom and useful storage that could be adapted into a home office or additional bedroom. Driveway parking, gas central heating and double glazing are practical, everyday benefits for a busy household.
The location is a key selling point: short walks to Pembroke’s shops, cafés and services, with good mobile signal and fast broadband for remote working. The rear garden is low-maintenance, private and suited to families or tenants who prefer minimal upkeep. The property is freehold with no recorded flood risk and an EPC rating of D.
Buyers should be aware of several material points. The area scores as very deprived with above-average local crime, and the exterior stone walls are likely uninsulated, so further thermal upgrades may be needed to improve comfort and running costs. The finish is dated in places and will suit those happy to complete updates and cosmetic modernisation. Council tax is moderate and the plot is small, so outdoor space is limited compared with larger semi-detached properties nearby.
Overall, this cottage suits first-time buyers seeking space and location with room to add value, or investors looking for a rental with straightforward management. The house offers practical day-to-day features now and clear scope for improvement to increase comfort or rental income.
4 bedroom end of terrace house for sale in Woodbine Terrace, Pembroke, Pembrokeshire, SA71 — £220,000 • 4 bed • 1 bath
3 bedroom terraced house for sale in Church Terrace, Monkton, Pembroke, Pembrokeshire, SA71 — £195,000 • 3 bed • 1 bath • 1098 ft²
4 bedroom detached house for sale in Grove Court Mews, Pembroke, Pembrokeshire, SA71 — £445,000 • 4 bed • 3 bath • 1852 ft²
3 bedroom terraced house for sale in Station Road, Pembroke, Pembrokeshire, SA71 — £170,000 • 3 bed • 1 bath • 836 ft²
3 bedroom terraced house for sale in Laugharne Close, Pembroke, Pembrokeshire, SA71 — £130,000 • 3 bed • 1 bath • 881 ft²
4 bedroom terraced house for sale in Mansel Street, Pembroke, SA71 — £210,000 • 4 bed • 2 bath • 1312 ft²














































































