DL9 4NY - 3 bed modern three bedroom semi in Summercroft Road, DL9 4NY

View on Property Piper

3 bedroom semi-detached house for sale in Hipswell Road, Catterick Garrison, DL9

Summary - 7, SUMMERCROFT ROAD DL9 4NY

3 bed 2 bath Semi-Detached

Spacious garden and ready-to-move-in specification for growing families.
New build 2023 with 10-year structural warranty
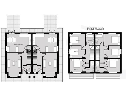
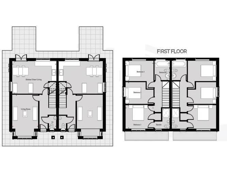
This three-bedroom semi-detached new build (constructed 2023) offers practical, contemporary living on a decent plot in Catterick Garrison. The layout centres on a large open-plan kitchen/dining area and a comfortable sitting room, with a master bedroom and en suite, two further bedrooms and a family bathroom — suited to small families or first-time buyers seeking low-maintenance modern accommodation.

Stand-out benefits include a substantial enclosed rear garden (approximately 17.99m / 59ft), two-car off-street parking, B energy rating and 10-year Build Safe structural warranty. The specification includes integrated appliances, a gas hob and oven, up to £3,000 flooring allowance on completion, a free washing machine, and wiring ready for an electric car charging point — all aimed at reducing immediate outlay and making move-in straightforward.

Practical considerations are clear and factual: a communal green fee of circa £120 per year applies, council tax banding is to be confirmed, and the developer reserves the right to alter the specification. The property is gas-heated via boiler and radiators and benefits from fast broadband and excellent mobile signal, with easy access to local schools, shops and road links including the A1(M) and A66.

Overall this home offers a modern, energy-efficient package with generous outdoor space and low initial running costs, balanced by modest annual communal fees and the usual new-build caveats around final specification.

Property Details

Brochure Descriptions

Image Descriptions

Floorplan Description

Rooms

Textual Property Features

Target Audience

AI Tags

Detected Visual Features

EPC Details

Nearby Schools

Nearest Bars And Restaurants

,,,,}

Nearest General Shops

,,}

Nearest Grocery shops

,,}

Nearest Supermarkets

,,}

Nearest Religious buildings

,,}

Nearest Medical buildings

,,,}

Nearest Leisure Facilities

,,,,}

Nearest Tourist attractions

,,}

Nearest Train stations

,,,,}

Nearest Bus stations and stops

,,,,}

Nearest Hotels

,,}

Tags

Local Market Stats

Similar Properties

Meta

High Res Images

Compatible Images

Low res Images

Thumbnails

Raw Images

High Res Floorplan Images

Compatible Floorplan Images

Low res Floorplan Images

FloorplanImages Thumbnail

Raw Floorplan Images