Planning consent granted for a 4-bed detached house (~2,090 sq ft)
Very large, privately planted plot with mature trees and hedging
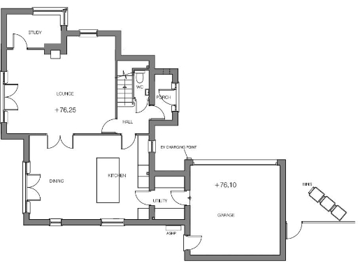
Freehold title; off-street parking and integral double garage planned
Mains services reportedly close by; buyers must verify connections
No flood risk; local crime level very low
Purchase is for land only — significant construction required
Tender process with tight exchange: contracts within 28 days of draft
CIL/S106 reported as none; purchasers should confirm with council
This substantial freehold plot on Horseshoe Lane comes with full planning consent (App. Ref. 24/1696M) for a striking four-bedroom detached house of approximately 2,090 sq ft. The approved design echoes a traditional gatehouse with landscaped gardens, a sweeping driveway and an integral double garage — a ready-to-go opportunity for developers or self-builders seeking an attractive Alderley Edge address.
Set on a very large, privately planted parcel with mature trees and hedging, the site offers privacy and generous garden depth while remaining moments from Alderley Edge village amenities and highly regarded local schools. Mains services are reported to be available close by, and the site has no identified flood risk and very low local crime levels.
Buyers should note this is a development plot: the purchase price does not include a completed dwelling and significant build work will be required. Community Infrastructure Levy and Section 106 payments are reported as not payable, but purchasers must verify with Cheshire East Council. Interested parties must submit offers by informal tender and be prepared to exchange contracts within 28 days of the draft contract being issued to solicitors.
This plot suits purchasers seeking a near-ready project with planning in place and good projected GDV for the area, or a private buyer wishing to build a bespoke family home. The tender timetable and exchange requirement make a quick, well-prepared purchase process essential.































