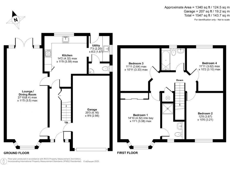
Tucked-away four-bedroom detached house ideal for growing families near good schools and amenities.
- Four double bedrooms, adaptable family layout
- Well-presented interior with large living room
- Partial garage conversion offers playroom and storage
- Fair-sized, private rear garden
- Ample off-street driveway parking
- EPC B; council tax Band E (above average)
- Approximately 1,077 sq ft — compact for four bedrooms
- Very low crime area; fast broadband and excellent mobile signal
Set on a modern development in Upper Stratton, this four double-bedroom detached house delivers practical family living with a private, fair-sized rear garden and generous driveway parking. Internally the home is well presented throughout, with a large living room and adaptable spaces — the former garage has been partially converted to provide storage and a useful playroom. Broadband speeds are fast and mobile signal is excellent, supporting home working and family connectivity.
The location is a clear strength: tucked-away position within a comfortable suburbia, very low local crime, and close to several Ofsted-rated good primary and secondary schools. Local amenities, shops and leisure facilities are within easy reach, and the North Swindon orbital, town centre and Old Town are all readily accessible. Flood risk is assessed as none.
Practical points to note: the property is freehold with an EPC rating B, but council tax is band E and the overall internal area (approximately 1,077 sq ft) is compact for a four-bedroom home. The partial garage conversion reduces secure vehicle storage, though off-street driveway parking remains ample. This house suits a growing family seeking ready-to-move-in accommodation in an affluent, well-connected neighbourhood, with potential to reconfigure or update spaces to personal taste.
4 bedroom semi-detached house for sale in Wheeler Avenue, Upper Stratton, Swindon, SN2 — £400,000 • 4 bed • 2 bath • 1258 ft²
4 bedroom detached house for sale in Cricklade Road, Upper Stratton, Swindon, Wiltshire, SN2 — £400,000 • 4 bed • 2 bath • 1222 ft²
3 bedroom detached house for sale in Cricklade Road, Upper Stratton, Swindon, SN2 — £400,000 • 3 bed • 2 bath • 1582 ft²
4 bedroom detached house for sale in Coronel Close, Upper Stratton, Swindon, SN3 — £450,000 • 4 bed • 2 bath • 1181 ft²
4 bedroom detached house for sale in Helena Road, Swindon, SN25 — £525,000 • 4 bed • 2 bath • 1647 ft²
4 bedroom detached house for sale in Furlong Close, Swindon, SN25 — £475,000 • 4 bed • 2 bath • 1465 ft²










































































