LE12 7PZ - 2 bedroom end of terrace house for sale in Ratcliffe Road,…

View on Property Piper

2 bedroom end of terrace house for sale in Ratcliffe Road, Sileby, LE12

Summary - 8 RATCLIFFE ROAD SILEBY LOUGHBOROUGH LE12 7PZ

2 bed 1 bath End of Terrace

**Standout Features:**
- No upward chain
- Charming corner plot end-of-terrace home
- Open-plan kitchen diner with wood burner
- Original features like cast iron fireplaces
- Two spacious double bedrooms
- Off-street parking
- Generous garden with patio and storage
- Excellent commuter access via A6, A46, and M1
- Close to amenities and reputable schools

**Concise Summary:**
Discover this delightful end-of-terrace home brimming with character and ready for you to make it your own. With no upward chain, this property features an inviting open-plan kitchen diner with a cozy wood burner, perfect for family gatherings or entertaining. The charming lounge showcases an original cast iron fireplace, while upstairs you’ll find two generously sized double bedrooms filled with character, along with a family bathroom.

The exterior offers an ample garden with a patio area ideal for alfresco dining and three brick-built stores for garden essentials. Enjoy the convenience of off-street parking and easy access to local amenities along with excellent transport links for commuting professionals. While the property retains its original charm, there is significant potential for modern touches or renovations, making it ideal for first-time buyers or investors. Don't miss out—properties like this are rare around LE12!

Property Details

Image Descriptions

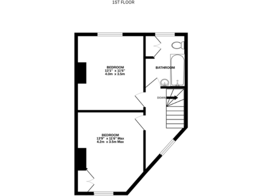
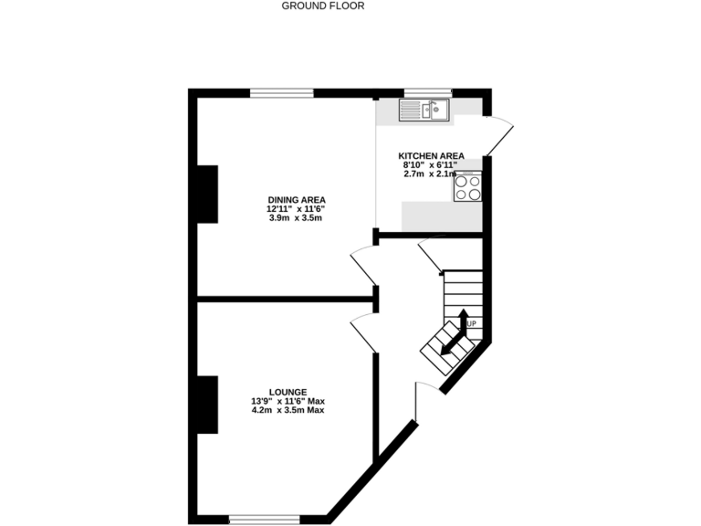
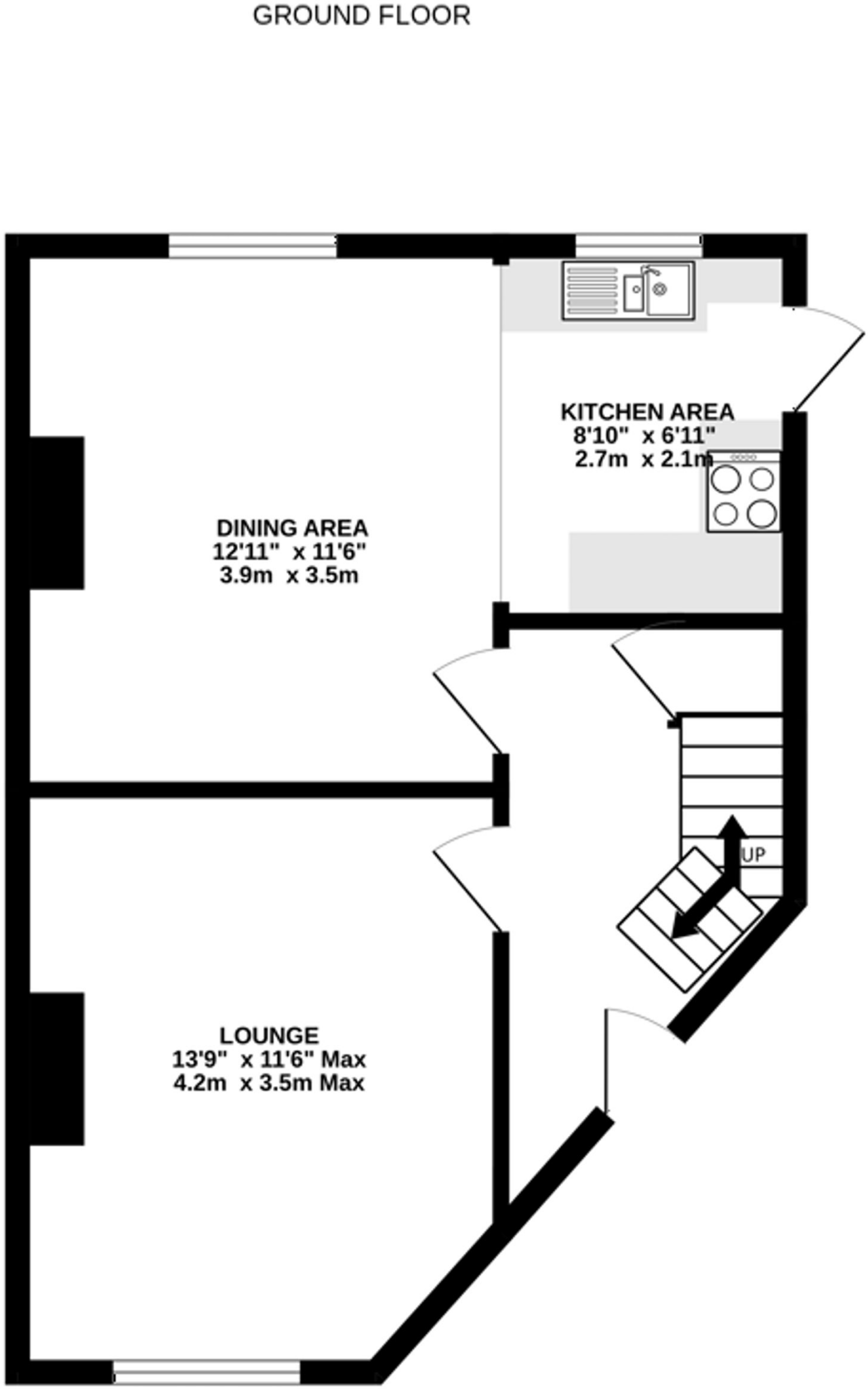
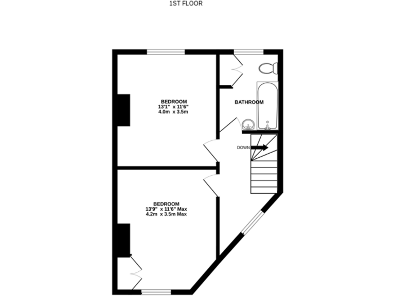
Floorplan Description

Rooms

Textual Property Features

Detected Visual Features

EPC Details

Nearby Schools

Nearest Bars And Restaurants

,,,,}

Nearest General Shops

,,}

Nearest Grocery shops

,,}

Nearest Supermarkets

,,}

Nearest Religious buildings

,,}

Nearest Medical buildings

,,,}

Nearest Airports

,}

Nearest Leisure Facilities

,,,,}

Nearest Tourist attractions

,,}

Nearest Train stations

,,,,}

Nearest Bus stations and stops

,,,,}

Nearest Hotels

,,}

Tags

Local Market Stats

AirBnB Data

Similar Properties

Meta

High Res Images

Compatible Images

Low res Images

Thumbnails

Raw Images

High Res Floorplan Images

Compatible Floorplan Images

Low res Floorplan Images

FloorplanImages Thumbnail

Raw Floorplan Images