Huge AONB estate with farmland, woodland, lakes and equestrian facilities..
Freehold historic estate of c.433 acres: farmland, woodland and lakes
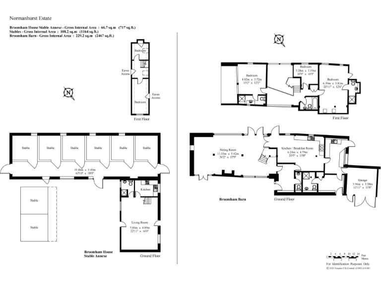
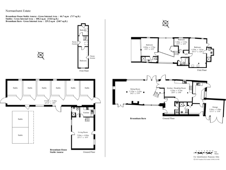
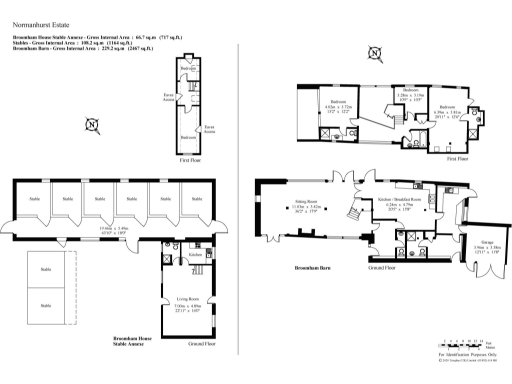
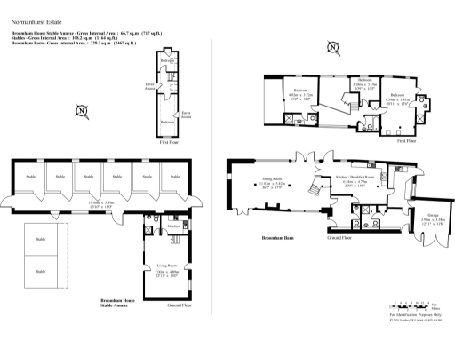
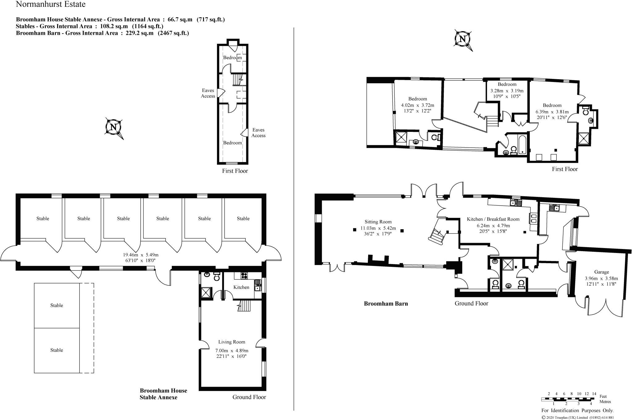
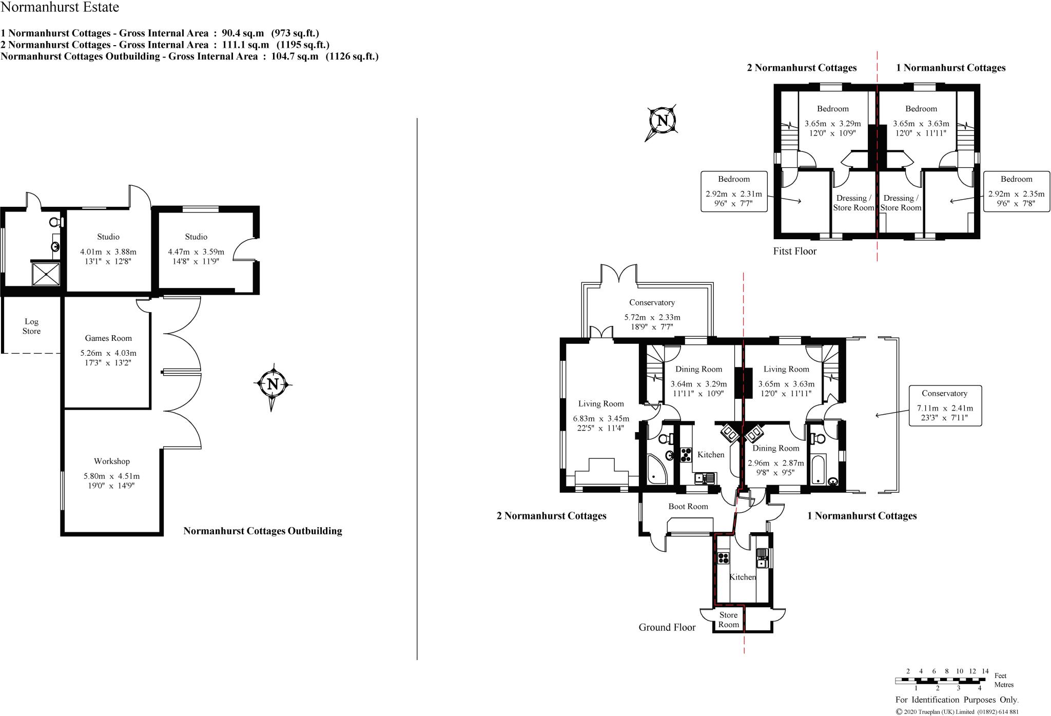
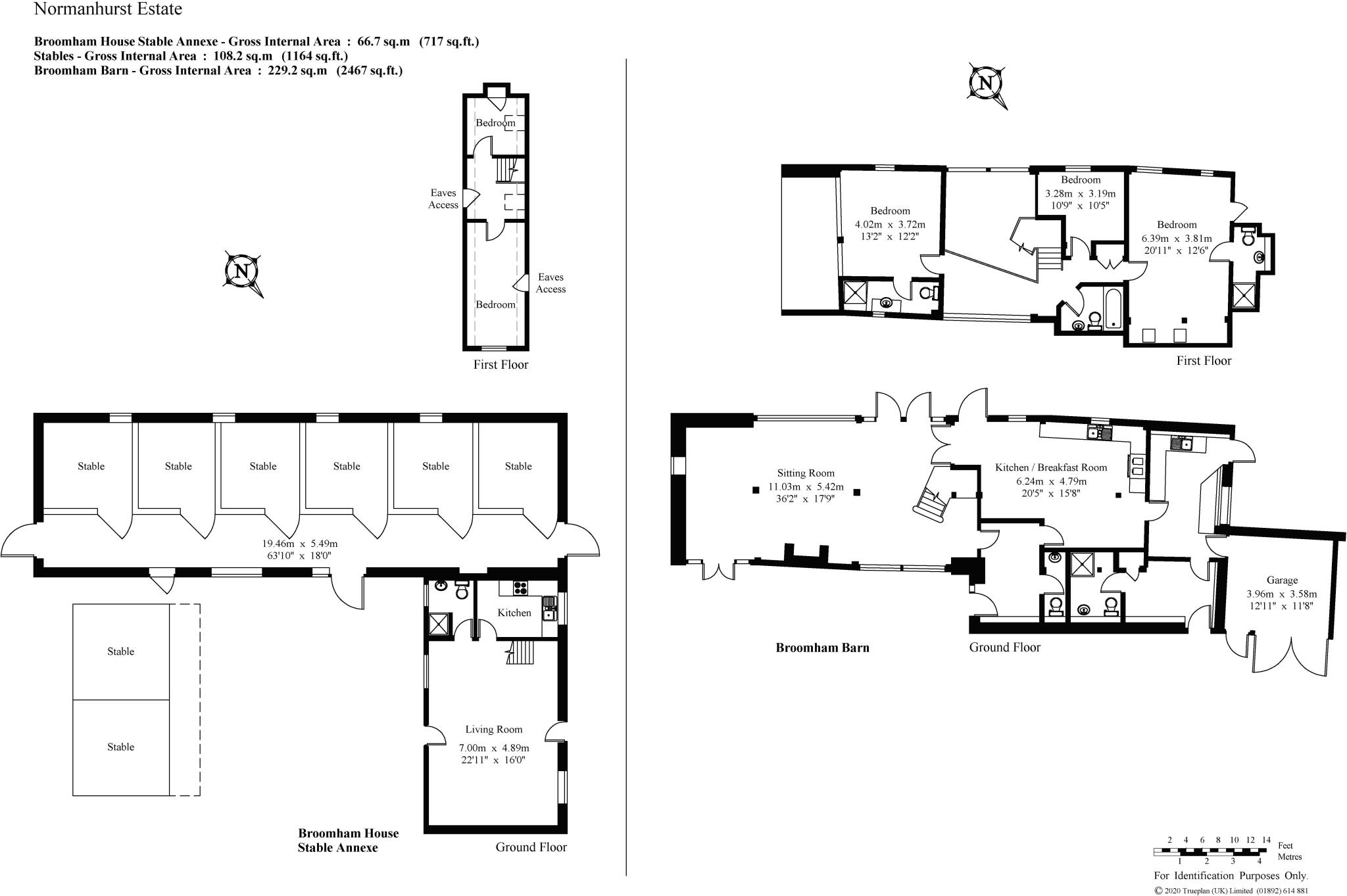
Normanhurst is a substantial historic country estate of exceptional scale in the High Weald Area of Outstanding Natural Beauty, extending to some 433 acres of farmland, woodland and lakes. The holding combines productive grazing and cropping land (about 235 acres), approximately 191 acres of mixed woodland, two central lakes (c.4 acres total) and a comprehensive range of agricultural and equestrian buildings, including 14 stables, large portal-frame barns and a 40m x 20m outdoor manège. Multiple residential units include a converted barn, an annexe and two semi-detached cottages, creating immediate accommodation or rental potential.
The estate is set in a historic Sussex landscape with mature specimen trees, good internal tracks and joined-up riding and walking routes. Productive elements are already established: a portion of the farm (c.138 acres) is let under a Farm Business Tenancy, one lake is licensed to a local angling club, and the equestrian yard benefits from independent access and substantial hard-standing suitable for lorries and trailers. Utilities and connectivity are reasonable for a rural holding (fast broadband, average mobile signal), and local services and good schools are within reach of the nearby village of Catsfield and Battle.
Material considerations are clear: the estate lies within an AONB and historic landscape, which supports conservation value but will restrict certain development options and require consent for significant change. Flood risk on parts of the property is high and will affect riverside low-lying areas and any proposals near the lakes. Large-scale management and ongoing maintenance will be required to steward woodland, farmland, buildings and lakes; part of the agricultural acreage is tenanted which constrains immediate whole-estate farming control.
This holding will suit buyers seeking a diversified rural business or lifestyle estate — equestrian operators, conservation-minded investors, or agricultural purchasers — who understand the obligations of owning an AONB property, the management overheads, and the need to work with planning and environmental constraints. The scale and range of buildings provide clear scope for enterprise growth, recreational use and income diversification, balanced by the practical realities of flood risk and conservation-led restrictions.
8 bedroom detached house for sale in Powdermill Lane, Battle, East Sussex, TN33 — £3,500,000 • 8 bed • 5 bath • 10606 ft²
7 bedroom detached house for sale in Catsfield, Battle, TN33 — £1,550,000 • 7 bed • 4 bath • 15854 ft²
6 bedroom detached house for sale in Whatlington Road, Battle, East Sussex, TN33 — £3,500,000 • 6 bed • 5 bath • 8041 ft²
Equestrian facility for sale in Peter James Lane, Fairlight, TN35 — £2,900,000 • 5 bed • 4 bath • 2587 ft²
Farm land for sale in Buckholt Farmland & Buildings, Buckholt Lane, Bexhill On Sea, East Sussex, TN39 — £1,475,000 • 1 bed • 1 bath • 25000 ft²
Equestrian facility for sale in Powdermill Lane, Battle, TN33 — £3,500,000 • 10 bed • 7 bath • 6920 ft²










































































