Spacious modern top-floor home with parking and excellent transport links.
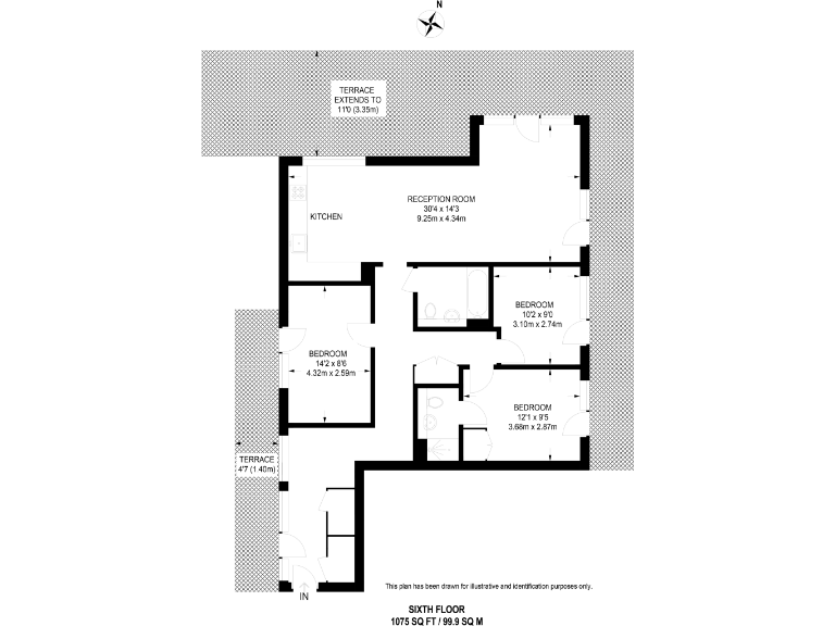
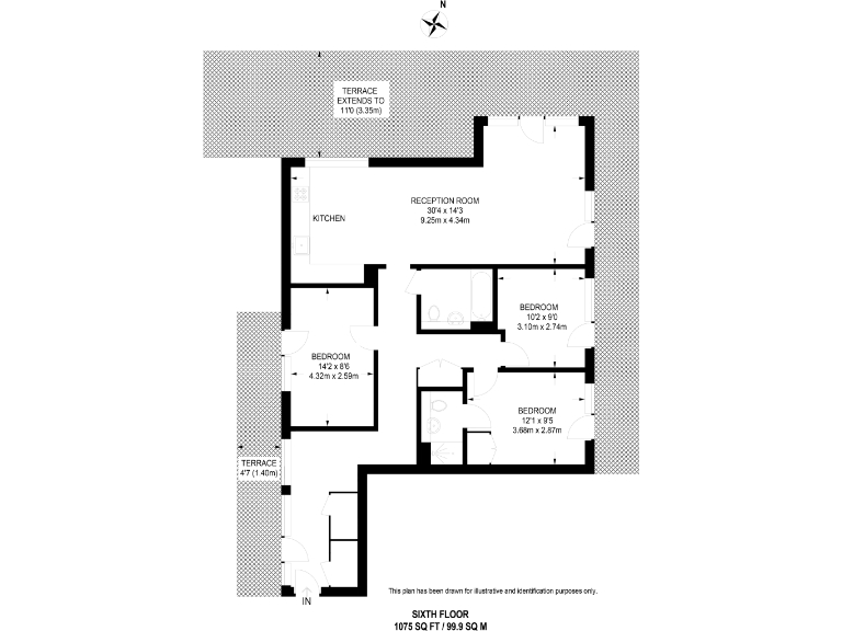
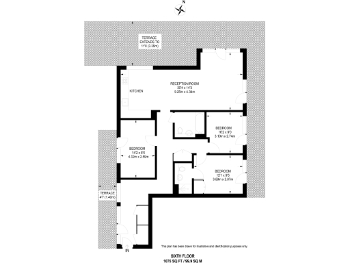
Wrap-around roof terrace with panoramic London views
Bright open-plan reception and dining kitchen
Main bedroom includes an en suite bathroom
Allocated off-street parking space and concierge service
Leasehold with 988 years remaining (long lease)
Ground rent approx. £400; communal heating and service charges apply
Only one bathroom for three bedrooms — may inconvenience families
Local area records higher crime rates — check local safety info
This bright three-bedroom penthouse sits at the top of a modern development in central Eltham, offering sweeping London views from a large wrap-around roof terrace. The open-plan reception and a modern kitchen with space to dine create a practical family living area, while the principal bedroom benefits from an en suite. Allocated off-street parking and concierge service add everyday convenience.
The apartment is leasehold with a very long term (988 years) and an average ground rent of £400; communal heating is provided via a community scheme and there may be service charges for building maintenance and concierge. The living room has generous glazing but a low-to-standard ceiling height, and there is a single bathroom serving three bedrooms which may matter for larger families or sharers.
Located close to Eltham Station with fast links into central London and a wide range of local amenities and schools (including several rated Good and Outstanding), the property suits buyers seeking a modern, low-maintenance home with excellent transport. Note: the area records higher-than-average crime; prospective buyers should view and check local safety details and service charge figures before committing.
3 bedroom penthouse for sale in Grove Place, London, SE9 — £550,000 • 3 bed • 2 bath • 10764 ft²
3 bedroom apartment for sale in Harmony Place, London, SE8 — £1,000,000 • 3 bed • 3 bath • 1487 ft²
3 bedroom flat for sale in Ottley Drive, Kidbrooke, London, SE3 — £600,000 • 3 bed • 2 bath • 1020 ft²
3 bedroom flat for sale in Progressive Close, Sidcup, DA14 — £420,000 • 3 bed • 2 bath • 1189 ft²
3 bedroom apartment for sale in Telcon Way, London, SE10 — £775,000 • 3 bed • 2 bath • 1237 ft²
3 bedroom penthouse for sale in Seren Park Gardens, Greenwich, London, SE3 — £1,075,000 • 3 bed • 2 bath • 1311 ft²






























































































