E15 1DA - 1 bed spacious one bedroom apartment in 7 Station Street, E…

View on Property Piper

1 bedroom apartment for sale in Unex Tower, Station Street, Stratford, E15

Summary - Unex Tower, Station Street, London, E15 E15 1DA

1 bed 1 bath Apartment

Modern seventh-floor flat opposite Stratford Station — excellent transport and views, with communal amenities..
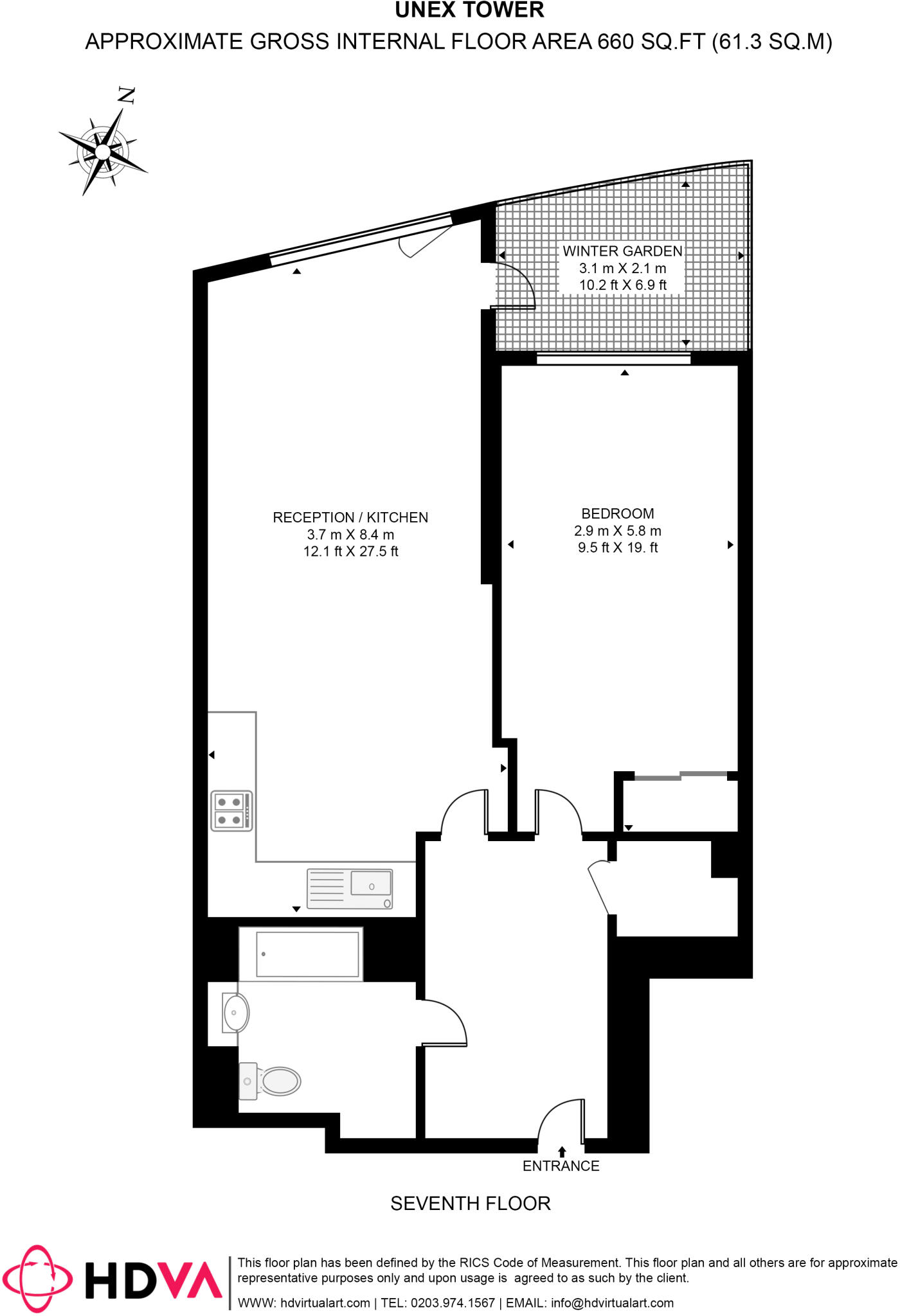
Spacious 1-bedroom open-plan apartment, approx. 660 sq ft
Private winter garden and floor-to-ceiling windows with city views
7th floor with lift; residents roof terrace and 24-hour concierge
Extremely close to Stratford Station and Westfield (0.1 miles)
EPC B; 116 years remaining on the lease
Service charge £2,872pa and ground rent £350pa (ongoing costs)
Broadband speeds reported as very slow — not ideal for heavy remote work
Local area flagged as deprived with very high crime statistics
Set on the seventh floor of Unex Tower, this spacious one-bedroom apartment offers 660 sq ft of open-plan living with full-height windows and a private winter garden. The layout suits a single professional or couple who value natural light, city views and immediate access to Stratford’s transport hub and Westfield shopping. Residents benefit from a 24-hour concierge, roof terrace and secure bike storage.

Practical details support peace of mind: an EPC rating B, 116 years remaining on the lease, and manageable council tax. Service charges (£2,872pa) and ground rent (£350pa) contribute to communal services including a community heating scheme; check these ongoing costs against your budget. Broadband is reported as very slow — important if you work from home.

Location is the apartment’s strongest selling point: 0.1 miles from Stratford Station with rapid links to Canary Wharf, the City and West London, plus an abundance of shops, restaurants and amenities on the doorstep. Be aware the immediate area records very high crime and is classified as deprived; service provision and security at the development are positives but local safety and neighbourhood conditions should be considered.

This apartment offers an attractive city base with clear rental or owner-occupier potential, especially for buyers prioritising connectivity and modern building amenities. It will particularly suit buyers ready to accept inner-city trade-offs (area deprivation, higher crime statistics and slow broadband) in exchange for location and views.

Property Details

Brochure Descriptions

Image Descriptions

Floorplan Description

Rooms

Textual Property Features

Target Audience

AI Tags

Detected Visual Features

EPC Details

Nearby Schools

Nearest Bars And Restaurants

,,,,}

Nearest General Shops

,,}

Nearest Grocery shops

,,}

Nearest Supermarkets

,,}

Nearest Religious buildings

,,}

Nearest Medical buildings

,,,}

Nearest Airports

,}

Nearest Leisure Facilities

,,,,}

Nearest Tourist attractions

,,}

Nearest Train stations

,,,,}

Nearest Bus stations and stops

,,,,}

Nearest Hotels

,,}

Tags

Local Market Stats

AirBnB Data

Similar Properties

Meta

High Res Images

Compatible Images

Low res Images

Thumbnails

Raw Images

High Res Floorplan Images

Compatible Floorplan Images

Low res Floorplan Images

FloorplanImages Thumbnail

Raw Floorplan Images