**Standout Features:**
- No chain, ready for immediate move-in
- Stunning views of White Nancy
- Spacious open-plan living and dining area
- Recently renovated kitchen with island unit
- Three well-appointed bedrooms and two bathrooms
- Additional accommodation with a Velux Cabrio balcony
- Off-street parking and manageable gardens
- Excellent mobile signal; average broadband speeds
- Low service charge and small ground rent
**Potential Concerns:**
- Leasehold tenure
- Average council tax band
- Small garden may not be suitable for large families
**Summary:**
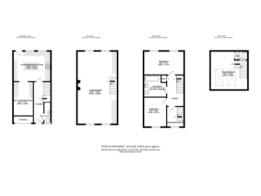
Discover exceptional urban living in this stunning townhouse, perfectly positioned to enjoy picturesque views of White Nancy. Featuring a contemporary design, this residence has been tastefully renovated to create bright, inviting spaces, including a spacious open-plan living and dining area adorned with a feature fireplace and built-in office space. The modern kitchen, complete with an island unit, flows seamlessly into a generous utility area converted from the garage.
With three bedrooms and two bathrooms spread over four stories, there’s ample room for families and professionals alike. The top floor boasts a private main bedroom with a newly fitted en-suite and a unique Velux Cabrio balcony that captures breathtaking views. Enjoy off-street parking, manageable gardens, and the proximity to highly-rated schools in an affluent neighborhood known for its vibrant community and local amenities. This property is a fantastic opportunity for buyers seeking comfort, elegance, and a touch of exclusivity—don't miss out on this gem!
3 bedroom town house for sale in Dyers Court, Bollington SK10 5GG, SK10 — £350,000 • 3 bed • 2 bath • 1561 ft²
4 bedroom town house for sale in Ingersley Vale, Bollington, SK10 5BP, SK10 — £365,000 • 4 bed • 2 bath • 1357 ft²
3 bedroom end of terrace house for sale in Jacksons Close, Kerridge, SK10 5GF, SK10 — £395,000 • 3 bed • 2 bath • 759 ft²
3 bedroom terraced house for sale in Vincent Street, Macclesfield, SK11 — £295,000 • 3 bed • 2 bath • 875 ft²
3 bedroom town house for sale in Edge View Crescent, Merrymans Lane, Alderley Edge, SK9 — £499,995 • 3 bed • 3 bath • 968 ft²
2 bedroom cottage for sale in Lord Street, Bollington, SK10 5BN, SK10 — £229,950 • 2 bed • 1 bath • 646 ft²














































































