Extended three-bedroom terrace, 0.3 miles from Raynes Park station, west garden.
Three double bedrooms and two bathrooms, including principal en suite
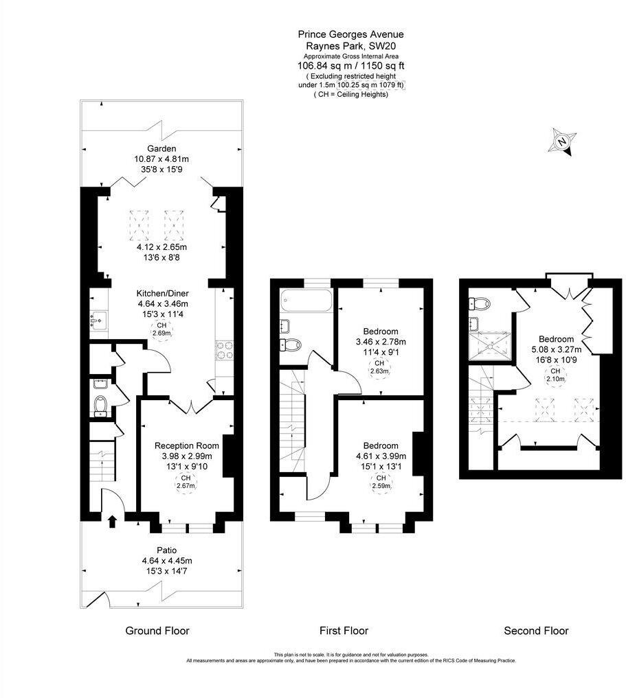
This mid-terrace Edwardian (Apostle) house offers 1,150 sqft of family-friendly living in Raynes Park, arranged over multiple floors with three double bedrooms and two bathrooms. The ground floor is dominated by a fully extended open-plan kitchen/dining room with bifold doors that open onto a west-facing rear garden — ideal for evening light and casual entertaining. A separate through-reception living room retains period character with a bay window and fireplace.
Practical features include a downstairs WC, a utility area, double glazing and a boiler-fed radiator heating system. The house is offered freehold with no onward chain and sits about 0.3 miles from Raynes Park station and high street, making daily commuting and local amenities very convenient. Local schools include several well-rated primaries and secondaries within easy reach.
Considerations: the property is a solid-brick Edwardian build (circa 1900–1929) and external wall insulation cannot be assumed; some buyers may want to budget for additional thermal upgrades. The rear garden and plot are typical for a London terrace — useful but modest in size. The interior is largely modern neutral finishes and in good order, though there is clear potential for further cosmetic updating to personalise the home.
Overall this is a well-located, practical family home that balances period character with contemporary open-plan living. It will suit buyers seeking immediate move-in convenience, easy transport connections and scope to add value through modest improvements.
3 bedroom terraced house for sale in Aston Road, Raynes Park, SW20 — £925,000 • 3 bed • 2 bath • 1298 ft²
3 bedroom terraced house for sale in Aston Road, Raynes Park, SW20 — £925,000 • 3 bed • 2 bath • 1174 ft²
3 bedroom terraced house for sale in Prince Georges Avenue, Raynes Park, SW20 — £975,000 • 3 bed • 2 bath • 1222 ft²
3 bedroom terraced house for sale in Aston Road, Raynes Park, SW20 — £1,000,000 • 3 bed • 3 bath • 1256 ft²
3 bedroom terraced house for sale in Vernon Avenue, Raynes Park, SW20 — £975,000 • 3 bed • 2 bath • 1225 ft²
3 bedroom terraced house for sale in Gore Road, Raynes Park, SW20 — £725,000 • 3 bed • 1 bath • 681 ft²


















































