Private village setting with landscaped gardens and practical outbuildings.
Detached stone cottage with three double bedrooms
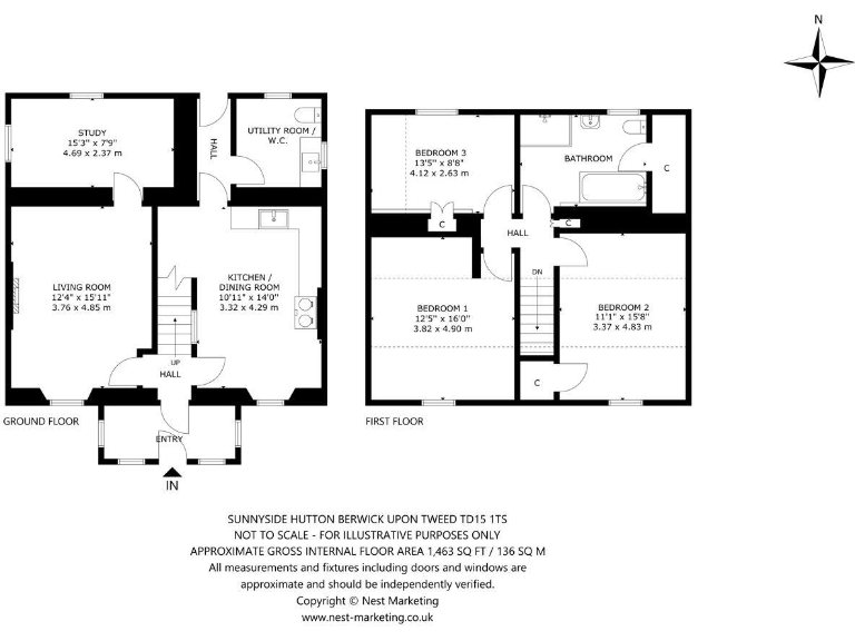
Tucked on the edge of Hutton, this detached stone cottage offers private, tranquil living for a family seeking rural charm with easy access to Berwick-upon-Tweed. The house has two reception rooms, a kitchen-dining space, utility and three double bedrooms on the first floor, arranged in a traditional layout that suits everyday family life.
The mature, landscaped gardens to the front and rear provide low-maintenance outdoor space, a patio, lawn and useful outbuildings including a stone store and timber studio – ideal for hobby space or home working. Off-street parking adds practical convenience in this quiet setting, while Berwick’s mainline station is about eight miles away for rail links north and south.
Practical realities are clear: the property is an older sandstone build (pre-1900) with assumed no wall insulation and oil-fired central heating. There is a single family bathroom and generally low ceilings in places, so buyers should factor potential upgrades such as insulation, heating modernisation or internal alterations into their plans. EPC currently recorded as D and council tax band C.
This home will suit buyers prioritising character, privacy and countryside living over turnkey modernity. It offers good scope to improve energy performance and internal layouts while enjoying a peaceful village location within reach of coastal services and rail connections.
3 bedroom detached house for sale in Yew Tree Cottage, Hutton, Berwickshire, TD15 — £325,000 • 3 bed • 1 bath • 1109 ft²
2 bedroom cottage for sale in Elm Bank Cottage, TD15 — £485,000 • 2 bed • 2 bath • 947 ft²
3 bedroom detached house for sale in The Garden Cottage, Edrington, Foulden, Berwickshire, TD15 — £565,000 • 3 bed • 1 bath • 2088 ft²
2 bedroom cottage for sale in Hedgerow Cottage, 2 Spital Mains, Paxton, Near Berwick-Upon-Tweed, TD15 — £170,000 • 2 bed • 1 bath • 624 ft²
2 bedroom terraced house for sale in St. Cuthberts Cottages, Donaldsons Lodge, Northumberland, TD12 — £210,000 • 2 bed • 1 bath • 883 ft²
5 bedroom detached house for sale in Meadow House Mains, Paxton, Berwick-upon-Tweed, Scottish Borders, TD15 — £895,000 • 5 bed • 3 bath • 3391 ft²














































































