G5 0PZ - 3 bedroom flat for sale in Flat 66, 57 Waddell Court, Glasg…

View on Property Piper

3 bedroom flat for sale in Flat 66, 57 Waddell Court, Glasgow, G5

Summary - FLAT 66, 57, WADDELL COURT, GLASGOW G5 0PZ

3 bed 1 bath Flat

Bright three-bedroom maisonette near Glasgow city centre with parking and southern views..
- Main-door upper maisonette with three bedrooms
- South-facing lounge with Juliet balcony and open views
- Newly fitted Worcester gas boiler (installed 09/2025)
- Double glazing and refurbished building fabric
- Residents' gardens and off-street parking available
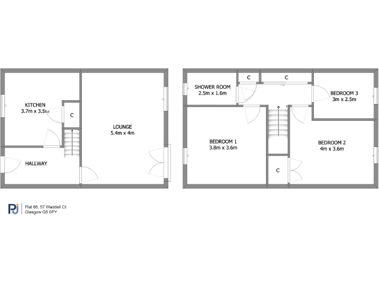
- Overall internal size fairly small (~797 sq ft)
- Located in very deprived, cosmopolitan student neighbourhood
- Tenure not specified; verify before purchase
This main-door upper maisonette sits in a refurbished block just off Ballater Street, ten minutes’ walk from Glasgow city centre. The flat has a bright, south-facing lounge with a Juliet balcony and open southerly views, plus three bedrooms and a modern shower room — a practical layout for first-time buyers seeking space close to the city.

The building benefits from recent updates and double glazing; a Worcester gas boiler was installed in 09/2025, improving heating efficiency. Residents enjoy off-street parking and communal gardens, while excellent public transport, cycle routes and nearby amenities make daily life convenient.

Be aware this property sits in a very deprived, cosmopolitan student neighbourhood and tenure is not specified. The overall internal size is relatively small for a three-bedroom at about 797 sq ft, and some rooms show dated finishes that could use light modernisation. These factors affect long-term resale and mortgage considerations.

For buyers seeking a well-located, ready-to-move-in home with short-term rental or buy-to-let potential, this flat presents good value. It combines recent mechanical upgrades with straightforward cosmetic improvement opportunities, allowing purchasers to personalise the space and improve future returns or comfort.

Property Details

Image Descriptions

Floorplan Description

Rooms

Textual Property Features

Target Audience

AI Tags

Detected Visual Features

Nearest Bars And Restaurants

,,,,}

Nearest General Shops

,,}

Nearest Grocery shops

,,}

Nearest Supermarkets

,,}

Nearest Religious buildings

,,}

Nearest Medical buildings

,,,}

Nearest Airports

,}

Nearest Leisure Facilities

,,,,}

Nearest Tourist attractions

,,}

Nearest Train stations

,,,,}

Nearest Bus stations and stops

,,,,}

Nearest Hotels

,,}

Tags

Local Market Stats

AirBnB Data

Similar Properties

Meta

High Res Images

Compatible Images

Low res Images

Thumbnails

Raw Images

High Res Floorplan Images

Compatible Floorplan Images

Low res Floorplan Images

FloorplanImages Thumbnail

Raw Floorplan Images