Refurbished four-bedroom family home in a peaceful AONB village close to amenities.
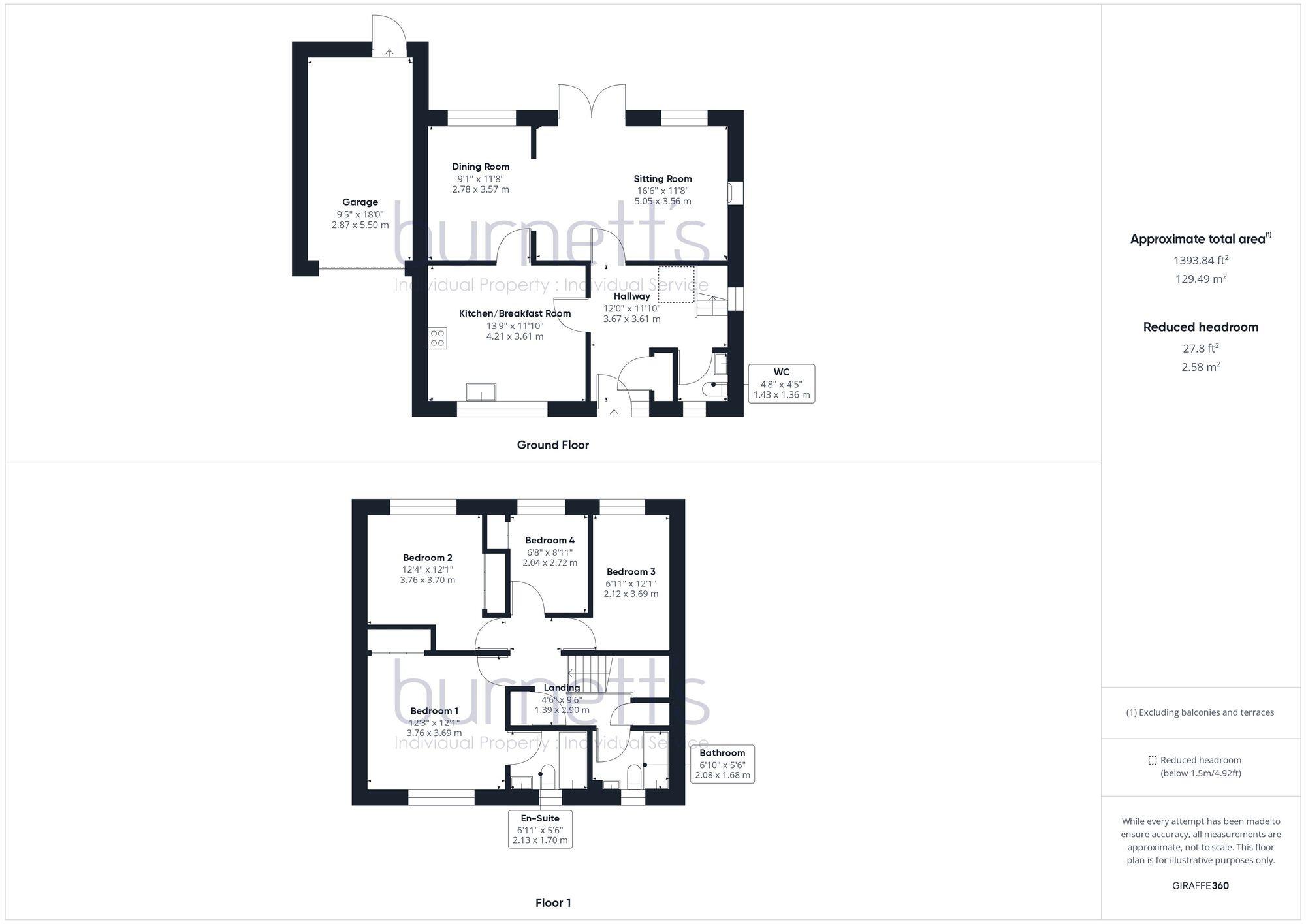
Four bedrooms, principal with ensuite and fitted wardrobes
New windows, new flooring, fresh decoration throughout
Kitchen/breakfast room with range cooker and integrated appliances
Sitting room with working open fireplace and French doors
Attached single garage and driveway parking for two cars
Private rear garden with full-width decking and mature shrubs
Council Tax Band F — relatively high running costs
EPC D, no step-free access; title has covenants and easements
Quietly tucked at the end of a small private close, this recently refurbished four-bedroom detached house offers ready-to-move-in family living. New windows, floors and fresh decoration combine with a 2023 boiler and recent electrical works for straightforward occupancy and lower short-term maintenance needs.
The ground floor flows from a generous kitchen/breakfast room into a dining room and sitting room with a working open fireplace and French doors to an enclosed rear garden with decking — a practical layout for family life and entertaining. Upstairs are four bedrooms, the principal with fitted wardrobes and an ensuite, plus a family bathroom. The attached single garage, driveway parking for two cars and decent plot provide useful outdoor and storage space.
Practical points to note: the property is council tax Band F (relatively expensive), has an EPC rating of D, and there is no step-free access. The title includes covenants and easements, so buyers should take legal advice. The house sits within the Area of Outstanding Natural Beauty and has very low local crime and fast broadband.
Overall this is a comfortably appointed family home in a peaceful village setting, offered chain-free and ready for a family seeking easy access to local schools, countryside walks and nearby towns such as Crowborough and Tunbridge Wells.
4 bedroom detached house for sale in Court Meadow Close, Rotherfield, Crowborough, TN6 — £575,000 • 4 bed • 2 bath • 1537 ft²
4 bedroom chalet for sale in Argos Hill, Rotherfield, TN6 — £525,000 • 4 bed • 1 bath • 14833 ft²
4 bedroom detached house for sale in Court Meadow Close, Rotherfield, TN6 — £520,000 • 4 bed • 2 bath • 1481 ft²
4 bedroom detached house for sale in Mayfield Road, Rotherfield, Crowborough, TN6 — £780,000 • 4 bed • 2 bath • 1884 ft²
4 bedroom detached house for sale in Coldharbour Close, Crowborough, TN6 — £460,000 • 4 bed • 2 bath • 1335 ft²
5 bedroom detached house for sale in Clackhams Lane, Crowborough, TN6 — £1,000,000 • 5 bed • 4 bath • 3323 ft²






































































































