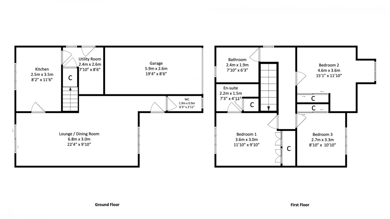
### Standout Features:
- **Location:** Quiet cul-de-sac in Ashley Park, Uddingston
- **Property Type:** Modern 3-bedroom detached house
- **Space:** Total area of 1,038 sq ft with an average room size
- **Parking:** Integral garage plus multi-car driveway
- **Outdoor Space:** Enclosed rear garden with raised decking
- **Convenience:** Close to local amenities and excellent transport links
- **Modern Upgrades:** Gas central heating (new boiler), double glazing
- **Additional Rooms:** Utility room and stylish downstairs WC
### Summary:
Discover this charming three-bedroom detached home in the desirable Ashley Park area of Uddingston, ideal for families looking for comfort and style in a convenient location. This spacious property features a bright lounge with a dining area, a modern kitchen with a utility room, and a stylish downstairs WC, perfect for day-to-day living. Upstairs, enjoy three well-appointed bedrooms with fitted wardrobes, including a primary bedroom complete with a contemporary en-suite.
Step outside to the delightful enclosed rear garden, which boasts a raised decking area ideal for outdoor entertaining. Additional benefits include an integral garage, a multi-car driveway, and modern conveniences like gas central heating and double glazing. While the area is classified as having above-average council tax and challenges in terms of deprivation, its blend of community amenities — from shops to schools — makes it a wonderful family-friendly neighborhood. Act fast; properties of this quality in Ashley Park don’t last long!
3 bedroom detached house for sale in Greenoakhill Crescent, Uddingston, Glasgow, City of Glasgow, G71 7PW, G71 — £270,000 • 3 bed • 3 bath • 943 ft²
3 bedroom detached house for sale in Clyde View, Ashgill, Larkhall, ML9 — £189,955 • 3 bed • 2 bath
3 bedroom semi-detached house for sale in Calderbank Road, Uddingston, Glasgow, Glasgow City, G71 — £245,000 • 3 bed • 2 bath
3 bedroom detached house for sale in Greenoakhill Crescent, Uddingston, Glasgow, City Of Glasgow, G71 7PW, G71 — £270,000 • 3 bed • 3 bath • 994 ft²
3 bedroom detached house for sale in Rosewood Gardens, Viewpark, Uddingston, G71 — £240,000 • 3 bed • 1 bath • 1025 ft²
3 bedroom semi-detached house for sale in Glencroft Avenue, Uddingston, G71 — £230,000 • 3 bed • 1 bath • 936 ft²


































































































































































































