Manageable three-bedroom house with large garden and garage, ideal for downsizers.
Three bedrooms with practical, easy-to-manage layout
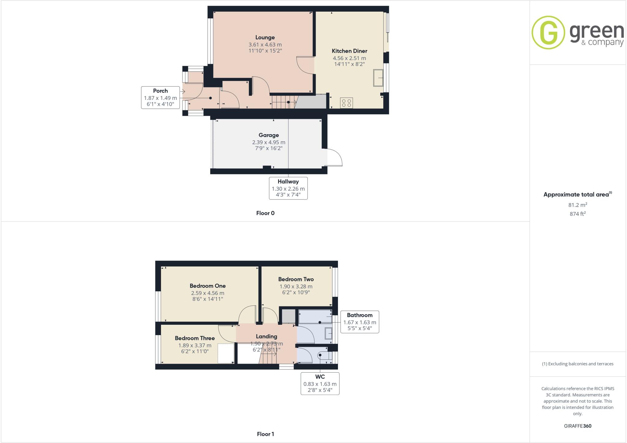
A compact three-bedroom semi-detached home on a larger-than-typical corner plot, with a long rear garden, driveway and single garage. The layout is straightforward: porch, hallway, lounge, kitchen/diner with patio doors, three first-floor bedrooms, bathroom and separate WC — a practical plan for downsizers seeking easy-to-manage space and outdoor room for gardening or relaxation.
The house is freehold, gas‑central heated with double glazing, and benefits from good mobile and fast broadband options — useful for working from home or staying connected. Internal presentation is neutral and modern, so most buyers should only need minor cosmetic updates rather than major structural work.
Be realistic about the location: the immediate area is classified as deprived with above‑average crime levels, which may affect resale expectations. The property was built in the late 1960s–1970s and has filled cavity walls and double glazing of unknown age; a buyer survey is recommended to confirm the condition of services and windows.
Overall this is a low‑maintenance, well‑laid-out home with sizeable outdoor space and parking — suited to buyers wanting manageable accommodation with scope to add value through modest improvements.
3 bedroom end of terrace house for sale in Burnsall Close, BIRMINGHAM, B37 — £220,000 • 3 bed • 1 bath • 736 ft²
3 bedroom end of terrace house for sale in Nevada Way, Birmingham, B37 — £175,000 • 3 bed • 1 bath • 1002 ft²
3 bedroom terraced house for sale in Kew Close, BIRMINGHAM, B37 — £175,000 • 3 bed • 1 bath • 619 ft²
3 bedroom terraced house for sale in Hatchford Walk, BIRMINGHAM, B37 — £180,000 • 3 bed • 1 bath • 862 ft²
3 bedroom terraced house for sale in Yorkminster Drive, Chelmsley Wood, B37 — £200,000 • 3 bed • 1 bath • 848 ft²
3 bedroom end of terrace house for sale in Heathmere Drive, Birmingham, B37 — £170,000 • 3 bed • 1 bath • 883 ft²






















































































































