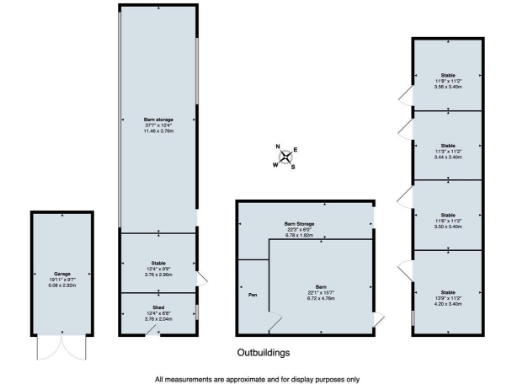
2.41 acre plot with paddock, woodland and extensive privacy
Set on a substantial 2.41 acre plot on the edge of an attractive Warwickshire village, this character semi‑detached cottage combines genuine rural privacy with strong equestrian potential. The existing outbuildings include five stables, multiple barns and a detached garage, with paddock land immediately adjoining the garden — ideal for small-scale horse keeping or hobby farming. Planning permission has been granted for a detached annexe, adding flexibility for multi‑generational use or rental income (North Warwickshire Borough Council Ref: PAP/2023/0488).
Internally the house offers almost 1,300 sqft of traditional accommodation including two reception rooms, a kitchen/breakfast room, utility, ground floor bathroom and four double bedrooms upstairs. Period features such as exposed beams and a feature fireplace add charm, but the property requires modernisation throughout to bring heating, fittings and finishes up to contemporary standards. The walls are solid brick with no insulation (assumed) and glazing is secondary — buyers should factor in energy upgrades.
Practical considerations are straightforward: off‑street parking via a long driveway, generous lawned gardens, large outbuildings and good road links to Coleshill, Birmingham and the M42. However there are some material negatives to note — broadband speeds are slow, the area has an above‑average crime statistic, council tax is above average (Band E) and the site has a medium flood risk. These factors, together with the need for improvement work, mean the property suits buyers looking for a project with land value or established equestrian use rather than a move‑in‑ready family home.
Overall this is a rare country holding with scope — attractive to buyers seeking large grounds, stables and planning flexibility. If you prioritise land, privacy and character and are prepared to invest in upgrades, the property offers genuine long‑term potential.















































































