Chain-free two-bed flat with parking in Cheltenham’s Montpellier quarter.
Chain-free two-bedroom apartment in Montpellier
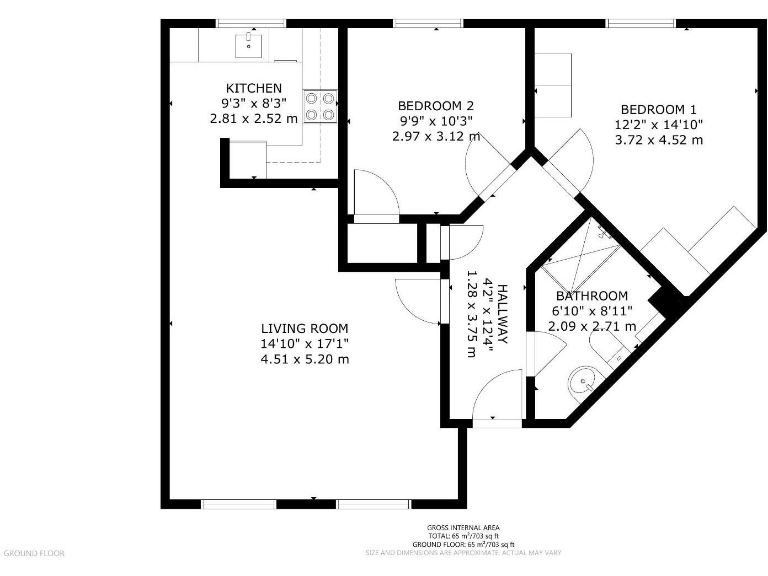
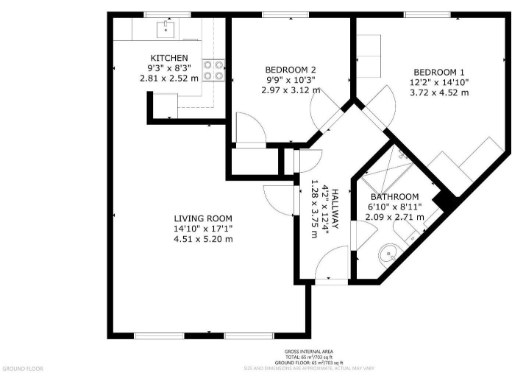
A bright two-bedroom apartment in the heart of Montpellier, offered chain-free and ready to move into. The flat sits within a modern 1985 development surrounded by boutique shops, cafés and cultural venues, making it ideal for someone who wants central Cheltenham on their doorstep. The living room provides space for dining, the kitchen is contemporary and compact, and both bedrooms include built-in storage.
Practical benefits include an off-street parking space, double glazing, and an efficient layout across approximately 668 sq ft. Service charge is modest at £1,150 per year and there is no flood risk. The lease has 86 years remaining, so buyers should factor lease length into affordability and future mortgage or resale plans.
Notable drawbacks are the electric storage heating (no gas central heating) and a higher local crime rate than average, which may concern some buyers or affect insurance costs. Short-term lets are not permitted (no Airbnb). Overall this apartment suits first-time buyers or professionals seeking a central, low-maintenance base with good local amenities and parking, provided they accept the lease and heating arrangements.
2 bedroom apartment for sale in Brookbank Close, Cheltenham, Gloucestershire, GL50 — £240,000 • 2 bed • 2 bath • 910 ft²
2 bedroom apartment for sale in Bath Street, Cheltenham Town Centre, GL50 — £150,000 • 2 bed • 2 bath • 548 ft²
1 bedroom flat for sale in Oriel Road, Cheltenham, GL50 — £207,500 • 1 bed • 1 bath • 577 ft²
2 bedroom apartment for sale in Montpellier Spa Road, Cheltenham, Gloucestershire, GL50 — £340,000 • 2 bed • 2 bath • 677 ft²
1 bedroom flat for sale in Millbrook Street, Cheltenham, GL50 — £136,000 • 1 bed • 1 bath • 485 ft²
2 bedroom apartment for sale in Montpellier Spa Road, Montpellier, Cheltenham, GL50 — £490,000 • 2 bed • 2 bath • 861 ft²






















































