Move-in ready one-bed with garden near Highbury transport and green space.
Newly renovated throughout, contemporary fixtures and fittings
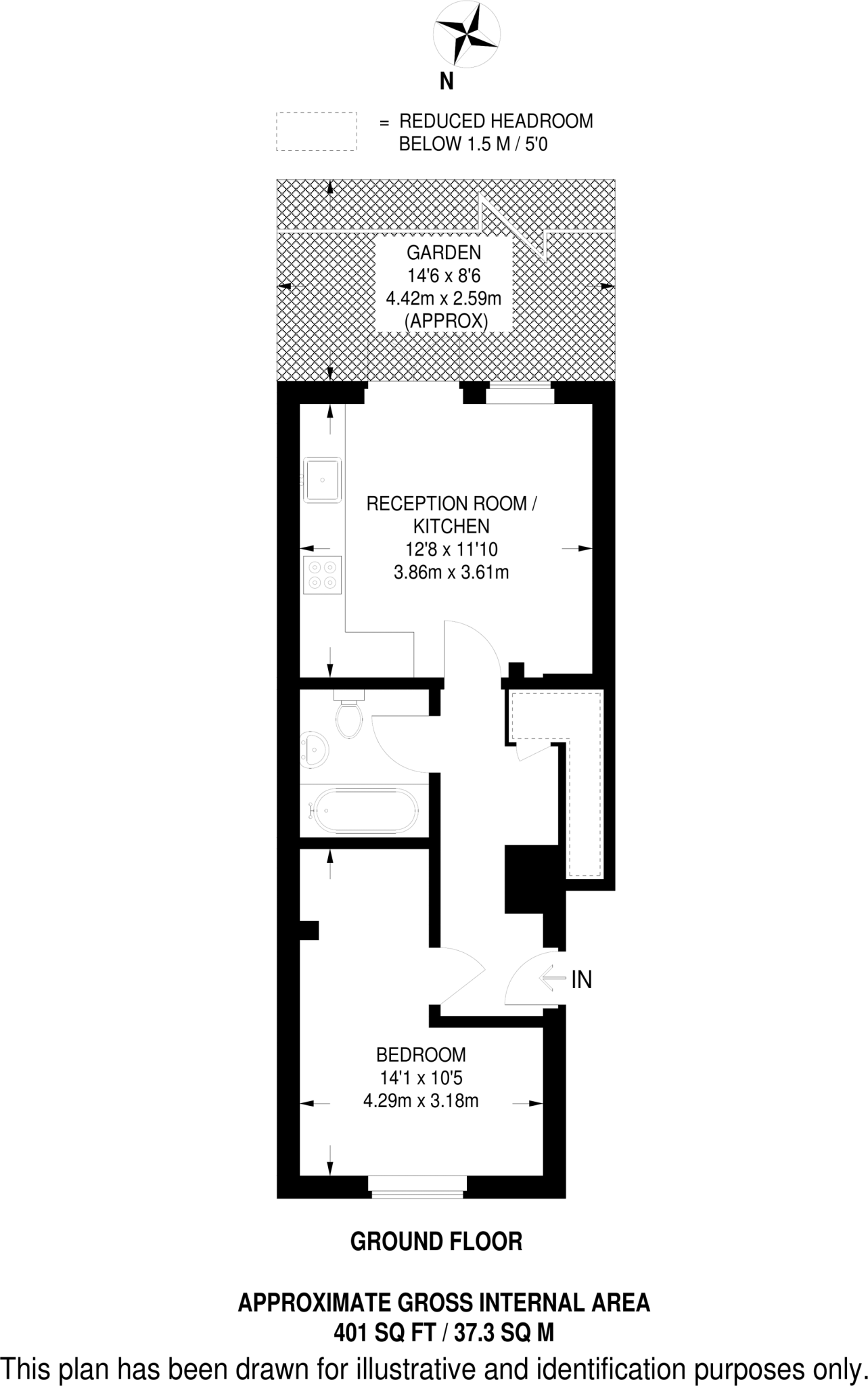
A compact, newly renovated one-bedroom ground-floor flat offering a bright open-plan kitchen/reception and a private rear garden. The finish is modern throughout, with built-in bedroom storage, double glazing and a contemporary bathroom — a move-in ready option for a first-time buyer or buyer seeking a London pied-à-terre.
The building dates from the early 20th century and retains period character in a mid-terrace form. The flat is small (401 sq ft) so living space is efficient rather than expansive; its ground-floor position gives easy access to the garden but may be less private than upper-floor homes.
Practical positives include share of freehold tenure, mains gas central heating and fast broadband and mobile signal for home working. The location is strong for transport and local amenities — Highbury & Islington station and Highbury Fields are within walking distance — and there are several well-rated schools nearby.
Be clear on two material negatives: the wider area scores high for crime and is classified as very deprived, and the original solid brick walls are assumed to have no insulation, which could mean higher heating costs and future retrofit work. These are important factors to weigh alongside the flat’s quality finish and central location.
1 bedroom flat for sale in Aberdeen Park, Highbury, London, N5 — £450,000 • 1 bed • 1 bath • 518 ft²
1 bedroom flat for sale in Bardolph Road, Islington, N7 — £450,000 • 1 bed • 1 bath • 718 ft²
1 bedroom flat for sale in Northstand Apartments, Arsenal, London, N5 — £500,000 • 1 bed • 1 bath • 605 ft²
1 bedroom apartment for sale in Highbury New Park, London, N5 — £465,600 • 1 bed • 1 bath • 527 ft²
1 bedroom flat for sale in Arlington Avenue, Islington, London, N1 — £550,000 • 1 bed • 1 bath • 548 ft²
Studio apartment for sale in Highbury New Park, Islington, N5 — £625,000 • 1 bed • 1 bath • 593 ft²














































































































































































































