Well-presented family home with west-facing garden and home office..
Three bedrooms including master with en suite
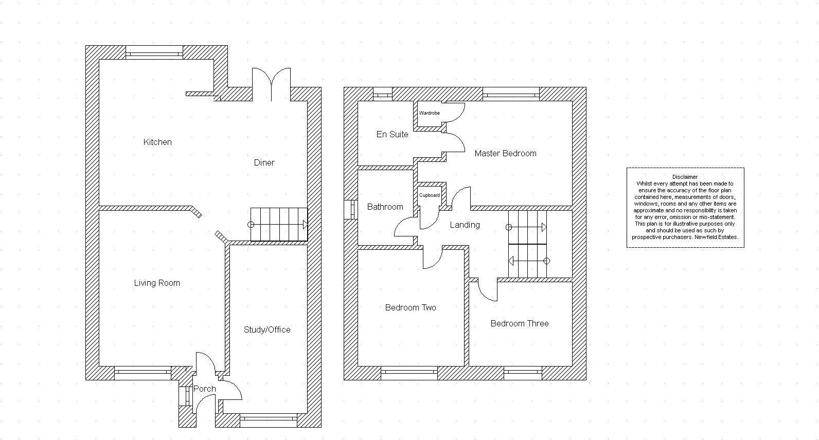
Light, well-presented and arranged for family life, this three-bedroom semi-detached home on Bridgemere Drive offers sensible living spaces and practical outside space. A spacious living room and a modern fitted kitchen/diner sit alongside a converted garage now used as a study — useful for home working or a playroom. The master bedroom includes an en suite, supported by a main stylish bathroom on the first floor.
The rear garden faces west, catching afternoon and evening sun and providing a lawn and paved patio for children and outdoor dining. Off-street parking is provided by a driveway to the front, and the property benefits from double glazing and a gas boiler with radiators. Constructed around 1996–2002, the house sits within a popular, affluent area with excellent local primary and secondary schools nearby.
Practical points to note: the garage was converted into an office in 2023, so there is no longer an internal garage; the plot is modest in size. The property has an EPC rating of C and is offered freehold. Overall, this is a comfortable, move-in-ready family home in a sought-after neighbourhood — ideal for buyers prioritising schools, outdoor space and a dedicated home office.
3 bedroom semi-detached house for sale in Lilac Avenue, Framwellgate Moor, Durham, DH1 — £160,000 • 3 bed • 1 bath • 667 ft²
3 bedroom semi-detached house for sale in Bridgemere Drive, Framwellgate Moor, Durham, DH1 — £219,500 • 3 bed • 2 bath • 1195 ft²
2 bedroom semi-detached house for sale in Bridgemere Drive, Framwellgate Moor, Durham, DH1 — £160,000 • 2 bed • 1 bath • 657 ft²
2 bedroom semi-detached house for sale in Hatfield Close, Framwellgate Moor, Durham, DH1 — £190,000 • 2 bed • 1 bath • 540 ft²
2 bedroom semi-detached house for sale in Bridgemere Drive, Framwellgate Moor, DH1 — £160,000 • 2 bed • 1 bath • 536 ft²
3 bedroom semi-detached house for sale in Beaver Close, Durham, County Durham, DH1 — £225,000 • 3 bed • 2 bath • 964 ft²






























































