Central location near shops, quay and strong transport links.
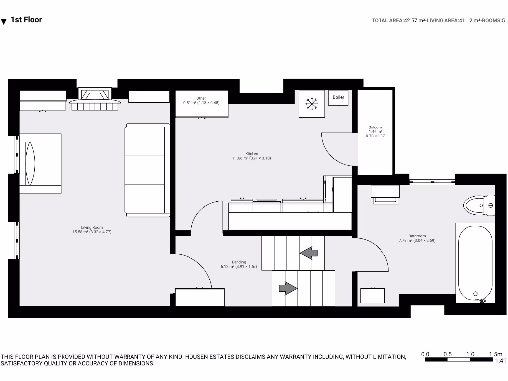
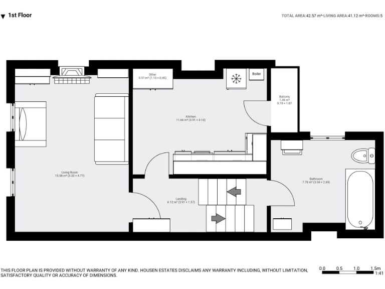
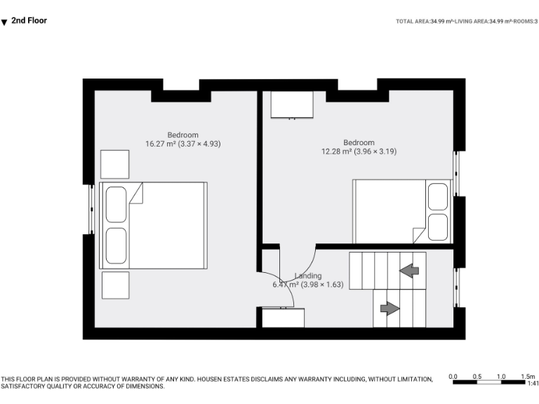
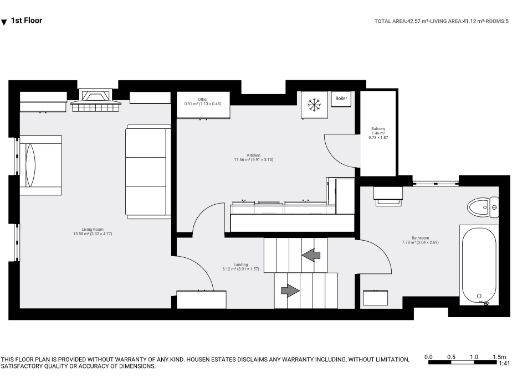
Freehold two-level maisonette in St Thomas, Exeter
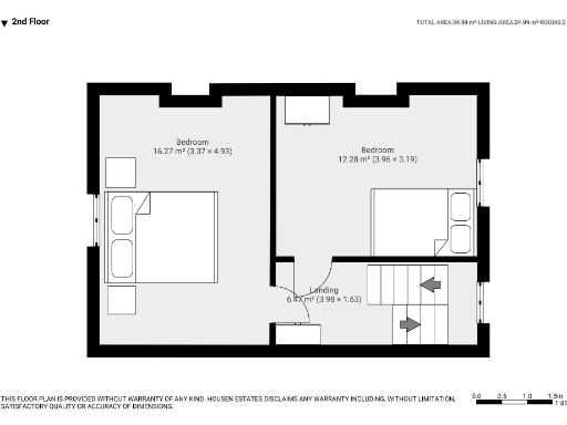
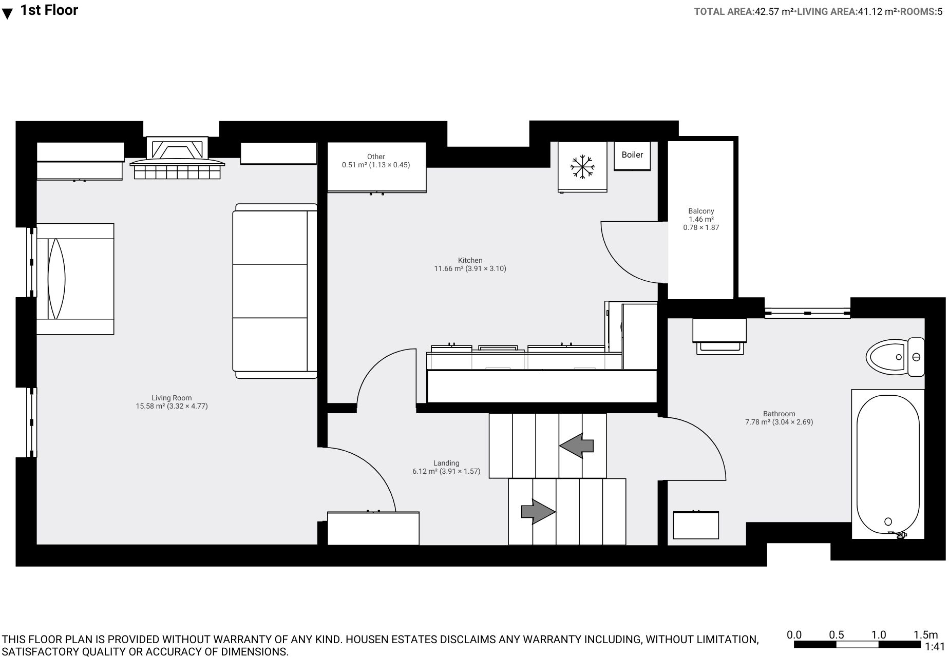
Set over two levels in a handsome Victorian terrace, this 2-bedroom freehold maisonette sits in the popular St Thomas area close to Exeter Quay. Bright, well-proportioned rooms and high ceilings retain period character while double glazing (post-2002) helps with warmth and noise. The layout includes a comfortable living room, a practical kitchen and a private outside space for morning coffee or container gardening.
This home will suit first-time buyers or professionals who want central convenience — shops, cafes and strong transport links are all within easy walking distance. Heating runs from a mains-gas boiler and radiators. Council tax is inexpensive and the property is offered chain free, simplifying any purchase.
There is clear potential to add value through updating and insulation work. The building’s solid brick walls were constructed before 1900 and are assumed to lack cavity insulation, so be prepared for possible retrofit costs. The EPC is a D and the interior needs modernisation in places, which makes this a sensible buy-for-improvement opportunity rather than a turnkey move-in for those seeking fully modern finishes.
Despite being in a generally deprived area, local crime risk is low and community amenities and schools are nearby. The maisonette’s compact plot and small garden frontage reflect its city-centre position — low-maintenance outdoor space rather than a large garden.
2 bedroom flat for sale in Queens Road, Exeter, EX2 — £195,000 • 2 bed • 1 bath
1 bedroom apartment for sale in North Avenue, 7 North Avenue, Exeter, EX1 — £185,000 • 1 bed • 1 bath • 496 ft²
2 bedroom maisonette for sale in Thornpark Rise, Whipton, Exeter, Devon, EX1 — £165,000 • 2 bed • 1 bath • 549 ft²
3 bedroom maisonette for sale in Prospect Place, Exeter, EX4 — £190,000 • 3 bed • 1 bath • 566 ft²
2 bedroom maisonette for sale in Cowick Street, Exeter, Devon, EX4 — £165,000 • 2 bed • 1 bath • 680 ft²
2 bedroom maisonette for sale in Heavitree Road, Exeter, EX1 — £230,000 • 2 bed • 1 bath • 800 ft²














































































