Fully furnished three-bedroom lodge with stunning reservoir and forest views.
Three bedrooms with ensuite to master; turnkey furnished lodge
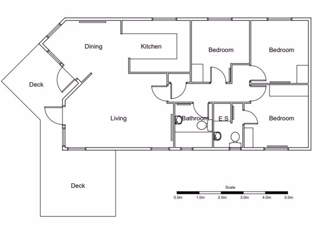
Shepherd’s Purse is a fully furnished three-bedroom lodge set on Clear Sky Lodge Park in Kielder Water and Forest Park, occupying a prime, elevated plot with wide forest and reservoir views. The open-plan living, dining and kitchen area opens onto a large raised veranda (rebuilt 2019) designed to take advantage of the scenery. The main bedroom benefits from an ensuite; two further bedrooms and a family bathroom complete the practical, holiday-style layout.
The lodge is ready to occupy and comes with LPG central heating, double glazing and fitted kitchen appliances — a turnkey proposition for short-stay rental or a low-maintenance countryside retreat. Private gravel parking sits directly in front of the property and the site is noted for well-spaced lodges and attractive communal upkeep, enhancing privacy and letting appeal.
Important practical points: the lodge is leasehold and may only be occupied for eleven months of the year (park closed in February). Broadband speeds in the area are very slow and mobile signal is only average, which may affect remote working or long-stay tenants. The total internal area is modest (approx. 792 sq ft), and the setting is a remoter rural community — ideal for nature lovers but less convenient for everyday services.
This property will suit buyers seeking a ready-made holiday let/investment or a furnished weekend retreat who prioritise location and views over urban connectivity. Be clear on park terms, service charges and lease details before committing — these materially affect running costs and use rights.
2 bedroom lodge for sale in kielder, Kielder, Hexham, NE48 1EL, NE48 — £67,500 • 2 bed • 1 bath • 699 ft²
2 bedroom detached house for sale in Kielder, Hexham, Northumberland, NE48 — £60,000 • 2 bed • 1 bath
3 bedroom terraced house for sale in South Waterside, Kielder, NE48 — £150,000 • 3 bed • 1 bath • 1109 ft²
2 bedroom semi-detached house for sale in Castle Cottages, Kielder, Hexham, Northumberland, NE48 — £245,000 • 2 bed • 1 bath • 728 ft²
3 bedroom terraced house for sale in South Waterside, Kielder, Hexham, Northumberland, NE48 — £100,000 • 3 bed • 1 bath • 1212 ft²
3 bedroom detached house for sale in Stannersburn, Hexham, NE48 — £345,000 • 3 bed • 3 bath • 1127 ft²










































