**Standout Features:**
- Purpose-built first-floor flat with private entrance
- Modern kitchen and bathroom
- Private garden and patio area
- Allocated parking with electric vehicle charging point
- Gas central heating and solar panel for energy efficiency
- Excellent mobile signal and fast broadband speeds
**Concerns:**
- Leasehold property with associated service charge and ground rent
- Property size may be small for families
---
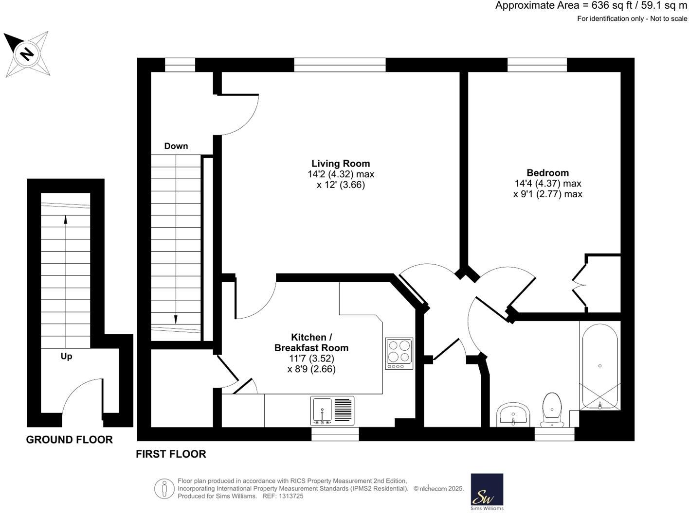
Step into this charming one-bedroom first-floor flat, an ideal opportunity for first-time buyers seeking comfort and modern living. Featuring a sleek, contemporary kitchen and bathroom, the property boasts its own private entrance as well as a peaceful rear garden, perfect for relaxing or entertaining outdoors. This flat stands out with its allocated parking space that includes an electric vehicle charging point, making it an excellent choice for eco-conscious owners.
Spanning 636 square feet, the well-designed space offers the potential for easy customization without compromising on everyday comfort. Low council tax and a below-average service charge enhance its appeal, making it a financially savvy option. Located in the vibrant area of Bognor Regis, the flat is surrounded by reputable primary and secondary schools, perfect for families or future investments. With very low crime rates and fast internet access, you can enjoy both security and convenience. Don’t miss out on this exclusive opportunity—schedule a viewing today and imagine your new beginning in this cozy abode.
 1 bedroom apartment for sale in Havelock Road, Bognor Regis, PO21 — £170,000 • 1 bed • 1 bath • 543 ft²
 1 bedroom apartment for sale in Havelock Road, Bognor Regis, PO21 — £170,000 • 1 bed • 1 bath • 543 ft² 2 bedroom ground floor flat for sale in Highfield Gardens, Bognor Regis, PO22 — £180,000 • 2 bed • 1 bath • 524 ft²
 2 bedroom ground floor flat for sale in Highfield Gardens, Bognor Regis, PO22 — £180,000 • 2 bed • 1 bath • 524 ft² 1 bedroom flat for sale in Burnham Avenue, Bognor Regis, PO21 — £150,000 • 1 bed • 1 bath • 402 ft²
 1 bedroom flat for sale in Burnham Avenue, Bognor Regis, PO21 — £150,000 • 1 bed • 1 bath • 402 ft² 1 bedroom apartment for sale in Kelmscott Way, Bognor Regis, PO21 — £170,000 • 1 bed • 1 bath • 528 ft²
 1 bedroom apartment for sale in Kelmscott Way, Bognor Regis, PO21 — £170,000 • 1 bed • 1 bath • 528 ft² 1 bedroom apartment for sale in Broom Field Way, Felpham, Bognor Regis, West Sussex, PO22 — £165,000 • 1 bed • 1 bath • 383 ft²
 1 bedroom apartment for sale in Broom Field Way, Felpham, Bognor Regis, West Sussex, PO22 — £165,000 • 1 bed • 1 bath • 383 ft² 1 bedroom ground floor flat for sale in Osprey Gardens, Bognor Regis, PO22 — £195,000 • 1 bed • 1 bath • 465 ft²
 1 bedroom ground floor flat for sale in Osprey Gardens, Bognor Regis, PO22 — £195,000 • 1 bed • 1 bath • 465 ft²


































































