Newly renovated one-bedroom with terrace, lift and long lease near local amenities.
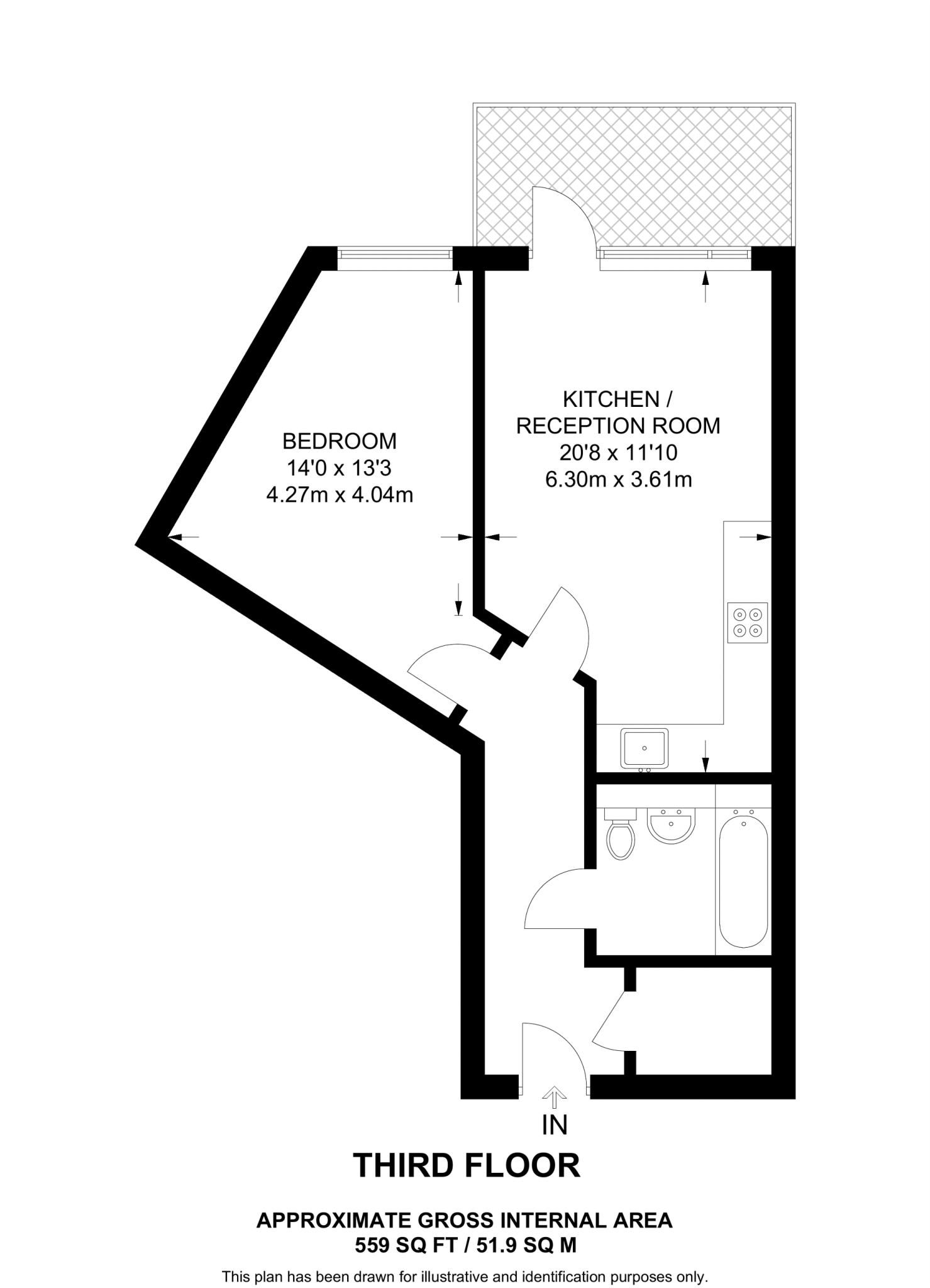
Third-floor apartment with lift access and private terrace overlooking communal gardens
Light-filled and newly renovated, this third-floor one-bedroom apartment offers contemporary living with a private terrace overlooking communal gardens. The open-plan reception and brand-new kitchen—complete with dishwasher—make the most of the 559 sq ft layout, suited to single buyers or couples seeking a low-maintenance home.
Practical benefits include lift access, secure development, excellent mobile signal and fast broadband, plus a very long 994-year lease with share of freehold ownership. Heating is via a community scheme and the building was completed in 2022, reducing near-term maintenance concerns.
Set moments from New Malden amenities, schools and transport links, the flat combines convenience with outdoor space. Note the annual service charge (approx. £1,700) which covers communal upkeep; consider this in your monthly budget. Overall this is a move-in-ready, modern option for a first-time buyer or investor seeking reliable rental appeal.
1 bedroom flat for sale in California Road, New Malden, KT3 — £300,000 • 1 bed • 1 bath • 423 ft²
1 bedroom flat for sale in Dukes Avenue, New Malden, KT3 — £330,000 • 1 bed • 1 bath • 542 ft²
1 bedroom flat for sale in Blagdon Road, New Malden, KT3 — £375,000 • 1 bed • 1 bath • 535 ft²
1 bedroom apartment for sale in Kingston Road, New Malden, Surrey, KT3 3PE, KT3 — £349,950 • 1 bed • 1 bath • 551 ft²
1 bedroom apartment for sale in High Street, New Malden, KT3 4, KT3 — £300,000 • 1 bed • 1 bath • 579 ft²
1 bedroom ground floor flat for sale in Kingston Road, NEW MALDEN, KT3 — £360,000 • 1 bed • 1 bath • 545 ft²


























































































