**Standout Features:**
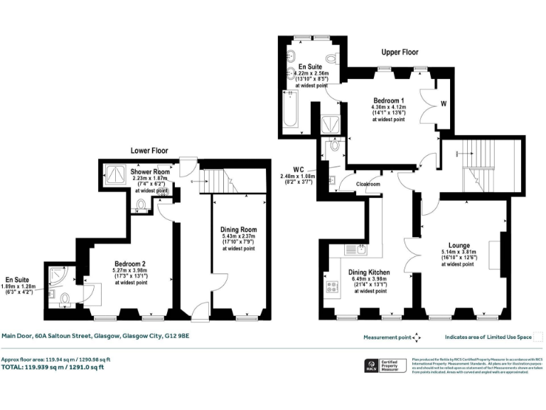
- Spacious duplex conversion with 3 bedrooms and 3 bathrooms
- Private south-easterly-facing entrance terrace and residents’ courtyard
- Elegant Victorian architecture in a sought-after Dowanhill location
- Close proximity to Byres Road, University of Glasgow, and excellent transport links
**Concise Summary:**
Discover a rare gem in the heart of Glasgow’s vibrant West End with this beautifully appointed main door duplex conversion. Spanning 1,291 sq ft, this spacious property features three well-sized bedrooms, including a luxurious principal suite with a four-piece en-suite, a second bedroom with en-suite, and a third double bedroom currently serving as a dining room or study.
Enjoy the unique luxury of a private entrance terrace, perfect for outdoor dining or relaxation, along with access to a tranquil residents' courtyard. The elegant lounge fills with natural light, thanks to oversized windows, while the dining-sized kitchen is equipped with modern appliances and stylish stone worktops. Despite the exquisite features, the integrity of the building must be maintained as it is in a conservatively managed area, and while the council tax is on the higher side (Band H), the investment potential in this cosmopolitan, family-friendly neighborhood is undeniable.
Perfect for families or investors seeking a vibrant community atmosphere and an array of local amenities, this exceptional property promises both comfort and convenience. Don’t miss out on this exclusive opportunity in one of Glasgow's best locales!
4 bedroom apartment for sale in Lilybank Terrace, Hillhead, Glasgow, G12 — £419,000 • 4 bed • 3 bath • 1414 ft²
3 bedroom duplex for sale in Main Door 1 Belgrave Terrace, Hillhead, G12 8JD, G12 — £675,000 • 3 bed • 3 bath • 2110 ft²
2 bedroom apartment for sale in Great George Street, Hillhead, Glasgow, G12 — £299,000 • 2 bed • 3 bath • 847 ft²
3 bedroom apartment for sale in Saltoun Street, Dowanhill, Glasgow, G12 — £575,000 • 3 bed • 2 bath • 1980 ft²
2 bedroom apartment for sale in Highburgh Road, Dowanhill, Glasgow, G12 — £249,000 • 2 bed • 1 bath • 978 ft²
3 bedroom ground floor maisonette for sale in Roxburgh Lane, Dowanhill, Glasgow, G12 — £369,995 • 3 bed • 2 bath • 1023 ft²


























































































































































