CF64 1BG - 3 bedroom semidetached house for sale in St Augustines Cres…

View on Property Piper

3 bedroom semi-detached house for sale in St Augustines Crescent, Penarth, CF64

Summary - 12 St. Augustines Crescent CF64 1BG

3 bed 1 bath Semi-Detached

**Standout Features:**
- Prime location in Albert Road Primary and Stanwell Comprehensive catchments
- Expansive corner plot with incredible views of Cardiff Bay and the City Centre
- Off-street parking with a detached garage
- Original mid-20th century features throughout
- Potential for extensions (subject to planning permission)
- Chain-free sale for quicker transactions

**Summary:**
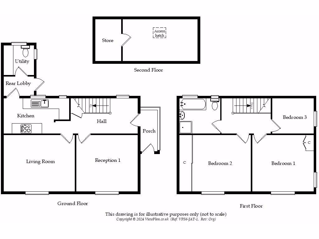
Discover a unique semi-detached home in the highly sought-after Penarth area, perfect for families and potential investors alike. This three-bedroom property, featuring an informal loft room, offers a spacious living environment with a large reception area, kitchen affording splendid water views, utility room, and a ground-floor WC. The generous corner plot is a remarkable highlight, boasting front, side, and rear gardens with ample room for future expansions. Enjoy the luxury of off-street parking and a detached garage, this home combines comfort with space.

Ideally located within excellent school catchments, this property promises a harmonious blend of suburban living and accessibility to local amenities. While the property has immense potential for personalization and expansion, it also maintains its original charm, sure to appeal to those who appreciate character and comfort. Don’t miss this incredible opportunity to own a home with scenic views and great investment potential in a desirable area—viewing is strictly by appointment only.

Property Details

Brochure Descriptions

Image Descriptions

Floorplan Description

Rooms

Textual Property Features

Detected Visual Features

EPC Details

Nearest Bars And Restaurants

,,,,}

Nearest General Shops

,,}

Nearest Grocery shops

,,}

Nearest Supermarkets

,,}

Nearest Religious buildings

,,}

Nearest Medical buildings

,,,}

Nearest Airports

}

Nearest Leisure Facilities

,,,,}

Nearest Tourist attractions

,,}

Nearest Train stations

,,,,}

Nearest Bus stations and stops

,,,,}

Nearest Hotels

,,}

Tags

Local Market Stats

AirBnB Data

Similar Properties

Meta

High Res Images

Compatible Images

Low res Images

Thumbnails

Raw Images

High Res Floorplan Images

Compatible Floorplan Images

Low res Floorplan Images

FloorplanImages Thumbnail

Raw Floorplan Images