S35 0JQ - 3 bed spacious detached home in Alford Avenue, S35 0JQ

View on Property Piper

3 bedroom detached house for sale in Alford Avenue, Oughtibridge, S35 0JQ, S35

Summary - 18 ALFORD AVENUE OUGHTIBRIDGE SHEFFIELD S35 0JQ

3 bed 2 bath Detached

Versatile family house with annexe, garden and extension potential near woodland.
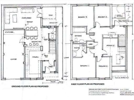
Self-contained ground-floor annexe with private kitchen and shower room
Previously used as serviced accommodation; approx. £15,000pa at 50% occupancy
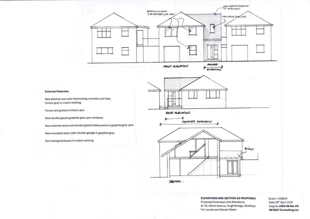
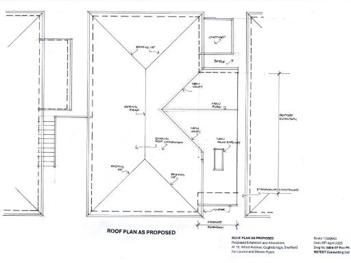
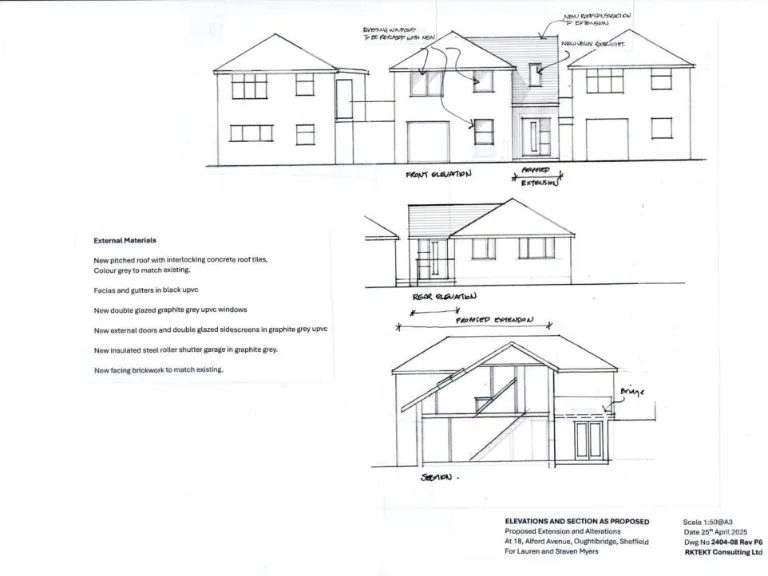
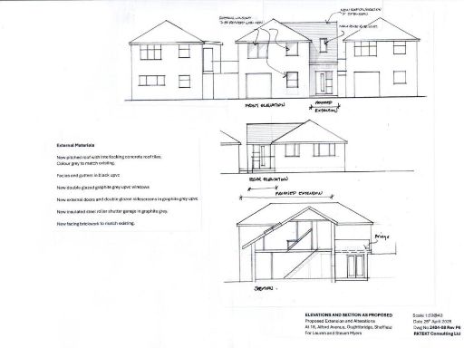
Planning permission granted for double-storey side extension (plans attached)
Large driveway plus integrated garage; internal garage access from annexe
Landscaped tiered rear garden with patios and views of Wharncliffe Woods
Main living accommodation on first floor accessed via side staircase
Over 1,400 sq ft of versatile family living; freehold tenure
Quiet cul-de-sac location; short walk to Oughtibridge Primary School
This spacious three/four bedroom detached home sits at the end of a quiet cul-de-sac in Oughtibridge, offering over 1,400 sq ft of flexible living. A self-contained ground-floor annexe with private kitchen and shower room provides ideal accommodation for multigenerational living, long-stay guests or rental income — it was previously operated as serviced accommodation and generated around £15,000 pa at 50% occupancy. The main living rooms are arranged on the first floor, creating a bright living/dining space and a practical modern kitchen.

Practical features include a large driveway, integrated garage with internal access from the annexe, and planning permission in place for a double-storey side extension (plans attached) — a clear opportunity to increase living space and value. The tiered, landscaped rear garden is low-maintenance with patios and raised planters, and enjoys far-reaching views over Wharncliffe Woods, creating a pleasant outdoor entertaining space.

The property is well placed for families: Oughtibridge Primary School is a short walk away and village amenities and bus links to Sheffield city centre are within easy reach. The house is freehold, in a very affluent area with low crime and fast broadband — practical for homeworking and comfortable family life.

Note the layout places primary accommodation on the first floor accessed by an external/side staircase, which may be less suitable for limited mobility. Buyers should also review the attached extension plans and any refurbishment scope if they prefer an alternative layout. Viewing is recommended to appreciate the annexe flexibility, garden and extension potential.

Property Details

Image Descriptions

Floorplan Description

Rooms

Textual Property Features

Target Audience

AI Tags

Detected Visual Features

Nearby Schools

Nearest Bars And Restaurants

,,,,}

Nearest General Shops

,,}

Nearest Grocery shops

,,}

Nearest Supermarkets

,,}

Nearest Religious buildings

,,}

Nearest Medical buildings

,,,}

Nearest Leisure Facilities

,,,,}

Nearest Tourist attractions

,,}

Nearest Train stations

,,,,}

Nearest Bus stations and stops

,,,,}

Nearest Hotels

,,}

Tags

Local Market Stats

AirBnB Data

Similar Properties

Meta

High Res Images

Compatible Images

Low res Images

Thumbnails

Raw Images

High Res Floorplan Images

Compatible Floorplan Images

Low res Floorplan Images

FloorplanImages Thumbnail

Raw Floorplan Images