Quiet cul-de-sac home with long driveway and enclosed garden — ideal for first-time buyers or investors.
Chain-free three-bedroom end terrace in cul-de-sac
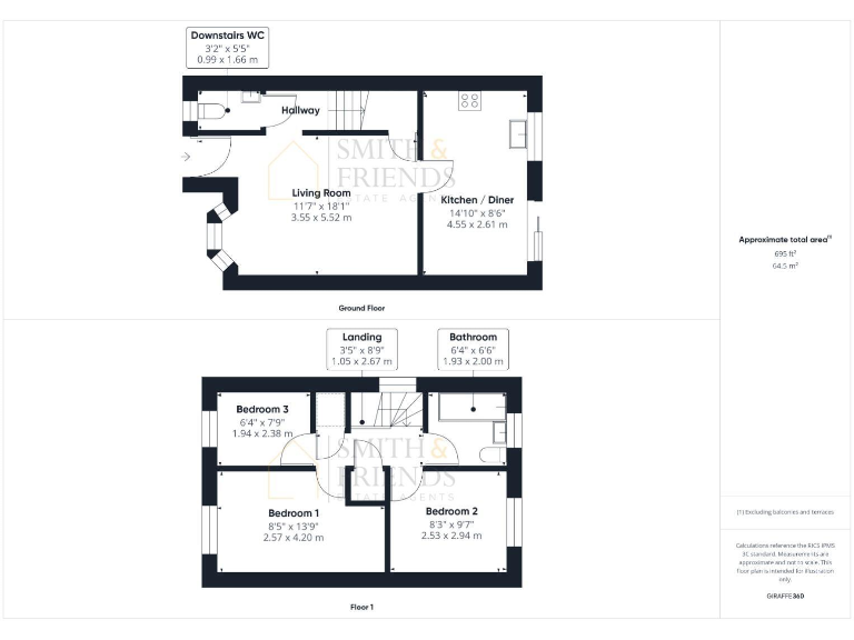
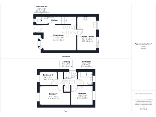
A chain-free, three-bedroom end terrace on Leazon Hill offering a straightforward purchase for first-time buyers or buy-to-let investors. The property sits at the end of a quiet cul-de-sac in the popular Lowfields area of Ingleby Barwick and benefits from a long driveway with ample off-street parking and an enclosed rear garden.
Internally the layout is traditional and efficient: a generous living room, open-plan kitchen/diner with patio doors, ground-floor WC and three bedrooms served by a family bathroom. Constructed in the late 1990s/early 2000s, the home has double glazing, gas central heating and a security alarm, and its compact footprint (about 695 sq ft) suits a small family or landlord letting to professionals and students.
The house is presented as a neutral, mostly blank canvas with some unfinished flooring visible in rooms; cosmetic updating will personalise the space and could add value. Room sizes are modest—particularly bedroom three—and the small plot limits outdoor expansion, but the low-maintenance garden and long drive are practical assets.
Local strengths include low crime, fast broadband and excellent mobile signal, plus several well-rated primary and secondary schools nearby. No flood risk is recorded. Overall this is a convenient, affordable freehold property in a comfortable suburban area, best for buyers seeking a quick move-in or an investor targeting steady rental demand.
3 bedroom semi-detached house for sale in Thatch Lane, Ingleby Barwick, Stockton-On-Tees, TS17 — £170,000 • 3 bed • 1 bath • 823 ft²
3 bedroom semi-detached house for sale in Avens Way, Ingleby Barwick, Stockton-On-Tees, TS17 — £185,000 • 3 bed • 2 bath • 675 ft²
3 bedroom end of terrace house for sale in Thornwood Avenue, Ingleby Barwick, TS17 — £164,995 • 3 bed • 1 bath • 807 ft²
3 bedroom house for sale in Holystone Drive, Ingleby Barwick, TS17 — £180,000 • 3 bed • 1 bath • 678 ft²
3 bedroom semi-detached house for sale in Thatch Lane, Ingleby Barwick, Stockton-on-Tees, Durham, TS17 0TN, TS17 — £150,000 • 3 bed • 1 bath • 838 ft²
3 bedroom end of terrace house for sale in Watling Road, Ingleby Barwick, Stockton-On-Tees, TS17 5FJ, TS17 — £165,000 • 3 bed • 1 bath • 743 ft²










































