Bright period conversion with rare long garden and loft potential for families.
Share of Freehold; loft demise included in deeds
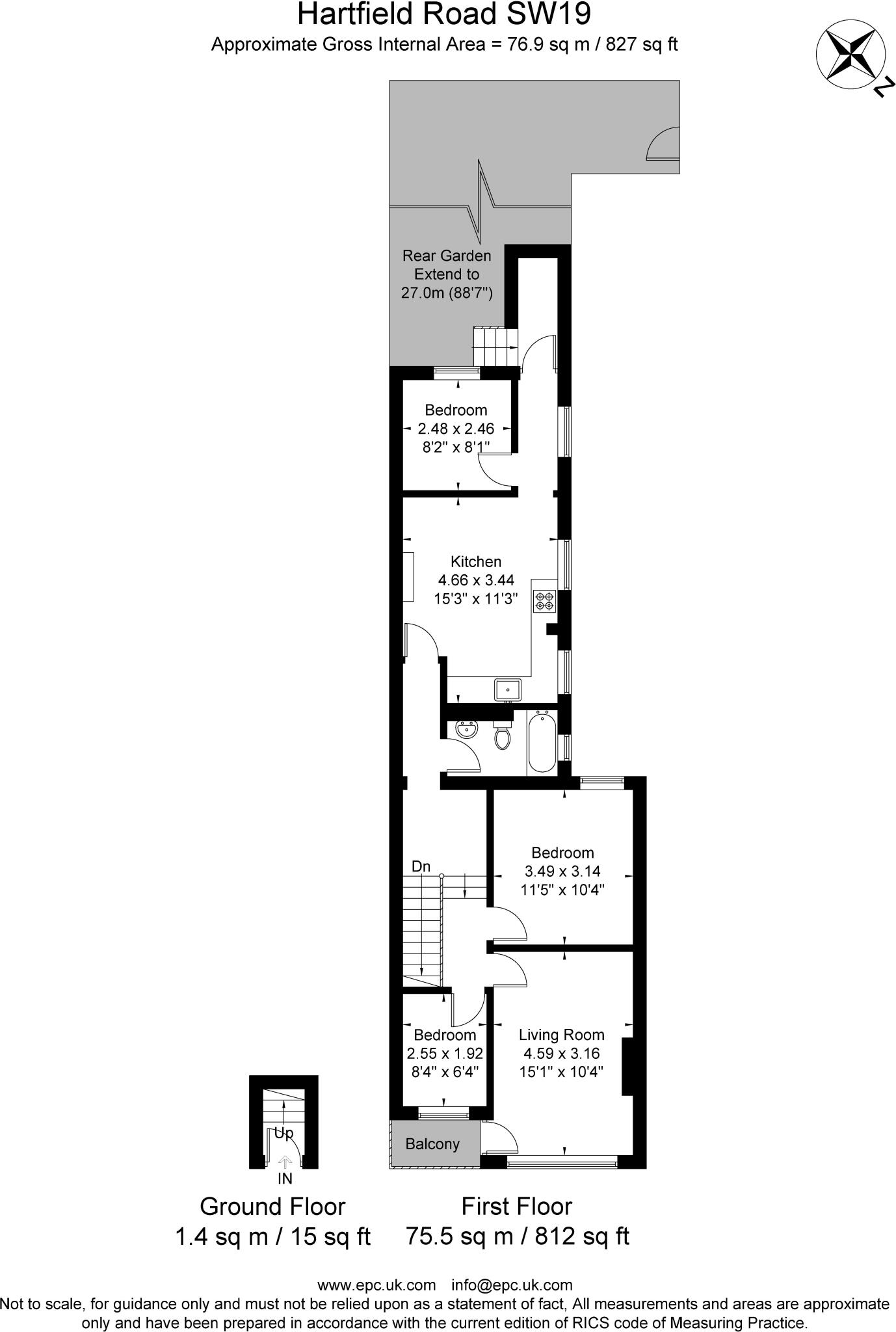
Private west-facing rear garden approx. 88 ft (deep)
Three bedrooms, one family bathroom (may be limiting)
827 sq ft; average-sized rooms and linear layout
Close to Dundonald Park Primary and Wimbledon station (0.3 miles)
Built c.1900-1929; solid brick walls likely uninsulated
Double glazing present; installation date unknown
Scope to extend into loft subject to planning (STTP)
This first-floor Edwardian maisonette offers comfortable, period-charm living with a rare private west-facing garden of approximately 88 ft. The 827 sq ft layout provides three bedrooms, a reception room with high ceilings and built-in shelving, and a kitchen/breakfast room that opens toward the garden — a practical family arrangement in a central Wimbledon location.
A clear value driver is the Share of Freehold which includes the loft demise and therefore presents scope to extend into the loft subject to planning (STTP). Transport links are strong: Wimbledon mainline and District line are about 0.3 miles away, and several well-regarded primary and secondary schools fall within easy reach, making this attractive to families and downsizers who want local amenities and school options.
The property is presented in good order but buyers should note some material points: there is a single family bathroom for three bedrooms, solid brick walls (likely without insulation), and double glazing with unknown install date — all suggesting potential for energy-efficiency upgrades. Services and appliances have not been tested; any buyer should commission standard surveys and condition checks, including electrics, boiler and roof, before purchase.
In short, this is a characterful, mid-sized maisonette in a very desirable Wimbledon pocket with excellent outdoor space and clear extension potential. It suits buyers who want immediate comfortable living with scope to add value through loft conversion and energy improvements.
3 bedroom terraced house for sale in Effra Road, Wimbledon, SW19 — £1,100,000 • 3 bed • 2 bath • 1316 ft²
4 bedroom maisonette for sale in Merton Hall Road, Wimbledon, London, SW19 — £925,000 • 4 bed • 2 bath • 1503 ft²
3 bedroom apartment for sale in Pelham Road, London, SW19 — £600,000 • 3 bed • 1 bath • 928 ft²
2 bedroom apartment for sale in Pixham Court, Lake Road, Wimbledon, SW19 — £595,000 • 2 bed • 1 bath • 610 ft²
1 bedroom apartment for sale in Cochrane Road, Wimbledon, SW19 — £485,000 • 1 bed • 1 bath • 547 ft²
3 bedroom terraced house for sale in Toynbee Road, Wimbledon, SW20 — £875,000 • 3 bed • 1 bath • 994 ft²


























































