**Standout Features:**
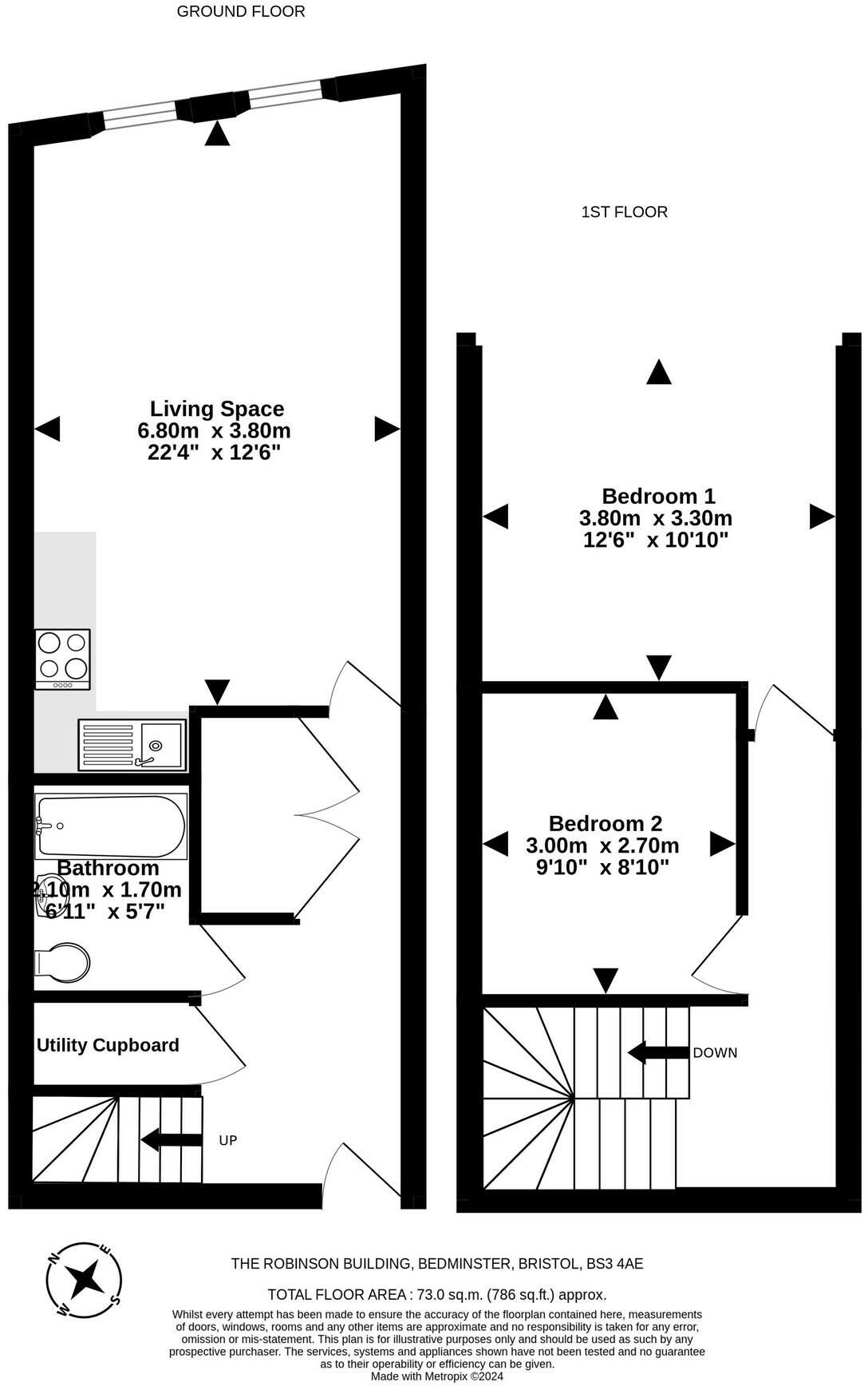
- Charming duplex apartment with exposed brick walls and tall windows
- Spacious open-plan living area, perfect for entertaining
- 2 well-proportioned bedrooms and a modern bathroom
- Chain-free sale for quick move-in
- Favorable location near vibrant local amenities and public transport
This delightful 2-floor apartment situated in the heart of Bedminster offers a unique blend of modern comfort and historical charm. The open-plan living space, accentuated by striking exposed brick walls and large windows, creates an inviting atmosphere filled with natural light. With two spacious bedrooms and a tastefully designed bathroom, this flat is ideal for first-time buyers, young professionals, or families looking to immerse themselves in city life.
Located in the multicultural BS3 postcode, you'll enjoy easy access to an array of local shops, bars, and restaurants, as well as convenient transport links to Bristol City Centre and Temple Meads Train Station. Priced attractively at £250,000 and boasting no chain, this apartment presents an excellent opportunity to make a stylish city home. Embrace the vibrant community around you and discover the potential for cozy living in this urban enclave.
While the surroundings may expose you to higher crime rates, the fast broadband speeds and a plethora of amenities, including nearby schools of good standing, make this property a compelling choice. Don't miss your chance to secure a piece of this dynamic neighborhood!
2 bedroom flat for sale in Robinson Building, Norfolk Place, Bristol, BS3 — £220,000 • 2 bed • 1 bath • 560 ft²
1 bedroom flat for sale in The Robinson Building, Norfolk Place, Bristol, BS3 — £180,000 • 1 bed • 1 bath • 431 ft²
2 bedroom apartment for sale in Norfolk Place, Bristol, Somerset, BS3 — £270,000 • 2 bed • 1 bath • 721 ft²
2 bedroom ground floor flat for sale in The Robinson Building, Norfolk Place, Bedminster, Bristol, BS3 — £315,000 • 2 bed • 1 bath • 555 ft²
2 bedroom flat for sale in Robinson Building, Norfolk Place, Bedminster, Bristol, BS3 — £225,000 • 2 bed • 1 bath • 549 ft²
2 bedroom flat for sale in Robinson Building, Bedminster, BS3 — £275,000 • 2 bed • 2 bath • 785 ft²


























































