Short walk to town, station and excellent local schools.
Edwardian detached with bay-front lounge
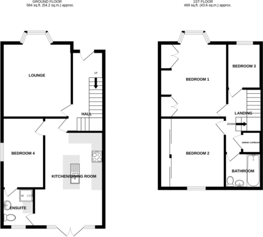
A bright Edwardian semi-suburban house arranged over two floors, ideal for growing families who value proximity to schools and transport. The ground floor offers flexible living with a bay-front lounge, kitchen/dining room with island and French doors, plus a ground-floor bedroom or study with a Jack-and-Jill shower room.
Upstairs are three further bedrooms and a family bathroom. Outside, a south-facing garden, private driveway and detached garage add practical family appeal and outdoor space for children and pets. The property is a short walk from Colchester Town Centre and Colchester Town Station.
Practical points to note: the overall internal size is modest at about 1,053 sq ft, and the cavity walls are assumed uninsulated — improvements to insulation and glazing may be beneficial. Double-glazing install date is unknown. The house is freehold and was constructed around 1930–1949, so some updating may be required to modern energy standards.
4 bedroom detached house for sale in King Harold Road, West Colchester, CO3 — £485,000 • 4 bed • 2 bath • 1408 ft²
6 bedroom semi-detached house for sale in Honywood Road, Colchester, Essex, CO3 — £825,000 • 6 bed • 2 bath • 2650 ft²
4 bedroom semi-detached house for sale in Maldon Road, Colchester, Essex, CO3 — £750,000 • 4 bed • 2 bath • 1820 ft²
4 bedroom detached house for sale in Maldon Road, Colchester, Essex, CO3 0SJ, CO3 — £450,000 • 4 bed • 2 bath
5 bedroom detached house for sale in Oxford Road, Lexden, Colchester, Essex, CO3 — £1,250,000 • 5 bed • 4 bath • 2980 ft²
4 bedroom link detached house for sale in St Augustine Mews, Colchester , Colchester, CO1 — £400,000 • 4 bed • 2 bath • 833 ft²


























































































