Versatile four-bedroom bungalow with annex, garage and driveway in desirable Willaston village.
Detached bungalow on private road in desirable Willaston village
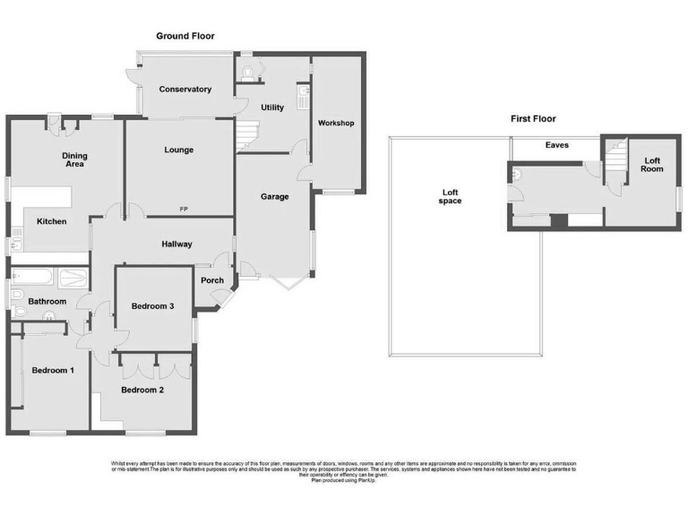
Set back on a private road in desirable Willaston village, this detached bungalow offers flexible single-storey living with an independent annex and useful outbuildings. The principal accommodation includes a bright open-plan kitchen/dining area, a living room opening to a conservatory, three main bedrooms and a Jack-and-Jill four-piece bathroom. An annex provides a fourth bedroom, small lounge, kitchen and separate WC — ideal for multi-generational use or letting.
Outside there is a generous paved driveway, a single garage with integral workshop and a low‑maintenance rear garden providing private outdoor space. Practical features include mains gas central heating, double glazing (install date unknown) and fast broadband; the home is in a very low crime, low flood-risk area with strong local amenities and highly regarded schools nearby.
Buyers should note the property dates from the 1950–66 period and the overall advertised size is relatively small (approx. 1,077 sq ft), so modernisation or selective refurbishment may be needed to meet contemporary standards. Council tax band is above average. The loft area has independent access and offers clear potential for conversion to additional living space or a self-contained suite, subject to consents.
3 bedroom detached bungalow for sale in Laurel Drive, Willaston, CH64 — £375,000 • 3 bed • 1 bath • 1012 ft²
3 bedroom detached bungalow for sale in Hadlow Lane, Willaston, Neston, CH64 — £370,000 • 3 bed • 2 bath • 1225 ft²
2 bedroom detached bungalow for sale in Hawthorne Drive, Willaston, CH64 — £375,000 • 2 bed • 1 bath • 1140 ft²
3 bedroom bungalow for sale in Laurel Drive, Willaston, Neston, CH64 — £325,000 • 3 bed • 1 bath • 816 ft²
4 bedroom semi-detached bungalow for sale in Wallcroft, Willaston, Cheshire, CH64 — £350,000 • 4 bed • 1 bath • 1238 ft²
4 bedroom detached house for sale in Hooton Road, Willaston, Neston, CH64 — £610,000 • 4 bed • 2 bath • 1906 ft²






























































































































