SY20 8DT - Detached house for sale in Heol Maengwyn, Machynlleth, Powy…

View on Property Piper

Detached house for sale in Heol Maengwyn, Machynlleth, Powys, SY20

Summary - CHAPEL, MAENGWYN STREET SY20 8DT

1 bed 1 bath Detached

**Standout Features:**
- Grade II Listed former chapel with stunning Gothic Revival architectural details
- Well-maintained stone construction with original pitch pine pews and pulpit
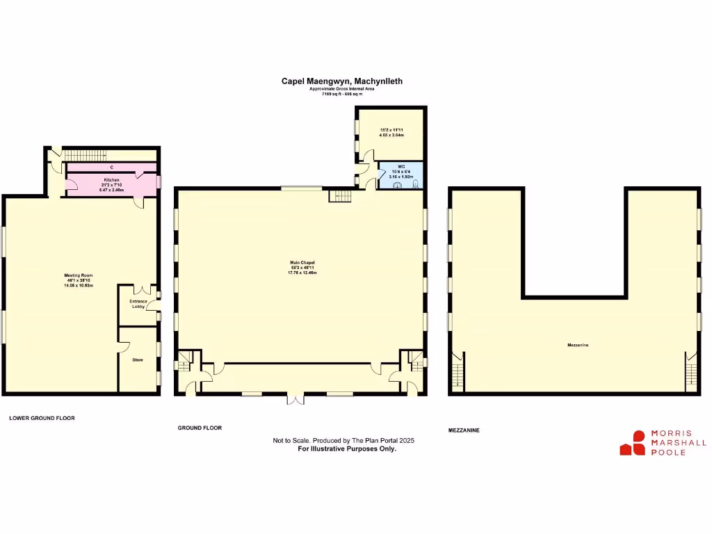
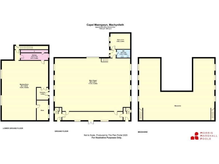
- Expansive 7,169 sq. ft. floor plan with high ceilings and a horseshoe gallery
- Large rear car park providing ample off-street parking
- Central location in Machynlleth, close to amenities and public transport
- Significant development potential, subject to planning consent

Nestled at the heart of Machynlleth, Capel Maengwyn is a remarkable Grade II listed former chapel that offers immense charm and potential. This captivating property boasts an impressive stone facade, traditional wooden and metal-framed windows, and a stunning interior complete with intricate architectural features such as high vaulted ceilings and preserved stained glass. The expansive main chapel area is complemented by a horseshoe gallery, a vestry with fireplace, and a sizable kitchen, all enhancing its versatility for residential conversion or commercial endeavors.

With a large plot size and a spacious car park at the rear, the property not only provides practical amenities but also invites creative transformation opportunities to adapt it for modern living. Its central location means you’re just steps away from local amenities and a warm community atmosphere. Perfect for investors, creative homeowners, or those looking to establish a unique business, the potential here is extraordinary. Don’t miss out on the chance to own a piece of local history; early viewing is strongly encouraged!

Property Details

Brochure Descriptions

Image Descriptions

Floorplan Description

Rooms

Textual Property Features

Detected Visual Features

Nearest Bars And Restaurants

,,,,}

Nearest General Shops

,,}

Nearest Grocery shops

,,}

Nearest Supermarkets

,,}

Nearest Religious buildings

,,}

Nearest Medical buildings

,,,}

Nearest Leisure Facilities

,,,,}

Nearest Tourist attractions

,,}

Nearest Train stations

,,,,}

Nearest Bus stations and stops

,,,,}

Nearest Hotels

,,}

Tags

Local Market Stats

AirBnB Data

Similar Properties

Meta

High Res Images

Compatible Images

Low res Images

Thumbnails

Raw Images

High Res Floorplan Images

Compatible Floorplan Images

Low res Floorplan Images

FloorplanImages Thumbnail

Raw Floorplan Images