SG12 9HG - 2 bed duplex two bedroom maisonette in Crib Street, SG12 9HG

View on Property Piper

2 bedroom apartment for sale in Crib Street, Ware, SG12

Summary - 162 CRIB STREET WARE SG12 9HG

2 bed 2 bath Apartment

Long lease, station close — commuter-friendly two-bed maisonette with parking..
Two double bedrooms plus en suite to master
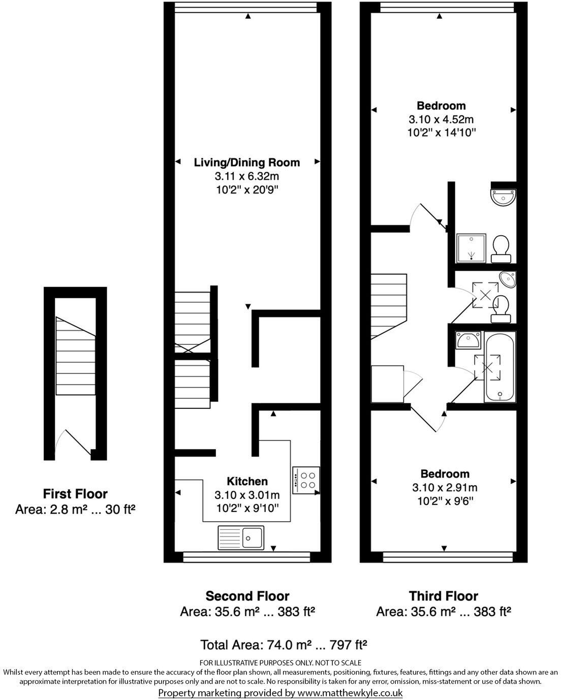
A well-presented two-bedroom duplex maisonette arranged over two floors, located within easy walking distance of Ware town centre and the mainline station to London Liverpool Street. The long lease (in excess of 900 years) and off-street allocated parking with additional resident permits make this a practical buy for a commuter or first-time buyer seeking convenience.

Internally the apartment offers a modern living room, fitted kitchen, utility room, an en suite to the master and a family bathroom. Underfloor heating is fitted, and double glazing was installed after 2002, improving comfort and reducing running costs compared with older units in the block. The property benefits from well-kept communal gardens and pleasant, communal outlooks rather than private views.

Buyers should note some material considerations: the building dates from the late 1960s–1970s and is of system-built construction with assumed no cavity insulation in the walls. Main heating is electric storage heaters, service charges average £2,400 per year and the communal areas show potential maintenance needs. Crime levels in the immediate locality are reported as high, which may be a concern for some purchasers.

Overall this apartment offers strong commuter convenience, long lease security and sensible living space for a couple or first-time buyers willing to accept electric heating and communal maintenance commitments. It is best suited to someone prioritising location and lease length over period character or low running costs.

Property Details

Brochure Descriptions

Image Descriptions

Floorplan Description

Rooms

Textual Property Features

Target Audience

AI Tags

Detected Visual Features

EPC Details

Nearby Schools

Nearest Bars And Restaurants

,,,,}

Nearest General Shops

,,}

Nearest Grocery shops

,,}

Nearest Supermarkets

,,}

Nearest Religious buildings

,,}

Nearest Medical buildings

,,,}

Nearest Airports

,,}

Nearest Leisure Facilities

,,,,}

Nearest Tourist attractions

,,}

Nearest Train stations

,,,,}

Nearest Bus stations and stops

,,,,}

Nearest Hotels

,,}

Tags

Local Market Stats

AirBnB Data

Similar Properties

Meta

High Res Images

Compatible Images

Low res Images

Thumbnails

Raw Images

High Res Floorplan Images

Compatible Floorplan Images

Low res Floorplan Images

FloorplanImages Thumbnail

Raw Floorplan Images