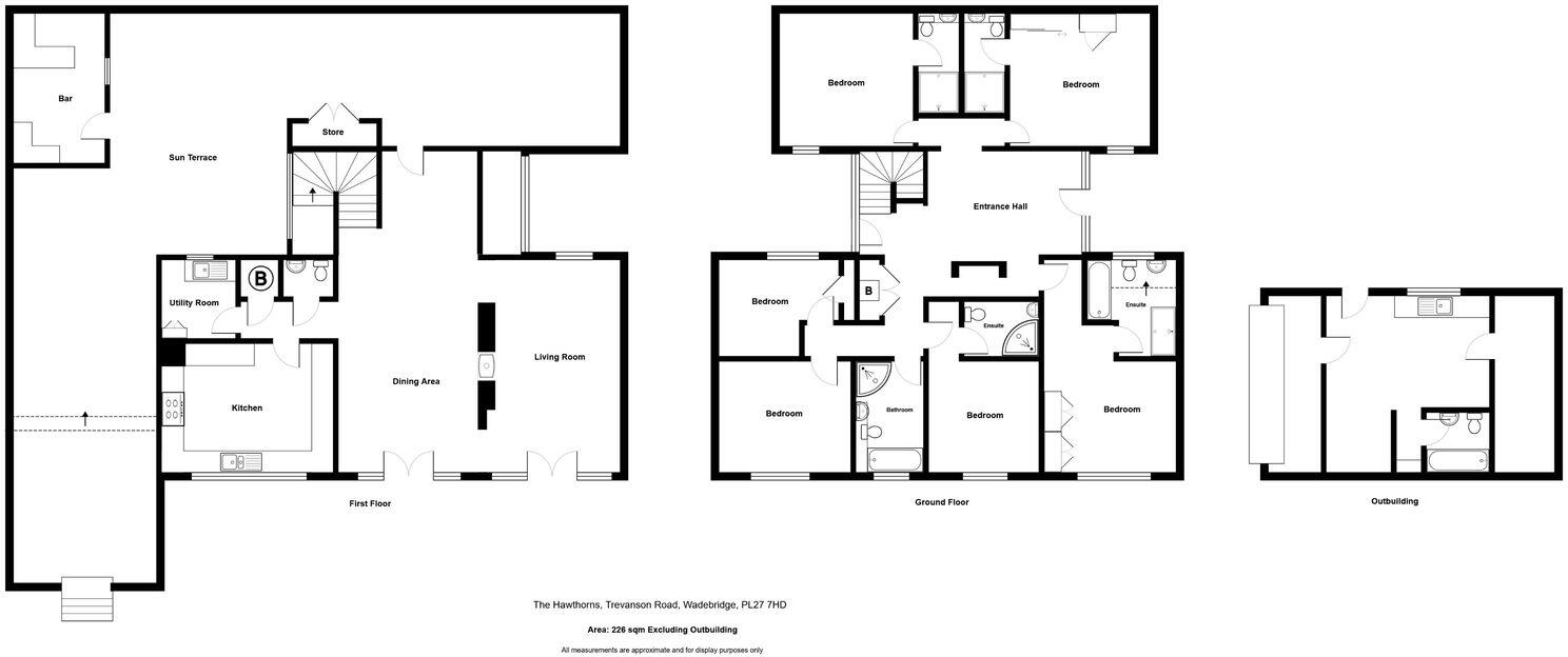
Six bedrooms, five bathrooms with four en suites
Designed by an architect and completed in 2006, this spacious six-bedroom detached home uses reversed accommodation to maximise the countryside views from its upper living level. The semi-open-plan first floor features a vaulted dining/reception area, dual-aspect lounge, contemporary fitted kitchen with quartz worktops and generous glazing framing the outlook. Landscaped and multi-tiered gardens include decking, a hot-tub area and raised turfed terraces ideal for entertaining and enjoying sun and shade throughout the day.
Practical family features include five bathrooms (four en suites), a utility room, underfloor heating via a boiler, fibre broadband and solar photovoltaic panels to reduce running costs. The detached double garage has been partly converted into a studio/storage area with bathroom and could be reinstated as full garage space if required. Reversed layout, flexible room sizes and built-in storage give options for home working, multigenerational living or guest accommodation.
Buyers should note a few material facts: the EPC is rated D and the property sits in Council Tax Band F (expensive). The ground floor has individually controlled electric heaters alongside the Mitsubishi heating/cooling unit, reflecting a mixed heating system. The garage conversion is already in place for studio use but would need work to revert to full garage capacity if that is desired.
Set an easy walk from Wadebridge town centre and local schools, with the Camel Trail and North Cornwall coastline within easy reach, this property suits families or buyers seeking generous adaptable accommodation, strong views and entertaining gardens in an affluent small-town setting.
4 bedroom detached house for sale in Edmonton, Wadebridge PL27 — £875,000 • 4 bed • 2 bath • 2144 ft²
4 bedroom town house for sale in West Hill, Wadebridge, PL27 7ET, PL27 — £825,000 • 4 bed • 3 bath • 2062 ft²
5 bedroom detached house for sale in St. Breock, Wadebridge, Cornwall, PL27 — £900,000 • 5 bed • 4 bath • 3444 ft²
4 bedroom detached house for sale in Talmena Avenue, Wadebridge, Cornwall, PL27 — £500,000 • 4 bed • 2 bath • 1749 ft²
5 bedroom detached house for sale in Rowan Road, Wadebridge, PL27 — £499,000 • 5 bed • 3 bath • 1457 ft²
3 bedroom detached house for sale in TheWest Hill, Wadebridge, Cornwall, PL27 — £700,000 • 3 bed • 1 bath • 1465 ft²






































































































