Spacious, low‑maintenance first‑floor apartment for the over‑60s near shops and station.
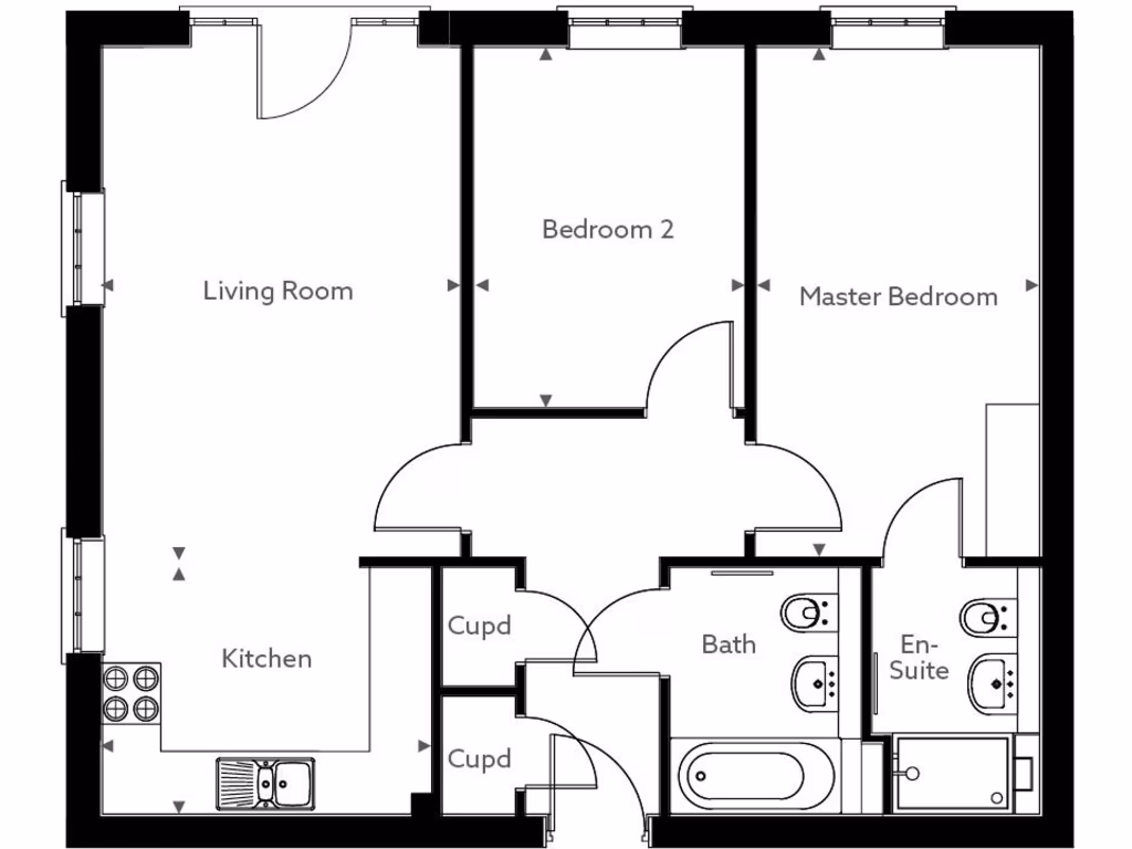
Two double bedrooms including ensuite to principal bedroom
Designed exclusively for the over-60s, this brand-new two-bedroom apartment in the heart of Great Missenden offers low-maintenance, contemporary living steps from shops, cafés and the station. Spacious living/dining space, integrated kitchen appliances and a principal bedroom with ensuite give an apartment-feel with sensible, accessible design.
Residents benefit from on-site staff, a communal residents’ lounge with regular activities, lift access and an alarm/intercom system for added reassurance. The development is pet friendly, has an EPC B rating and sits in a very affluent small‑town setting with fast broadband and excellent mobile signal.
Practical points to note: the property is leasehold (119 years remaining) and heated via a community scheme, so communal management, service charges and the heating arrangement affect running costs. There is no private garden; outdoor space is communal and maintained as part of the development. Prospective buyers should confirm service charge and any ground rent or incentives available.
Overall this apartment will suit downsizers and retirees seeking a modern, secure base close to local amenities and rail links to London, where social facilities and onsite support reduce day-to-day upkeep while offering a sociable community environment.
2 bedroom apartment for sale in High Street, Great Missenden, Buckinghamshire, HP16 — £485,000 • 2 bed • 1 bath • 510 ft²
2 bedroom retirement property for sale in High Street,
Great Missenden,
HP16 0BB, HP16 — £499,950 • 2 bed • 1 bath • 754 ft²
2 bedroom retirement property for sale in High Street,
Great Missenden,
HP16 0BB, HP16 — £485,000 • 2 bed • 1 bath • 571 ft²
2 bedroom retirement property for sale in High Street,
Great Missenden,
HP16 0BB, HP16 — £485,000 • 2 bed • 1 bath • 754 ft²
2 bedroom apartment for sale in High Street, Great Missenden, Buckinghamshire, HP16 — £500,000 • 2 bed • 2 bath • 754 ft²
1 bedroom retirement property for sale in High Street,
Great Missenden,
HP16 0BB, HP16 — £370,000 • 1 bed • 1 bath






































