CA5 7DD - 4 bedroom barn conversion for sale in The Barn, Raughton He…

View on Property Piper

4 bedroom barn conversion for sale in The Barn, Raughton Head Hill Cottage, Raughton Head, Carlisle, Cumbria, CA5

Summary - Raughton Head Hill Cottage, Raughton Head CA5 7DD

4 bed 3 bath Barn Conversion

**Standout Features:**
- Detached barn conversion with scenic countryside views
- Flexible and spacious accommodation with 4 bedrooms and 3 bathrooms
- Detached double garage converted into additional bedroom with shower room
- Located in a quiet and private rural setting on approximately 0.5 acres
- Walking distance to amenities in Dalston and nearby villages
- High-quality construction by renowned local builders

**Overview:**
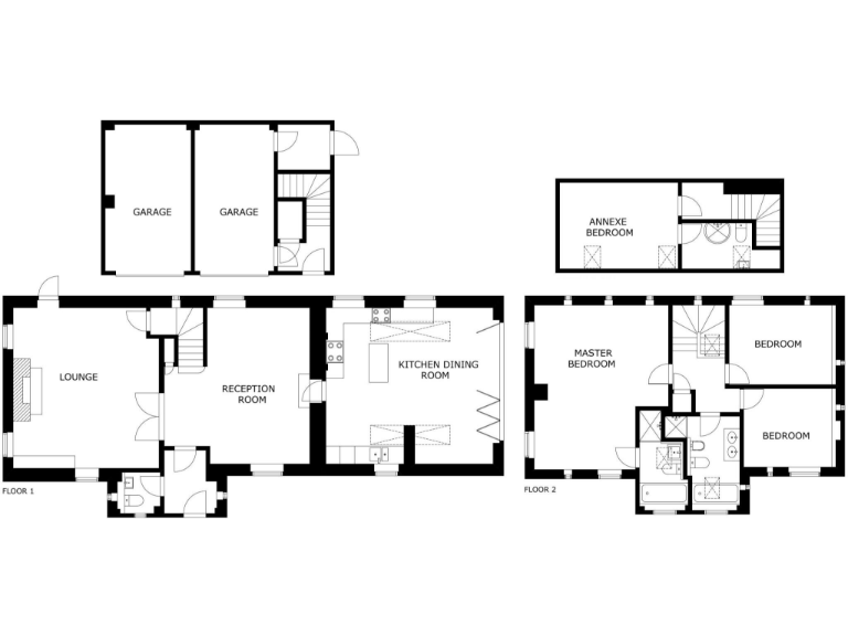
Discover a stunning detached barn conversion nestled at the end of a private lane, offering breathtaking views over the Caldew Valley. This inviting property boasts spacious and flexible family accommodation, including a welcoming entrance hall, an expansive main reception room with sandstone staircase, and a vaulted kitchen dining area featuring underfloor heating and a traditional oil-fired Stanley range cooker. The ground floor is complemented by a well-placed extension, while the impressive double garage, converted into an additional bedroom with ensuite shower, enhances its versatility.

Upstairs, three generously sized double bedrooms await, including a luxurious master suite with ensuite facilities, alongside a tastefully designed family bathroom. Set on a large plot surrounded by nature, this home is perfect for families seeking comfort in a peaceful rural setting with easy access to the charming villages of Raughton Head and Dalston, known for its strong community spirit and local amenities.

While the property is well-presented and in good order, prospective buyers should note the need for a private septic tank for drainage, and that any necessary alterations to current regulations will be the purchaser’s responsibility. Embrace country living in this exceptional home, as properties in such exclusive locations are sure to attract immediate interest. Viewing is highly recommended to fully appreciate the allure and potential of this unique offering.

Property Details

Image Descriptions

Floorplan Description

Rooms

Textual Property Features

Detected Visual Features

EPC Details

Nearby Schools

Nearest Bars And Restaurants

,,,,}

Nearest General Shops

,,}

Nearest Grocery shops

,,}

Nearest Supermarkets

,,}

Nearest Religious buildings

,,}

Nearest Medical buildings

,,,}

Nearest Leisure Facilities

,,,,}

Nearest Tourist attractions

,,}

Nearest Train stations

,,,,}

Nearest Bus stations and stops

,,,,}

Nearest Hotels

,,}

Tags

Local Market Stats

Similar Properties

Meta

High Res Images

Compatible Images

Low res Images

Thumbnails

Raw Images

High Res Floorplan Images

Compatible Floorplan Images

Low res Floorplan Images

FloorplanImages Thumbnail

Raw Floorplan Images