**Standout Features:**
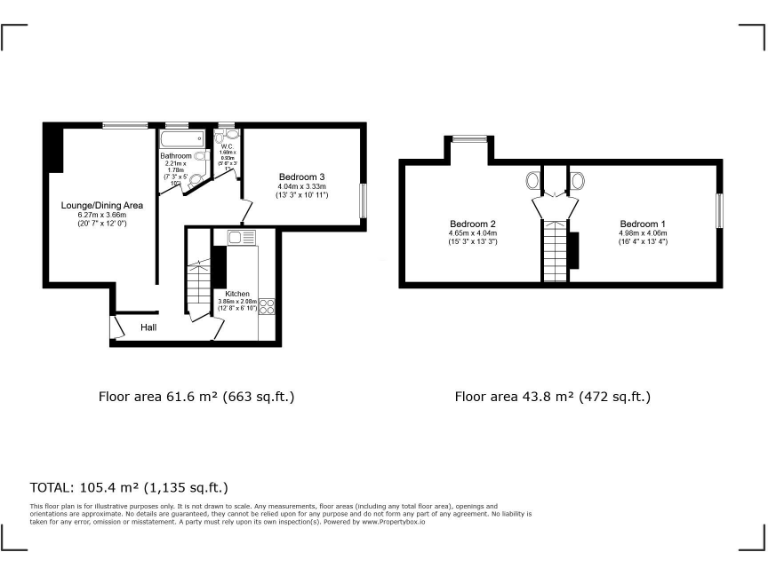
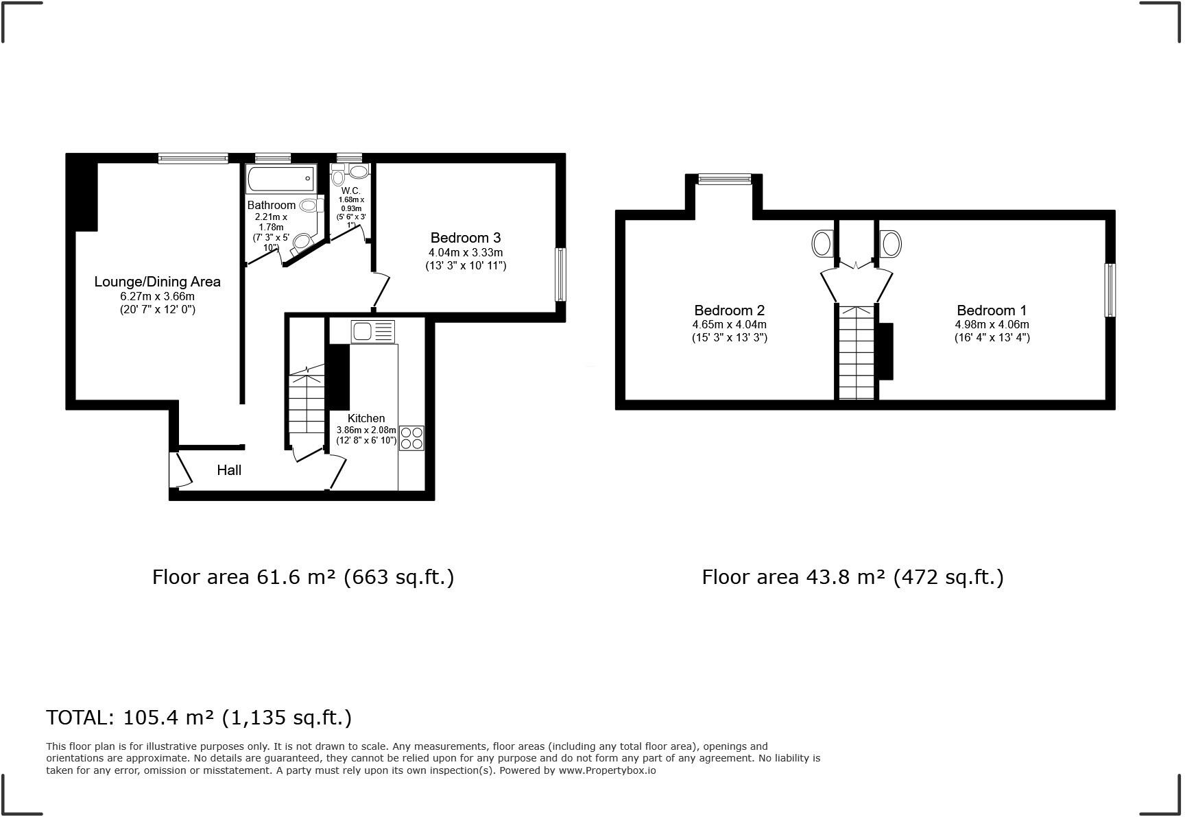
- Charming Victorian duplex apartment with three double bedrooms
- Spacious living/dining area with traditional wooden flooring and bright ambiance
- Close proximity to the picturesque beaches of Totland Bay and Colwell Bay
- Garden access featuring a seating area and shed
- Chain free, offering immediate occupancy or rental opportunity
- Potential for renovation or personalization
**Concerns:**
- Built in the early 1900s; some structural issues may require attention
- Solid brick walls without insulation could influence energy efficiency
- Room heating relies on electric room heaters
Embrace the opportunity to own this delightful and versatile duplex apartment in the heart of a tranquil community, perfect for families or investors alike. This well-maintained property features three spacious double bedrooms and a generously sized living room, creating an ideal environment for both relaxation and entertaining. Enjoy morning coffee in your private garden or take leisurely strolls to nearby Totland Bay and Colwell Bay, where inviting beachside dining awaits.
With a share of freehold tenure and being chain-free, this property is ready for a new owner to make it their own. While originally constructed in the early 1900s, there is considerable charm present with period features like a bricked fireplace and eaves. However, potential buyers should factor in the age of the building, which might necessitate some renovation work and insulation improvements for energy efficiency. Positioned within walking distance to local amenities, including shops, cafes, and excellent schools, this property presents a unique opportunity for comfortable coastal living. Don't miss out on your chance to own this charming abode — properties like this don't stay on the market for long!
2 bedroom apartment for sale in Totland Bay, isle of Wight, PO39 — £199,950 • 2 bed • 1 bath • 840 ft²
2 bedroom flat for sale in Totland, Isle of Wight, PO39 — £190,000 • 2 bed • 1 bath • 463 ft²
2 bedroom apartment for sale in Madeira Road, Totland Bay, Isle of Wight, PO39 — £135,000 • 2 bed • 1 bath • 614 ft²
2 bedroom apartment for sale in Hurst Point View, Totland Bay, Isle of Wight, PO39 — £195,000 • 2 bed • 1 bath • 573 ft²
1 bedroom maisonette for sale in Madeira Road, Totland Bay, Isle of Wight, PO39 — £130,000 • 1 bed • 1 bath • 477 ft²
3 bedroom apartment for sale in Keyhaven Court, Totland Bay, Isle of Wight, PO39 — £260,000 • 3 bed • 1 bath • 963 ft²














































