Three-bed cul-de-sac home with garage and garden, ideal for renovation.
Chain-free, ideal for first-time buyers or investors
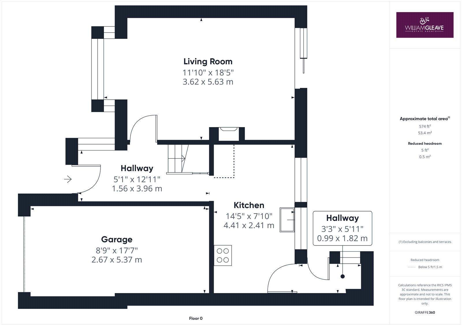
A three-bedroom end-of-terrace in Cornist, Flint, offered chain-free and suited to first-time buyers or buyers seeking refurbishment potential. The house sits on a decent plot with off-street parking and a single garage, plus a low-maintenance rear garden. Its location in a quiet cul-de-sac gives a peaceful setting while local shops, schools and transport links are within easy reach.
The property requires modernisation throughout: expect cosmetic and likely mid-level work to kitchen, bathroom and general decoration. The house benefits from double glazing (fitted during/after 2002), gas central heating with a boiler and radiators, and a cavity-filled external wall construction—features that reduce immediate major expenditure compared with an unmodernised older home.
At about 808 sq ft, the accommodation includes a large living room, separate kitchen, utility/rear hallway and three bedrooms upstairs. This size and layout suit first-time buyers wanting a manageable family home or investors targeting rental demand in a well-connected town. Note the local area records higher deprivation levels, which may affect long-term price growth compared with more affluent neighbourhoods.
Viewing is recommended to assess the scope and cost of modernisation. No flooding risk is recorded and local crime levels are low, making this a practical purchase for buyers willing to renovate and personalise the property.
3 bedroom semi-detached house for sale in Maes Gwyn, Flint, Flintshire, CH6 — £85,000 • 3 bed • 1 bath • 797 ft²
3 bedroom end of terrace house for sale in Corporation Street, Flint, CH6 — £125,000 • 3 bed • 1 bath • 700 ft²
3 bedroom semi-detached house for sale in Queens Avenue, Flint, CH6 — £175,000 • 3 bed • 1 bath • 852 ft²
4 bedroom detached house for sale in Bryn Glas, Flint, Flintshire, CH6 — £250,000 • 4 bed • 3 bath • 1021 ft²
3 bedroom semi-detached house for sale in Queens Avenue, Flint, CH6 — £170,000 • 3 bed • 1 bath • 980 ft²
2 bedroom end of terrace house for sale in Brushwood Avenue, Flint, CH6 — £165,000 • 2 bed • 2 bath • 700 ft²






































































































