4-bedroom detached chalet on a large corner plot, a short walk to Aldwick beach.
Detached chalet house on generous corner plot
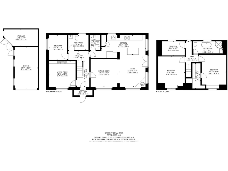
This well-presented detached chalet house sits on a generous corner plot in sought-after Aldwick, a short stroll from the seafront. The ground floor features a generous open-plan kitchen/family/dining room with vaulted ceiling, central island and log stove — a light, sociable hub for family life. A separate living room with feature fireplace, utility room and ground-floor shower room add useful flexibility.
Upstairs there are three bedrooms plus a single room and a four-piece family bathroom; the principal bedroom benefits from a walk-in wardrobe. The property includes a detached garage with electric roller door and driveway parking, and a wrap-around garden with lawn and patio — well suited to family outdoor use or entertaining.
Practical details: freehold tenure, large total size (c.2,789 sq ft), very low local crime and fast broadband. Note the property attracts an expensive council tax band and, as a detached chalet on a large plot, ongoing maintenance and garden upkeep should be expected. Internal viewing is recommended to appreciate the accommodation and setting close to shops, schools and the seafront.
4 bedroom chalet for sale in 66 Barrack Lane, Aldwick, PO21 — £800,000 • 4 bed • 2 bath • 2153 ft²
3 bedroom detached house for sale in St. Richards Way, Aldwick, Bognor Regis, PO21 — £395,000 • 3 bed • 2 bath • 1249 ft²
4 bedroom detached house for sale in Parkway, Bognor Regis, PO21 — £700,000 • 4 bed • 1 bath • 1804 ft²
4 bedroom detached house for sale in Aldwick Gardens, Aldwick, PO21 — £575,000 • 4 bed • 2 bath • 1597 ft²
4 bedroom detached house for sale in Inglewood Drive, Aldwick, Bognor Regis PO21 — £500,000 • 4 bed • 2 bath • 1853 ft²
3 bedroom chalet for sale in Gossamer Lane, Bognor Regis, PO21 — £500,000 • 3 bed • 2 bath • 1811 ft²


































































































































































