**Standout Features:**
- Two-bedroom, 1-bathroom apartment in a historic Grade II Listed building
- Private parking in a secure underground garage
- Open plan living/dining area with feature fireplace
- Modern kitchen with NEFF appliances
- Excellent built-in storage and potential for office conversion
- Convenient central location with access to amenities and parks
**Concerns:**
- Property is sold as a 25% share of freehold
- High crime rate in the area
- No insulation in solid brick walls may require future updates
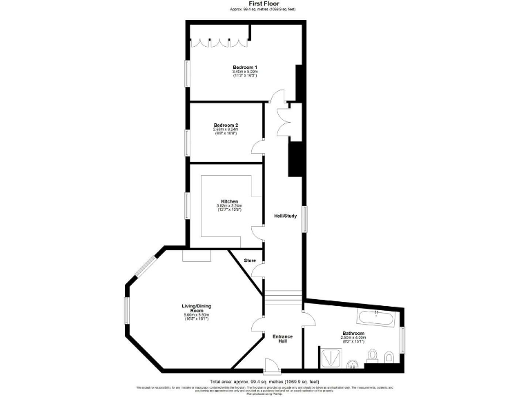
Nestled in the heart of Shrewsbury, this spacious two-bedroom apartment offers a unique blend of historic charm and modern convenience. Housed in an elegant Georgian building, it showcases original features alongside contemporary amenities, including a well-appointed kitchen and a bright living/dining area with dual aspect windows. With private underground parking and ample storage options—including the potential to convert a cupboard into an office—this apartment is ideal for both first-time buyers and investors looking for rental potential in a vibrant neighborhood.
While the property boasts desirable characteristics, it does come with challenges, including a 25% share of the freehold and a high crime rate in the vicinity. The absence of insulation in the solid brick walls could present future maintenance considerations. However, the exceptional broadband speeds and access to local amenities provide a bustling, cosmopolitan lifestyle. Don't miss your chance to own a piece of Shrewsbury's history—this apartment perfectly balances modern living with timeless elegance!
2 bedroom apartment for sale in St. Marys Street, Shrewsbury, SY1 — £415,000 • 2 bed • 1 bath • 1479 ft²
2 bedroom apartment for sale in St Alkmunds Square, Shrewsbury, SY1 — £180,000 • 2 bed • 1 bath • 707 ft²
2 bedroom apartment for sale in Castle Street, Shrewsbury, SY1 — £450,000 • 2 bed • 2 bath • 1705 ft²
2 bedroom apartment for sale in Claremont Bank, Shrewsbury, SY1 — £274,000 • 2 bed • 2 bath • 798 ft²
1 bedroom flat for sale in Castle Street, Shrewsbury, SY1 — £225,000 • 1 bed • 1 bath • 694 ft²
2 bedroom flat for sale in Bank Passage Apartments, High Street, Shrewsbury, SY1 — £175,000 • 2 bed • 2 bath • 829 ft²






































































