HD7 5TY - 3 bedroom semidetached house for sale in Jim Hill, Chain Ro…

View on Property Piper

3 bedroom semi-detached house for sale in Jim Hill, Chain Road, Slaithwaite, Huddersfield, HD7

Summary - CHAIN ROAD 2 JIM HILL SLAITHWAITE HUDDERSFIELD HD7 5TY

3 bed 2 bath Semi-Detached

**Key Features:**
- Grade II Listed semi-detached cottage
- Recently renovated with charming rustic characteristics
- Scenic semi-rural location between Slaithwaite, Marsden, and Meltham
- Multi-fuel stove, exposed beams, and traditional stonework
- Two dedicated off-road parking spaces
- Generous rear garden with paved patio and garden shed
- Average broadband speeds, council tax band E, freehold property

Nestled in a delightful semi-rural setting, this Grade II Listed semi-detached cottage offers the perfect blend of character and modern comforts. The property has been beautifully renovated, showcasing traditional stonework and exposed beams that create a warm and inviting atmosphere. With three bedrooms and two bathrooms, it accommodates families or can serve as a rural weekend retreat. The expansive garden provides ample space for outdoor activities, complemented by a large paved patio ideal for hosting alfresco gatherings while enjoying stunning views over the Pennine hills.

While the cottage carries a listed status, signifying its unique heritage, this does come with certain restrictions concerning renovations. However, its well-maintained condition means you'll be moving into a home filled with charm and comfort right away. Situated in a desirable area with good local amenities and schools, this property is perfect for families seeking tranquility without sacrificing access to urban conveniences. Don’t miss the chance to make this enchanting cottage your own—properties like this are rarely available for long!

Property Details

Brochure Descriptions

Image Descriptions

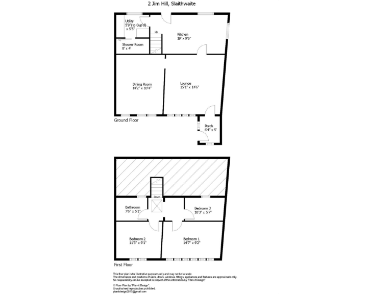
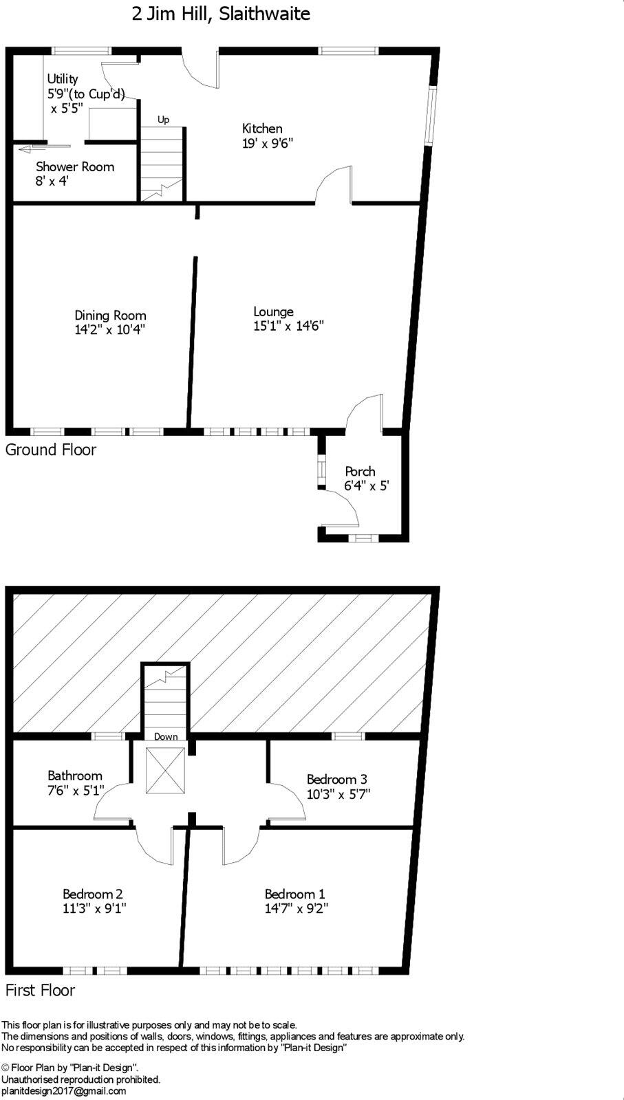
Floorplan Description

Rooms

Textual Property Features

Detected Visual Features

Nearby Schools

Nearest Bars And Restaurants

,,,,}

Nearest General Shops

,,}

Nearest Grocery shops

,,}

Nearest Supermarkets

,,}

Nearest Religious buildings

,,}

Nearest Medical buildings

,,,}

Nearest Airports

}

Nearest Leisure Facilities

,,,,}

Nearest Tourist attractions

,,}

Nearest Train stations

,,,,}

Nearest Bus stations and stops

,,,,}

Nearest Hotels

,,}

Tags

Local Market Stats

Similar Properties

Meta

High Res Images

Compatible Images

Low res Images

Thumbnails

Raw Images

High Res Floorplan Images

Compatible Floorplan Images

Low res Floorplan Images

FloorplanImages Thumbnail

Raw Floorplan Images