Compact modern flat moments from Brighton seafront and transport.
Bright open-plan kitchen/lounge with integrated appliances
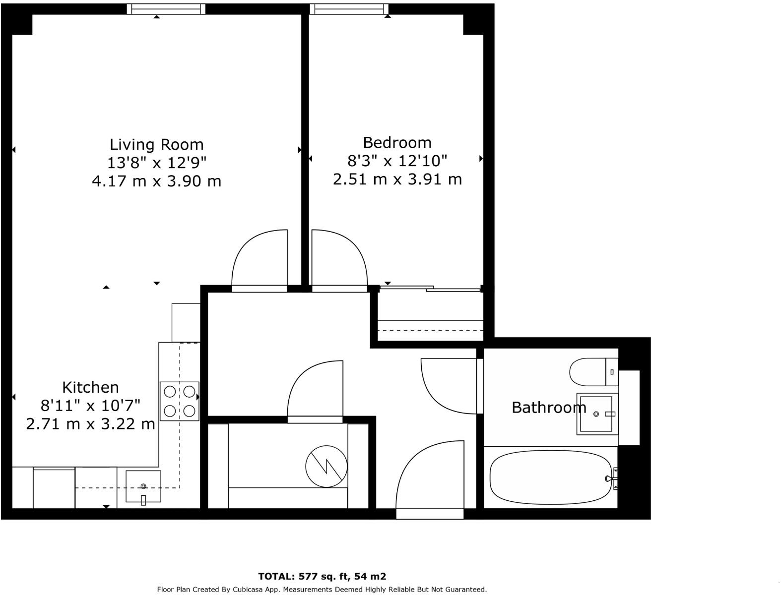
This one-bedroom apartment in Embankment House offers contemporary city living in central Brighton. The open-plan lounge and modern fitted kitchen create a bright, usable space for daily life and entertaining, while the double bedroom receives good natural light. The building benefits from secure entry and appears well maintained, simplifying move-in for a first-time buyer.
At 577 sq ft the layout is comfortable rather than spacious; it suits a single professional or couple seeking a low‑maintenance home close to transport links and the seafront. Integrated appliances, neutral finishes and recessed lighting reduce immediate refurbishment needs and support straightforward decorating or light upgrades if desired.
Important practical points: the property is leasehold, so buyers should check lease length and service charges. The local area is classified as a student‑communal neighbourhood and the crime level is recorded as very high — buyers sensitive to nightlife or safety should view at different times and assess security arrangements. Overall, this flat represents convenient, modern central living with potential for rental or owner-occupier use, provided lease and local-area factors meet your requirements.
1 bedroom flat for sale in Regent Street, Brighton, East Sussex, BN1 — £260,000 • 1 bed • 1 bath • 619 ft²
1 bedroom apartment for sale in Edward Street Quarter, Brighton, BN2 — £300,000 • 1 bed • 1 bath • 441 ft²
1 bedroom apartment for sale in Stone Street, Brighton, BN1 — £290,000 • 1 bed • 1 bath • 714 ft²
1 bedroom flat for sale in Western Road, Brighton, East Sussex, BN1 — £240,000 • 1 bed • 1 bath • 500 ft²
1 bedroom apartment for sale in Stone Street, Brighton, BN1 — £240,000 • 1 bed • 1 bath • 720 ft²
1 bedroom flat for sale in Fl Street, Brighton, BN1 — £250,000 • 1 bed • 1 bath • 453 ft²


































