Generous plot, double garage and an office studio — perfect for growing families..
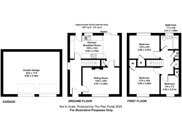
- Three bedrooms with family bathroom on first floor
- Large corner plot with high privacy rear garden
- Recently fitted modern open-plan kitchen and dining area
- Timber summerhouse/studio with power and Wi‑Fi included
- Driveway parking for 4–5 cars plus double garage
- Single bathroom may be limiting for larger families
- Extension potential exists but requires planning permission
- Double glazing installed before 2002 (may need updating)
Set on a generous corner plot in a quiet Greenridge cul-de-sac, this well-presented three-bedroom semi delivers village calm with easy access to Bristol (about 9 miles). The house combines a recently fitted open-plan kitchen/diner and a cosy lounge with a log burner, making it comfortable for family life and entertaining.
Outside is a standout: driveway parking for 4–5 cars, a double garage, and a large private rear garden with a timber summerhouse/studio fitted with power and Wi‑Fi — useful as a home office or hobby space. There is clear potential to extend the house further, subject to planning permission, if you need more living space.
Practical points are straightforward: mains gas central heating, fast fibre broadband, double glazing (installed before 2002) and a single family bathroom. The property was built in 1969 and sits in a very affluent, low-crime area close to a good primary and secondary school.
This home will suit buyers seeking space, privacy and room to grow. Note the single bathroom and earlier double glazing; any planned extension or major alterations will require planning consent and budget for potential modernisation where preferred.
3 bedroom semi-detached house for sale in Rogers Close, Clutton, BS39 — £375,000 • 3 bed • 1 bath • 1019 ft²
4 bedroom semi-detached house for sale in Greville Road, Clutton, BS39 — £430,000 • 4 bed • 2 bath • 1155 ft²
3 bedroom semi-detached house for sale in Rogers Close, Clutton, BS39 — £345,000 • 3 bed • 2 bath • 1004 ft²
3 bedroom semi-detached house for sale in Kingwell View, High Littleton, Bristol, BS39 — £329,950 • 3 bed • 1 bath • 747 ft²
3 bedroom semi-detached house for sale in Lower Road, Hinton Blewett, Bristol, Somerset, BS39 — £370,000 • 3 bed • 1 bath • 886 ft²
3 bedroom detached house for sale in Eastover Road, High Littleton, BS39 — £325,000 • 3 bed • 1 bath • 994 ft²


























































