**Key Features:**
- Prime Uphill location near Lincoln Cathedral
- Historic 5-bedroom detached home with character
- Extensive rear garden and adjoining 1-bedroom annexe
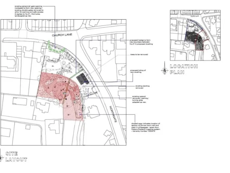
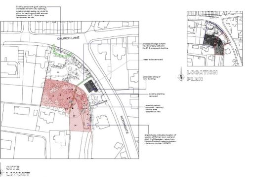
- Planning permission for an additional dwelling
- Mature grounds of 0.84 acres featuring sections of the original Roman moat
- Recent rewiring and reroofing, maintaining historical appeal
- EPC Rating: D; Council Tax Band: F
This historic 5-bedroom detached home represents a unique opportunity to own a piece of Lincoln's heritage, located just a 10-minute stroll from the breathtaking Lincoln Cathedral in the highly sought-after Uphill area. Set within 0.84 acres of beautifully landscaped gardens—including sections of the original Roman moat—this property boasts a rich history and modern upgrades, having been recently rewired and reroofed. The layout includes a welcoming entrance hall, a kitchen with a pantry, two reception rooms for family gatherings, and five generously sized double bedrooms, with the main bedroom featuring an en-suite.
Additionally, an adjoining self-contained annexe currently operates as a successful Airbnb, providing flexible living options or potential rental income. The property comes with approved planning permission for a detached chalet-style dwelling, making it ideal for those considering future expansion or investment. While the property offers tranquility and privacy with its extensive brick boundary, some buyers may note the above-average crime rate in the locality, which merits consideration. With exclusive features like cathedral views and mature gardens, this home is perfect for families or investors looking for a blend of historical charm and modern living. Don't miss out on this rare gem—properties of this caliber are seldom available!
5 bedroom detached house for sale in Northgate, Lincoln, Lincolnshire, LN2 — £950,000 • 5 bed • 3 bath • 3023 ft²
3 bedroom detached house for sale in East Bight, Lincoln, LN2 — £550,000 • 3 bed • 2 bath • 1502 ft²
4 bedroom detached house for sale in 2 Cottesford Place, James Street, Lincoln, Lincolnshire, LN2 1QF, LN2 — £650,000 • 4 bed • 1 bath • 3896 ft²
5 bedroom detached house for sale in St. Giles Mede, Auden Close, Lincoln, Lincolnshire, LN2 — £845,000 • 5 bed • 5 bath • 3264 ft²
5 bedroom semi-detached house for sale in Eastcliff Road, Lincoln, Lincolnshire, LN2 5RU, LN2 — £700,000 • 5 bed • 3 bath • 3281 ft²
5 bedroom detached house for sale in 110 Longdales Road, Lincoln, LN2 2JT, LN2 — £535,000 • 5 bed • 3 bath • 1909 ft²










































































































































































































































