Newly renovated interior with communal garden access and strong transport links.
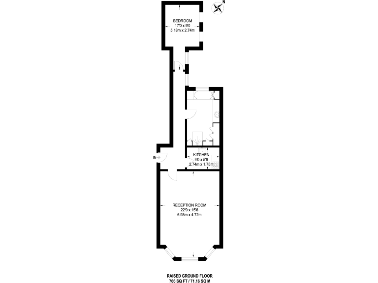
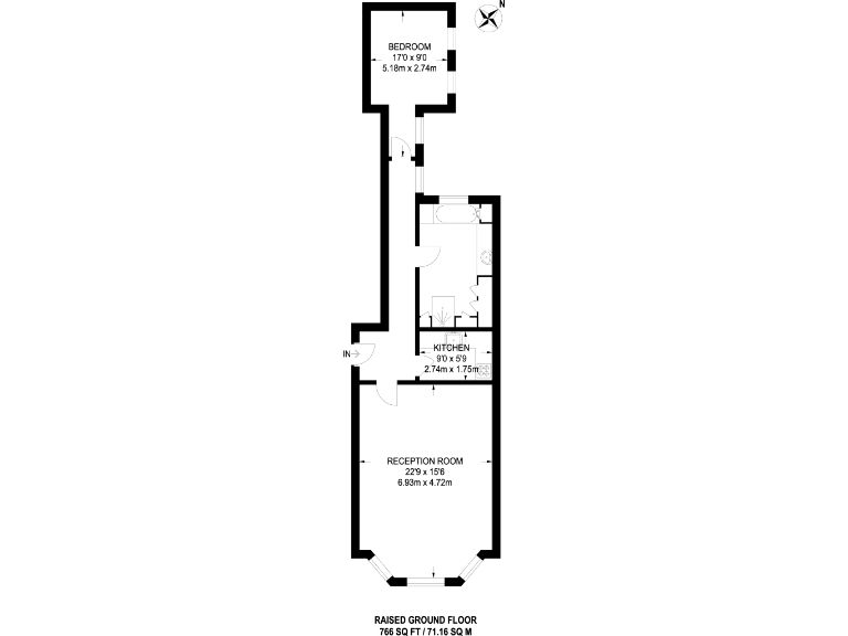
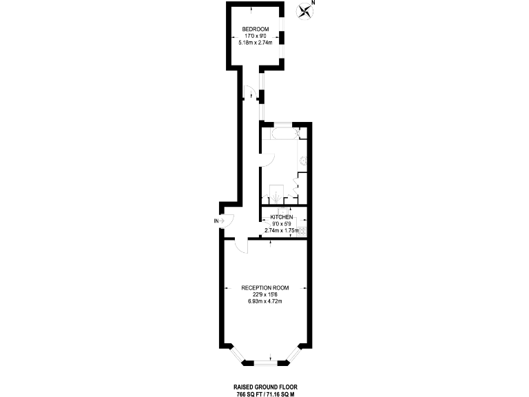
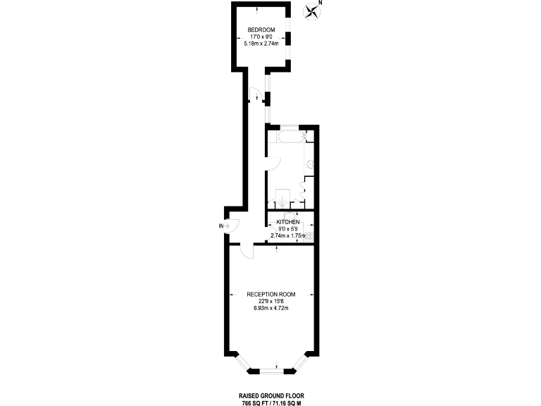
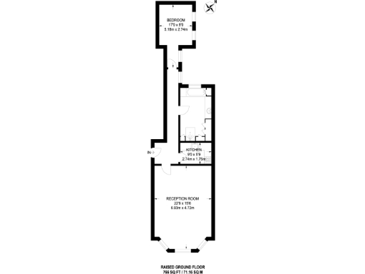
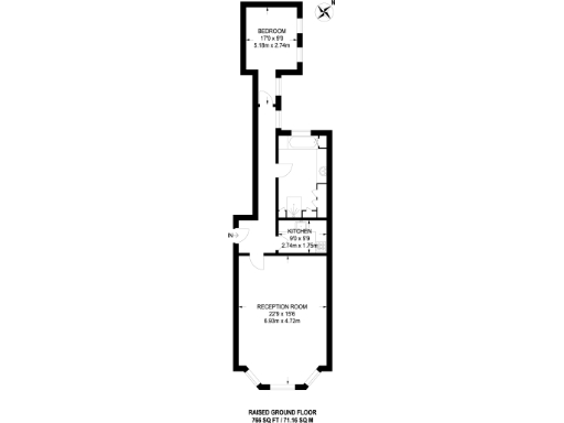
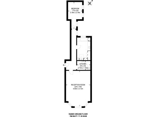
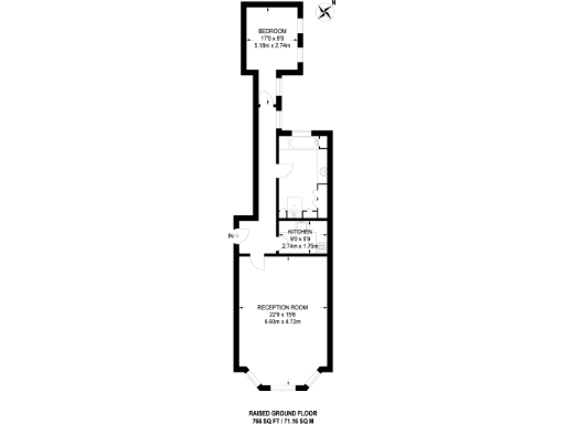
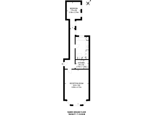
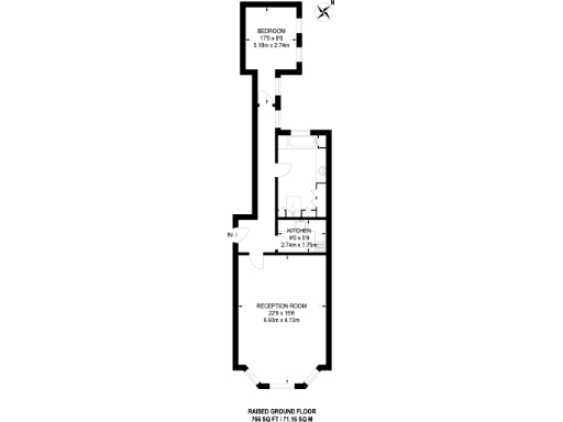
Large 766 sq ft one‑bed raised ground flat with generous reception room
This large raised‑ground one‑bed flat on Bramham Gardens combines period charm with a recently refreshed interior. High ceilings, a bay window and traditional cornices frame an impressive reception room that easily accommodates dining and living zones, while the bedroom benefits from fitted wardrobes and good natural light.
Residents enjoy access to pretty communal gardens opposite the building, and the property sits moments from Earls Court Road’s shops, cafés and transport links. Broadband speeds are fast and mobile signal is excellent, making the flat well suited to city professionals or a first‑home purchase.
The flat is sold as a share of freehold and has been newly renovated to a high standard, though buyers should note a notably high service charge of £6,000 per year. The building’s solid brick walls are as-built (no added insulation assumed), so heating costs may be higher than modern standards despite mains gas central heating.
Overall this is a spacious, characterful central London flat offering move‑in condition and strong lifestyle appeal. It will particularly suit someone seeking a stylish one‑bed home with outside space nearby, but buyers should budget for the ongoing service charges and potential fabric/insulation upgrades.
1 bedroom flat for sale in Bramham Gardens, Earls Court, London, SW5 — £475,000 • 1 bed • 1 bath • 420 ft²
1 bedroom apartment for sale in Bramham Gardens, London, SW5 — £675,000 • 1 bed • 1 bath • 449 ft²
2 bedroom flat for sale in Bramham Gardens, South Kensington, SW5 — £1,750,000 • 2 bed • 2 bath • 1201 ft²
1 bedroom flat for sale in Gledhow Gardens, South Kensington, London, SW5 — £1,250,000 • 1 bed • 1 bath • 718 ft²
1 bedroom apartment for sale in Bramham Gardens, London, SW5 — £780,000 • 1 bed • 1 bath • 750 ft²
3 bedroom flat for sale in Bramham Gardens, Earls Court, SW5 — £1,700,000 • 3 bed • 2 bath • 1204 ft²


































































































































































































































