Quiet cul-de-sac setting with driveway and garden, ideal for new buyers.
Three bedrooms in a mid-terrace layout
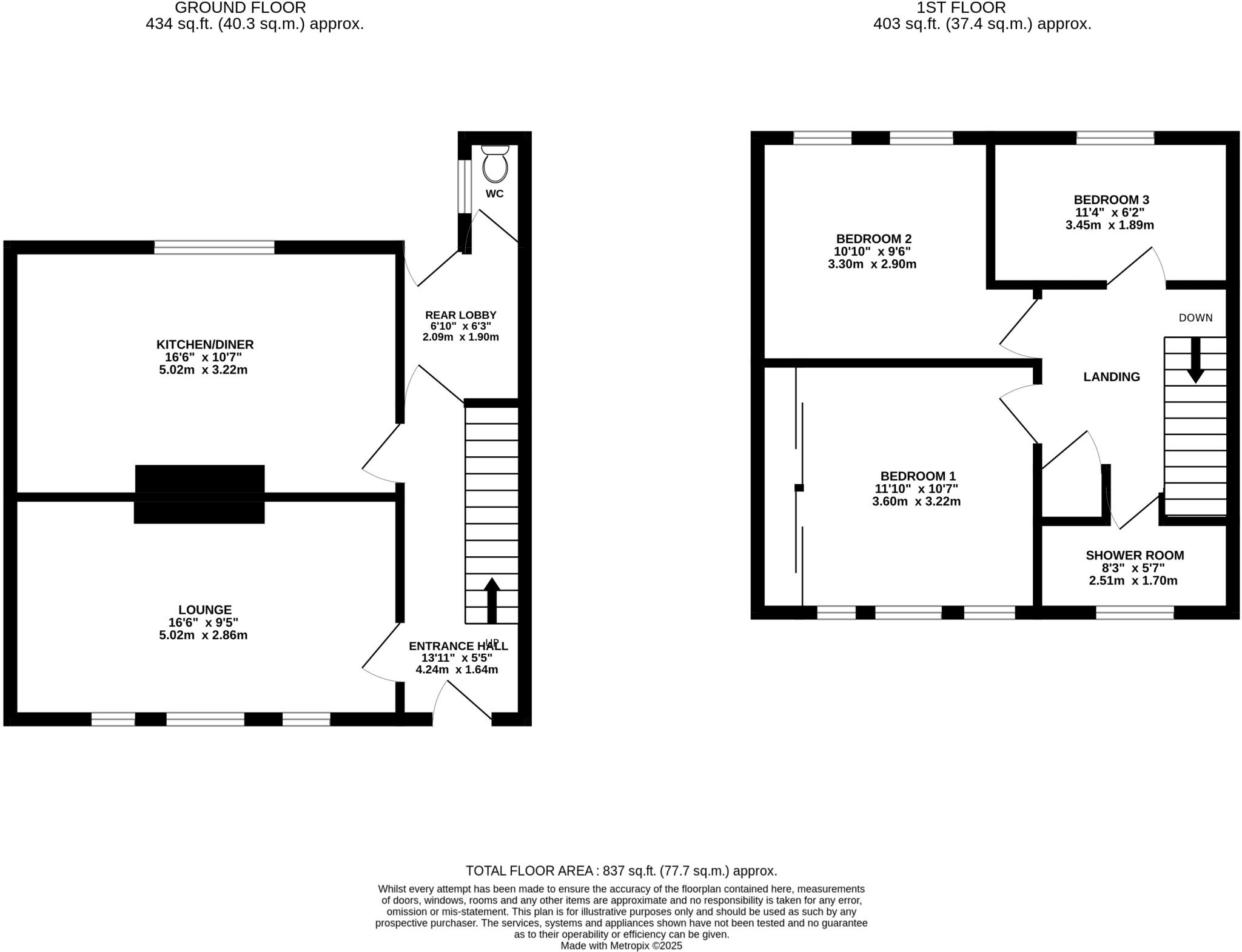
Set in a quiet cul-de-sac in sought-after Bonby, this well-presented three-bedroom mid-terrace offers comfortable rural living with practical conveniences. The front-facing lounge features a feature fireplace and the kitchen/diner includes a breakfast bar and room for everyday dining. Off-street parking on a private driveway and a generous rear lawn with a raised patio create useful outdoor space for entertaining or family life.
Upstairs are three bedrooms served by a single first-floor shower room; the layout suits first-time buyers, professionals or those downsizing who value a straightforward, low-maintenance home. Gas central heating, double glazing and a filled cavity wall provide decent thermal performance, though the exact age of the glazing is unknown and may need checking.
Practical considerations include a small plot size and slow broadband speeds, which could affect home working or heavy streaming. The property dates from the 1950s–1960s so the next owner should expect typical mid‑century maintenance and possible cosmetic updating rather than a full renovation. Council tax is very cheap and local crime rates are very low, adding to the home’s everyday affordability and peace of mind.
Located close to good local primary and secondary schools and bordered by the North Lincolnshire Wolds, the home combines countryside appeal with easy access to nearby towns. For buyers seeking a move-in ready starter home with garden, parking and character, this property offers a straightforward, affordable opportunity in a pleasant village setting.
3 bedroom terraced house for sale in School Lane, Bonby, Brigg, Lincolnshire, DN20 — £135,000 • 3 bed • 1 bath • 918 ft²
3 bedroom terraced house for sale in Margrave Lane, Garthorpe, Lincolnshire, DN17 — £140,000 • 3 bed • 1 bath • 862 ft²
3 bedroom detached bungalow for sale in Main Street, Bonby, North Lincolnshire, DN20 — £290,000 • 3 bed • 1 bath • 936 ft²
3 bedroom semi-detached house for sale in Town Hill Drive, Broughton, DN20 — £160,000 • 3 bed • 1 bath • 559 ft²
3 bedroom terraced house for sale in Bowmandale, Barton-upon-Humber, Lincolnshire, DN18 — £145,000 • 3 bed • 1 bath • 880 ft²
3 bedroom terraced house for sale in Brooklands Avenue, Broughton, Brigg, DN20 — £140,000 • 3 bed • 1 bath • 915 ft²


































































